Medulin, Mukalba – Građevinski teren s započetom gradnjom. Na prodaju ...

Mukalba, Medulin

620.000€

0 €/m2

Tip

Zemljiste

Površina

0 m2

Detalji

Tip
Zemljiste
Cijena
620.000€
Površina
0 m2 0 €/m2)
Površina zemljišta
500
Udaljenost od mora
200m
Ažuriran
30.10.2025
ID
94101

Opis

Medulin, Mukalba – Građevinski teren s započetom gradnjom.

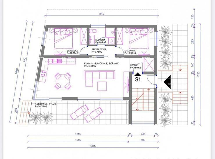
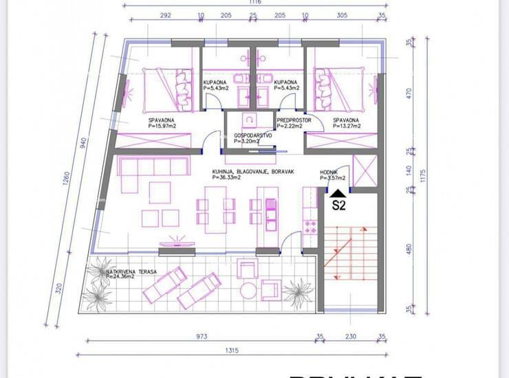
Na prodaju atraktivno građevinsko zemljište s pravomoćnom građevinskom dozvolom za izgradnju tri luksuzna apartmana – svaki apartman na zasebnoj etaži (prizemlje, prvi i drugi kat). Projekt uključuje i podrumske prostorije.

Ključne prednosti:

Komunalije su već plaćene – gradnja u punom tijeku!

Izvrsna lokacija: Zemljište se smjestilo na uzvisini s koje se pruža predivan, otvoreni pogled na more.

Blizina mora i plaže: Samo cca 200 metara udaljenosti od lokacije.

Stanje gradnje:

Iskopi su već izvršeni.

Trenutno se betonira ploča, a gradnja objekta je započela.


Idealno za investiciju:
Zahvaljujući izvrsnoj lokaciji, pogledu na more i blizini plaže, ovo zemljište predstavlja savršen odabir za razvoj apartmana za turistički najam ili prodaju.

Za više informacija, slobodno nas kontaktirajte:
+ 385 91 612... Prikaži broj
+ 385 98 420... Prikaži broj
azra@almadominvest.com

Kontakt info

Agencija
Alma Dom
Kontakt osoba
Alma Dom
Telefon 1
+ 385 52 213... Prikaži broj
Telefon 2
+ 385 52 210... Prikaži broj
Adresa
Istarska 10
Pula, Hrvatska

Kontakt forma

Slične nekretnine