Na prodaju je građevinska parcela s pravomoćnom građevinskom dozvolom za...
Barban
100.000€
0 €/m2
Tip
Zemljiste
Površina
0 m2
Detalji
- Tip
- Zemljiste
- Cijena
- 100.000€
- Površina
- 0 m2 0 €/m2)
- Površina zemljišta
- 863
- Udaljenost od mora
- 0m
- Ažuriran
- 24.10.2025
- ID
- 91507
Opis
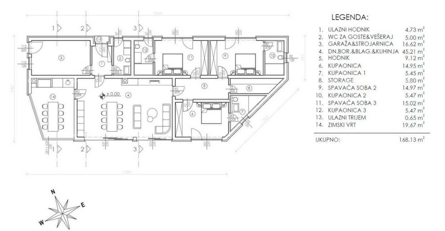
Na prodaju je građevinska parcela s pravomoćnom građevinskom dozvolom za izgradnju moderne obiteljske kuće, prizemnice.
Ovaj projekt svojom funkcionalnošću i dizajnom pruža savršenu ravnotežu između udobnosti i elegancije. Sastoji se od tri spavaće sobe i tri kupaonice, a visoki stropovi od 280 cm dodatno naglašavaju prozračnost i osjećaj prostranosti u cijelom domu.
U središtu interijera smješten je veliki dnevni boravak otvorenog koncepta od 45 m², ispunjen prirodnim svjetlom, koji se spaja s veličanstvenim infinity grijanom bazenom dimenzija 9,5 x 3,5 m i dubine 135 cm.
Grijani zimski vrt opremljenom vanjskom kuhinjom.
Kuća se nalazi na prostranoj parceli površine 863 m² s lijepo uređenim dvorištem i dva parkirna mjesta. Riječ je o savršenoj nekretnini za obitelji koje traže kvalitetan, miran i ugodan životni prostor.
Ova luksuzna obiteljska kuća pomno je osmišljena da zadovoljava potrebe dualne uporabe
- obiteljske kuće - kuće za odmor
- Dodatna unutrašnja prostorija za spremanje i odlaganje stvari
- Bicikle i oprema za rekreaciju na sigurnom u garaži olakšava i svakodnevni i turistički život.
Za dodatne informacije, molimo kontaktirajte:
Azra
+ 385 91 611 ... Prikaži broj
+ 385 98 420... Prikaži broj
azra@almadominvest.com
Kontakt info
- Agencija
-
Alma Dom
- Kontakt osoba
- Alma Dom
- Telefon 1
- + 385 52 213... Prikaži broj
- Telefon 2
- + 385 52 210... Prikaži broj
- Adresa
- Istarska 10
- Pula, Hrvatska