Prodajemo građevinsko zemljište s projektom, građevinskom dozvolom i upl...

Medulin

239.000€

0 €/m2

Tip

Zemljiste

Površina

0 m2

Detalji

Tip
Zemljiste
Cijena
239.000€
Površina
0 m2 0 €/m2)
Površina zemljišta
511
Udaljenost od mora
1500m
Ažuriran
25.03.2026
ID
101397

Opis

Prodajemo građevinsko zemljište s projektom, građevinskom dozvolom i uplaćenim komunalijama.
Zemljište se nalazi na lijepoj lokaciji, okruženo zelenilom, 1,5 km udaljeno od mora.

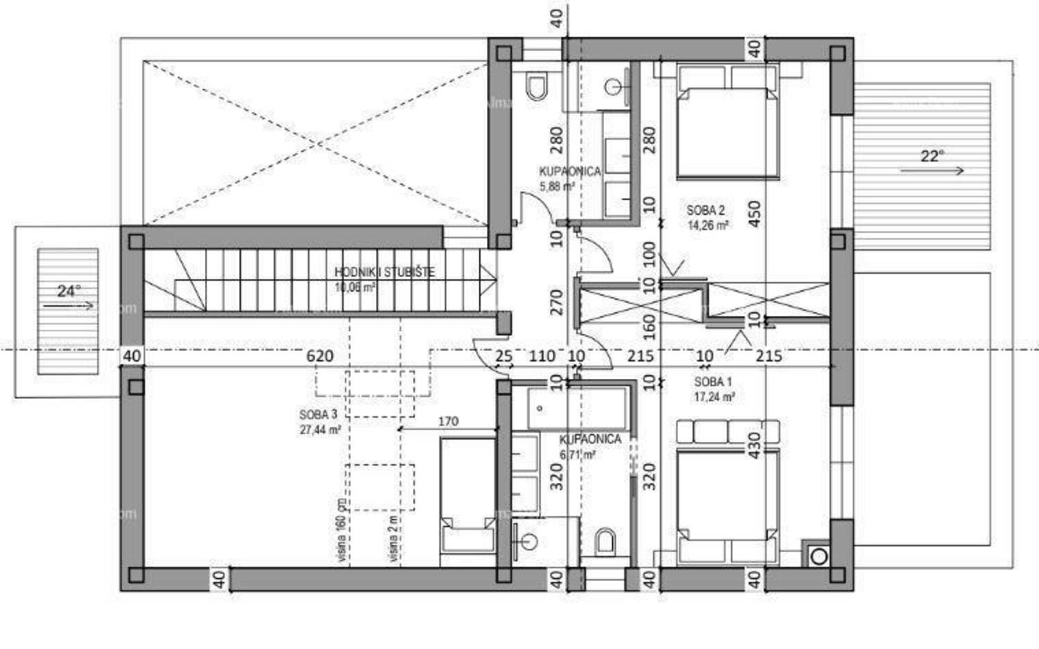
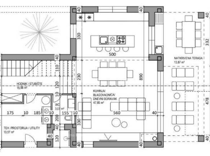
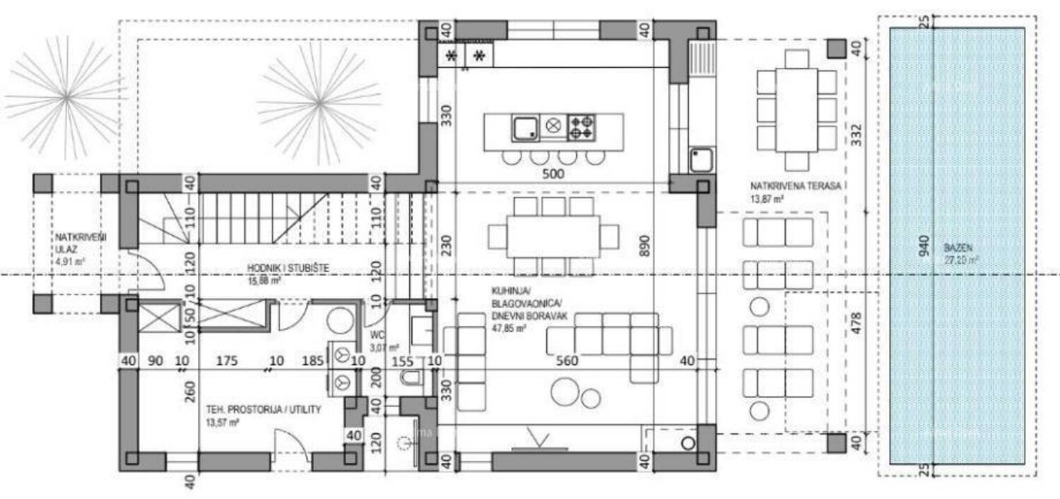
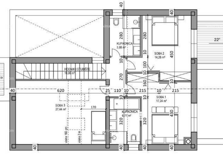
Zemljište ima projekt za katnicu s bazenom, veličine 200m2.
Kuća za odmor posjeduje dnevni boravak s kuhinjom i blagavaonom, 3 spavaće sobe, 2 kupaone, toalet, spremište, terasu i sunčalište uz bazen, vanjski tuš i vanjsku kuhinju.

Za dodatne informacije, molimo kontaktirajte:

Azra
+ 385 91 611 5... Prikaži broj
+ 385 98 420... Prikaži broj
azra@almadominvest.com

Kontakt info

Agencija
Alma Dom
Kontakt osoba
Alma Dom
Telefon 1
+ 385 52 213... Prikaži broj
Telefon 2
+ 385 52 210... Prikaži broj
Adresa
Istarska 10
Pula, Hrvatska

Kontakt forma