MARINIĆI, SKLADIŠTE ZA ZAKUP
Marinići, Viškovo
4.000€ /mjesečno
8 €/m2
Tip
Poslovni prostor
Površina
451 m2
Struktura
5+
Detalji
- Tip
- Poslovni prostor
- Struktura
- 5+
- Cijena
- 4.000€ /mjesečno
- Površina
- 451 m2 (8 €/m2)
- Kat
- Prizemlje
- Ažuriran
- 02.04.2026
- ID
- 104966
Opis
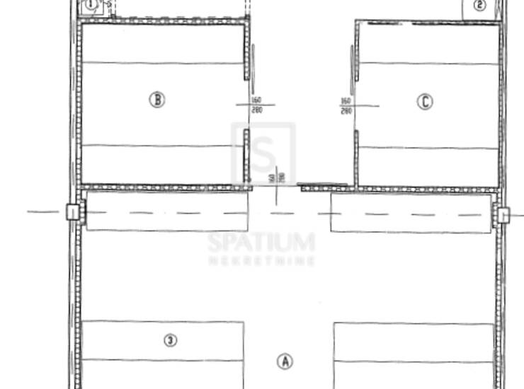
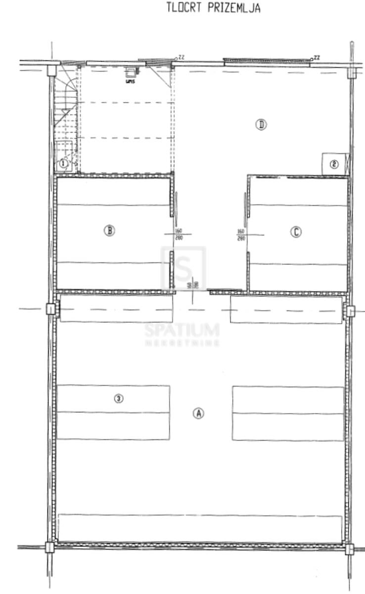
VIŠKOVO, MARINIĆI, u ponudi je funkcionalan skladišno-poslovni prostor ukupne površine 451 m2. Skladište raspolaže kapacitetom od ukupno 300 paletnih mjesta od čega je 200 smješteno u regalni sustav unutar rashladnih komora, što omogućuje fleksibilnost ovisno o vrsti robe i načinu manipulacije.
Prostor uključuje i zajednički dio površine 18 m² te dodatnih 70 m² ambijentalnog skladišnog prostora, idealnog za robu koja ne zahtijeva posebne temperaturne uvjete. Na katu se nalazi uredski dio koji obuhvaća kancelariju, garderobu i sanitarni čvor, čime je osigurana potpuna funkcionalnost za svakodnevno poslovanje i rad zaposlenika.
Ova nekretnina predstavlja izvrsnu priliku za tvrtke koje traže kombinaciju skladišnog i uredskog prostora na jednoj lokaciji, uz optimalnu iskoristivost i praktičan raspored.
UVJETI NAJMA:
POLOG: 2 mjesečna zakupa
PLAĆANJE UNAPRIJED: 1 mjesec
AGENCIJSKA PROVIZIJA: 1 mjesečni najam
Područje općine Viškovo smješteno je sjeverozapadno od Rijeke na površini od svega dvadesetak kvadratnih kilometara. Blizina Rijeke, Opatije, graničnog prijelaza sa Slovenijom, ljepote prirode i pogodnosti življenja u malom mjestu obilježja su koja ovaj kraj čine sve privlačnijim. Viškovo je danas upotpunjeno svim sadržajima neophodnim suvremenom načinu življenja i poslovanja. U središtu mjesta nalaze se: crkva, škola, dječji vrtić, pošta, zdravstvena stanica, ljekarna, knjižnica, banke, poslovnica FINA-e, kreditno-šte
Kontakt info
- Agencija
-
Spatium Nekretnine
- Kontakt osoba
- Vedran Prica
- Telefon 1
- + 385 51 272... Prikaži broj
- Telefon 2
- + 385 95 812 ... Prikaži broj
- Adresa
- Šetalište Andrije Kačića Miošića 5
- Rijeka Centar
- Rijeka, Hrvatska
Slične nekretnine
Zakup, Marinići, poslovni prostor od 205.38 m2
- 3.750€/mjesečno 205 m2
Najam, Marinići, 503.83m2, prodajno-izložbeni prostor sa skladištem
- 4.400€/mjesečno 503 m2
Iznajmljuju se prizemlje hale na području Viškova-Marinića. Prostor ima ...
- 2.500€/mjesečno 320 m2
Iznajmljuje se hala – Marinići, Viškovo – za proizvodnju i skladištenje
- 2.500€/mjesečno 279 m2
VIŠKOVO, MARINIĆI - Poslovni prostor za najam, 250 m2!
- 1.800€/mjesečno 250 m2
Zakup, Marinići, 400m2, hala (skladište) + ured
- 6.250€/mjesečno 400 m2
Viškovo, Marinići - najam poslovnog prostora , 160m2!
- 1.500€/mjesečno 160 m2
RIJEKA, MARINIĆI- poslovni prostor 120,99 m2 za najam
- 1.400€/mjesečno 120 m2
MARINIĆI, VIŠKOVO, POSLOVNI PROSTOR ZA ZAKUP
- 1.200€/mjesečno 120 m2
Marinići 80 m2 poslovni prostor - najam!
- 1.000€/mjesečno 80 m2
MARINIĆI, VIŠKOVO, POSLOVNI PROSTOR ZA ZAKUP
- 1.000€/mjesečno 80 m2
Najam, Marinići, poslovni prostor, 45m2
- 700€/mjesečno 45 m2