ISTRA, BARBAN Zemljište s projektom i pravomoćnom dozvolom!
Rebići, Barban
280.000€
153 €/m2
Tip
Zemljiste
Površina
1830 m2
Detalji
- Tip
- Zemljiste
- Cijena
- 280.000€
- Površina
- 1830 m2 (153 €/m2)
- Udaljenost od mora
- 1450m
- Ažuriran
- 09.03.2026
- ID
- 11572
Opis
ISTRA, BARBAN Zemljište s projektom i pravomoćnom dozvolom!
Istra, Barban - Obnovljena kamena kuća s dvorištem. Barban je prekrasan povijesni gradić smješten u istočnoj Istri udaljen svega 25 kilometara od najvećeg grada u Istri Pule te samo 15 km od Labina. Poznat po viteškoj igri Trka na prstenac koja se tradicionalno održava u kolovozu, a svoje korijene vuče iz davne 1696. godine.
Barban se ponosi i dobro očuvanim arhitektonskim zdanjima iz razdoblja baroka i gotike, freskama i glagoljskim zapisima. Mjesto je na kojem se u novije vrijeme sve više grade kamene, ali i moderne vile, a odlikuje ga i osjećaj istre / mediterana kakav je nekad bio.
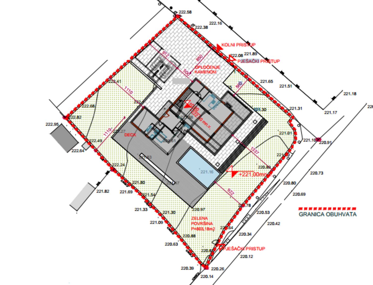
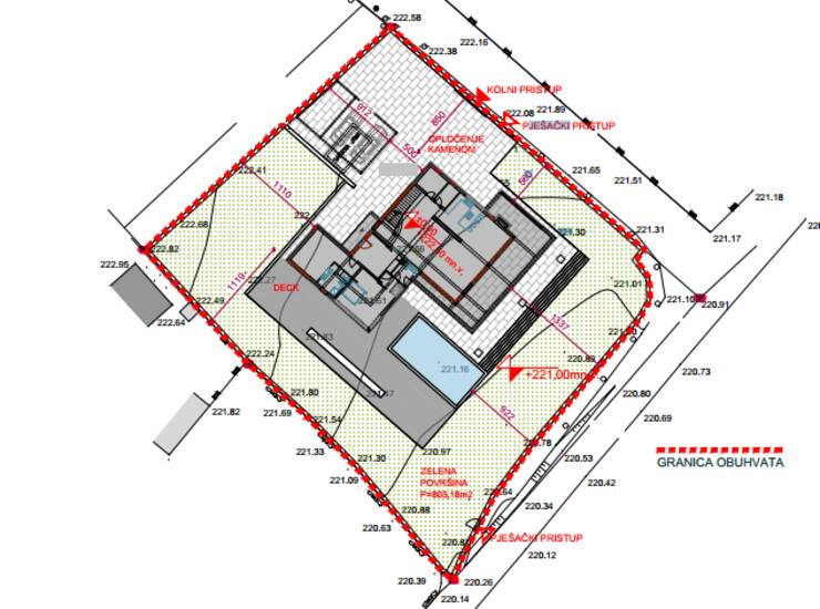
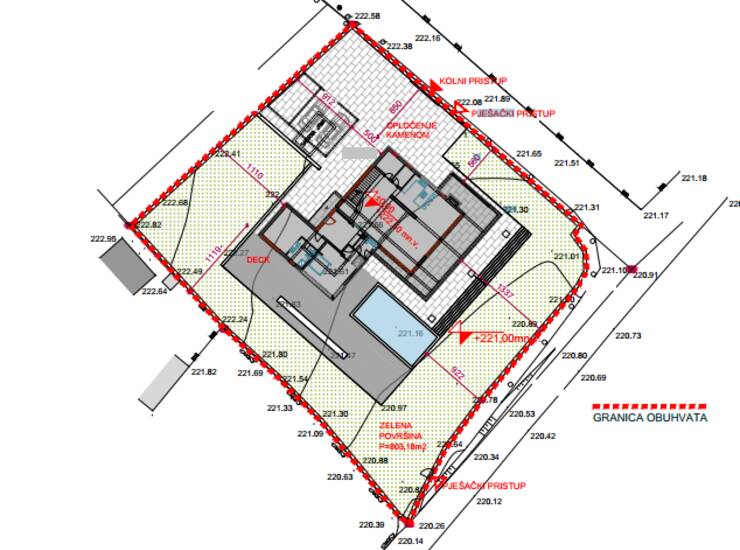
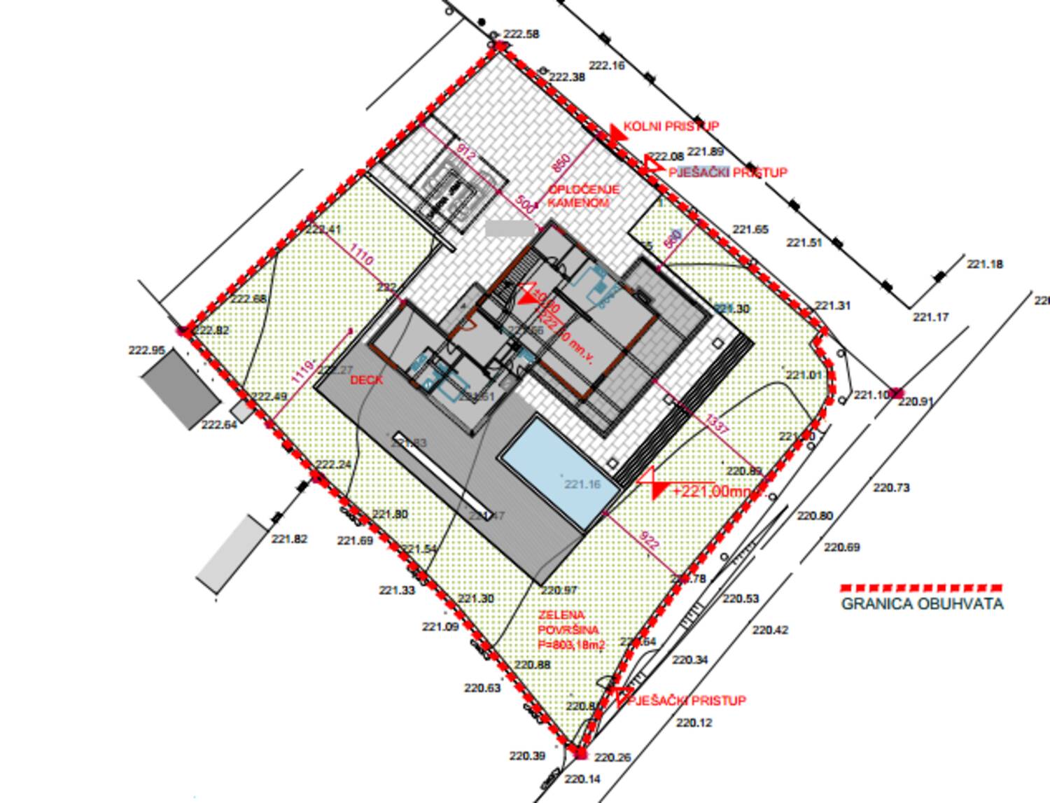
Na svega 5km od udaljenosti od centra Barbana, u mirnom mjestu sa svega stotinjak kuća smjestilo se ovo građevinsko zemljište. Pravilnog je oblika te je ukupne površine 1830m2. Svega je 20m udaljeno od asfaltiranog puta no u putu koji vodi do samog zemljišta vlasnici imaju suvlasništvo. Okruženo je obiteljskim kućama i vilama za odmor te je idealno za gradnju jedne takve građevine za koju trenutni vlasnici posjeduju svu potrebnu dokumentaciju.
U posjedu su pravomoćne građevinske dozvole, arhitektonskog rješenja, geodetskog projekta, potvrde glavnog projekta te posjedovnog lista. Voda se nalazi na parceli te je Vodni doprinos plaćen kao i komunalije u cijelosti.
Prema plaćenom projektu vila će se proteže na prizemlje i kat te se sastoji od ulaznog prostora, dnevnog boravka s kuhinjom i blagova
Kontakt info
- Agencija
-
DUX NEKRETNINE
- Kontakt osoba
- Dux Nekretnine
- Telefon 1
- + 385 51 518... Prikaži broj
- Telefon 2
- + 385 91 480 ... Prikaži broj
- Adresa
- Tizianova 8
- Rijeka, Hrvatska
Slične nekretnine
REBIĆI,GRAĐEVINSKO ZEMLJIŠTE
- 186.750€ 1071 m2
Jug Istre: spremno za gradnju, dozvola, projekt, pristup
- 186.750€ 1071 m2
Barban, Rebići- Šuma, 5200 m2
- 137.700€ 5200 m2
Barban, Rebići- Građevinsko zemljište, 3380 m2
- 122.400€ 3380 m2
ISTRA BARBAN Građevinsko zemljište sa projektom
- 105.000€ 1300 m2
Barban, Rebići- Poljoprivredno zemljište, 2700 m2
- 76.500€ 2700 m2
Barban - građevinsko zemljište 44.000 m2
- 3.100.000€ 44000 m2