ISTRA, KRASICA - Autohtona istarska kuća za adaptaciju
Krasica, Buje
153.000€
2 040 €/m2
Tip
Kuća
Površina
75 m2
Struktura
2
Detalji
- Tip
- Kuća
- Struktura
- 2
- Cijena
- 153.000€
- Površina
- 75 m2 (2 040 €/m2)
- Udaljenost od mora
- 15000m
- Parkirno mjesto
- Da
- Ažuriran
- 21.02.2026
- ID
- 92144
Opis
ISTRA, KRASICA - Autohtona istarska kuća za adaptaciju
U srcu zelenog krajolika sjeverozapadne Istre, u mirnom naselju Krasica nedaleko od Buja, smjestila se ova šarmantna kamena kuća s panoramskim pogledom na okolinu i dolinu rijeke Mirne – savršena prilika za one koji traže spoj tradicije, prirode i tišine.
Krasica je poznata po vrhunskim vinarijama, maslinicima i istarskoj gastronomiji, a upravo ovdje se održava i prestižna manifestacija "Oleum Olivarum", jedna od najvažnijih smotri maslinovog ulja u regiji – dodatni pečat autentičnosti i lokalne kulture.
Kuća je djelomično adaptirana, s već izvedenim ključnim građevinskim zahvatima:
- postavljeni temelji, dvije međukatne ploče, krov i limarija
- izvedene instalacije vode, struje i odvoda
- posjeduje svu urednu dokumentaciju: geodetske izmjere, građevinsku dozvolu, komunalne doprinose, prijavu početka radova i nadzor – što je rijetkost u ponudi sličnih objekata
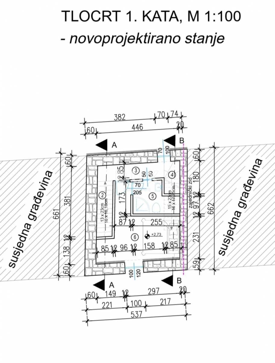
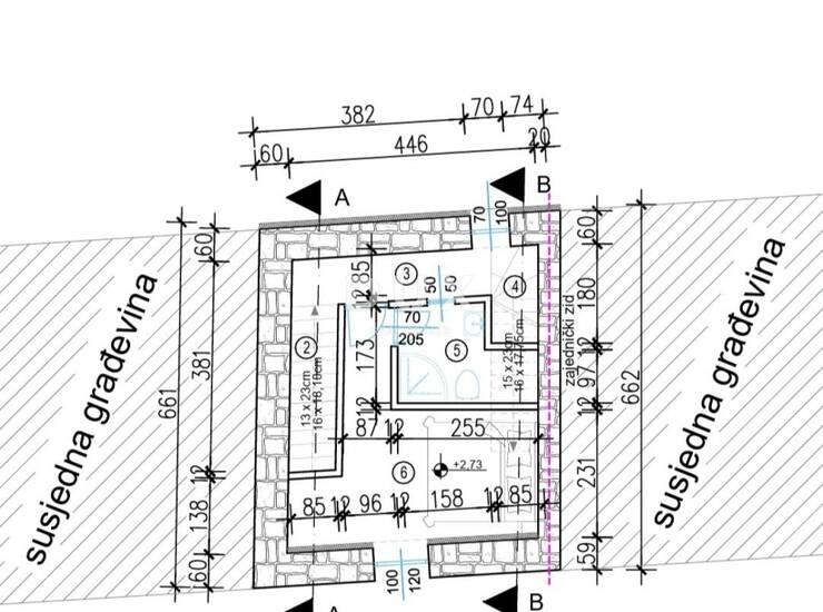
- Kuća obuhvaća prizemlje, prvi i drugi kat, te prednje i stražnje dvorište, ukupne površine:
- kuća: 75 m²
- dvorište: 97 m²
Raspored prostorija dostupan je u projektnim nacrtima, a dodatna ruševina uz kuću također je u fazi renovacije, što otvara mogućnost proširenja ili dodatnog sadržaja.
Lokacija nudi savršenu ravnotežu između mira i dostupnosti – more je udaljeno 15 km, dok su poznate destinacije poput Grožnjana (6 km), Clai vinarije (1,5 km) i Stare škole (2,8 km) nadohvat ruke.
Ova nekre
Kontakt info
- Agencija
-
DUX NEKRETNINE
- Kontakt osoba
- Dux Nekretnine
- Telefon 1
- + 385 51 518... Prikaži broj
- Telefon 2
- + 385 91 480 ... Prikaži broj
- Adresa
- Tizianova 8
- Rijeka, Hrvatska
Slične nekretnine
Istra, Krasica: Kamena kuća s pogledom na more
- 275.000€ 108 m2
ISTRA, BUJE, AUTOHTONA KAMENA KUĆA U MIRNOM OKRUŽENJU
- 290.000€ 155 m2
Istra, Buje - okolica, kamena starina
- 296.000€ 120 m2
KRASICA, BUJE, ATRAKTIVNA ISTARSKA KUĆA
- 300.000€ 120 m2
KRASICA, BUJE, ADAPTIRANA ISTARSKA KUĆA
- 350.000€ 60 m2
Velika vila s prekrasnim panoramskim pogledom, ISTRA, Buje
- 1.500.000€ 240 m2