Novo u ponudi! Kamena kuća za obnovu u malom mjestu u blizini slovenske g...
Salež, Buzet
72.500€
500 €/m2
Tip
Zemljiste
Površina
145 m2
Struktura
3
Detalji
- Tip
- Zemljiste
- Struktura
- 3
- Cijena
- 72.500€
- Površina
- 145 m2 (500 €/m2)
- Površina zemljišta
- 1330
- Udaljenost od mora
- 0m
- Ažuriran
- 30.01.2026
- ID
- 96884
Opis
Novo u ponudi!
Kamena kuća za obnovu u malom mjestu u blizini slovenske granice i grada Buzeta nudi jedinstvenu priliku za stvaranje doma iz snova.
Postoje 2 idejna projekta za obnovu ove nekretnine.
Idejni projekt 1
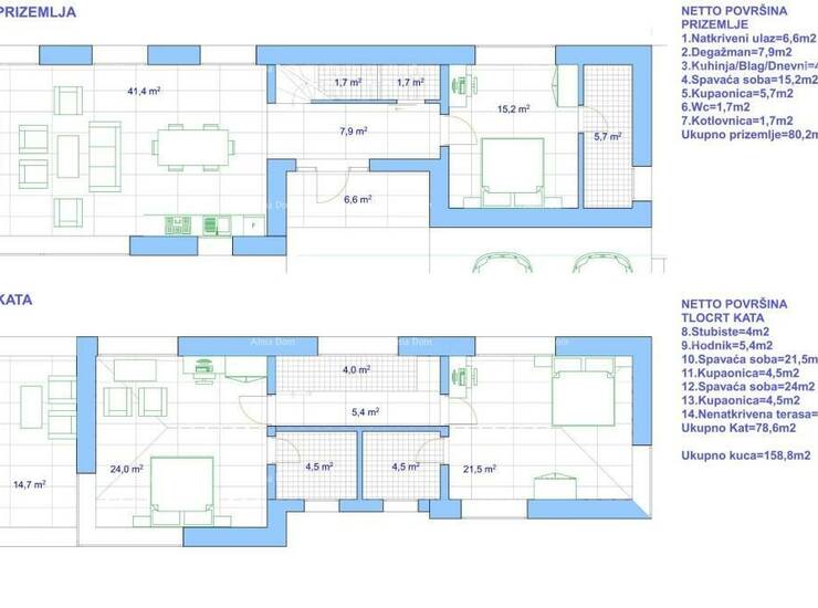
S tlocrtnom površinom od 72,5 m2, raspoređena na dva kata 145 m2, kuća moderne arhitekture sastoji se od:
Prizemlje- natkriveni ulaz, degažman, dnevnog boravka s kuhinjom i blagavaonom, spavaće sobe, kupaone, dodatni toalet i kotlovnica.
Prvi kat- hodnik, 2 spavaće sobe, 2 kupaone i natkrivena terasa.
Na okućnici se nalazi parking za 2 vozila i bazen veličine 18 m2.
Idejni projekt 2
Kuća klasične arhitekture uključuje prizemlje i dva kata:
Prizemlje:
Kuhinja/blagovaona=21,2m2, dnevni boravak=28,7m2, spremište/špajža=1,3m2, Wc=1,5m2
Ukupno prizemlje=52,7m2
Prvi kat:
stubiste=5,8m2, degažman=5,9m2, kupaonica=4,7m2, spavaća soba=14,4m2, spavaća soba=17,5m2, kupaonica=4,4m2, nenatkrivena terasa=2,8m2, vanjsko stubište=4,6m2
Ukupno kat=60,1m2
Drugi kat:
stubište=5,8m2, degažman=3,7m2, kupaonica=4,8m2, spavaća soba=16,4m2
Ukupno kat=30,7m2
Ukupno kuća=143,5m2
I ovaj projekt uključuje 2 parkirna mjesta i bazen.
Dodatno uz ovu kamenu kuću dolazi i zemljište ukupne površine od 1230 m2, a uključuje voćnjak, vinograd i zemljište za sadnju i kultivaciju.
Kuća se nalazi u centru manjeg mjesta, a udaljena 8000 m od centra Buzeta. Idealna prilika za one koji traže mir i prirodu.
Za dodatne informacije, molimo kontaktirajte:
Az
Kontakt info
- Agencija
-
Alma Dom
- Kontakt osoba
- Alma Dom
- Telefon 1
- + 385 52 213... Prikaži broj
- Telefon 2
- + 385 52 210... Prikaži broj
- Adresa
- Istarska 10
- Pula, Hrvatska