OTOK KRK, TRIBULJE - projekt dvojna kuća svaka sa svojim bazenom
Tribulje, Dobrinj
1€
0 €/m2
Tip
Kuća
Površina
460 m2
Struktura
11
Detalji
- Tip
- Kuća
- Struktura
- 11
- Cijena
- 1€
- Površina
- 460 m2 (0 €/m2)
- Terasa
- Da
- Udaljenost od mora
- 3000m
- Parkirno mjesto
- Da
- Ažuriran
- 22.04.2026
- ID
- 44428
Opis
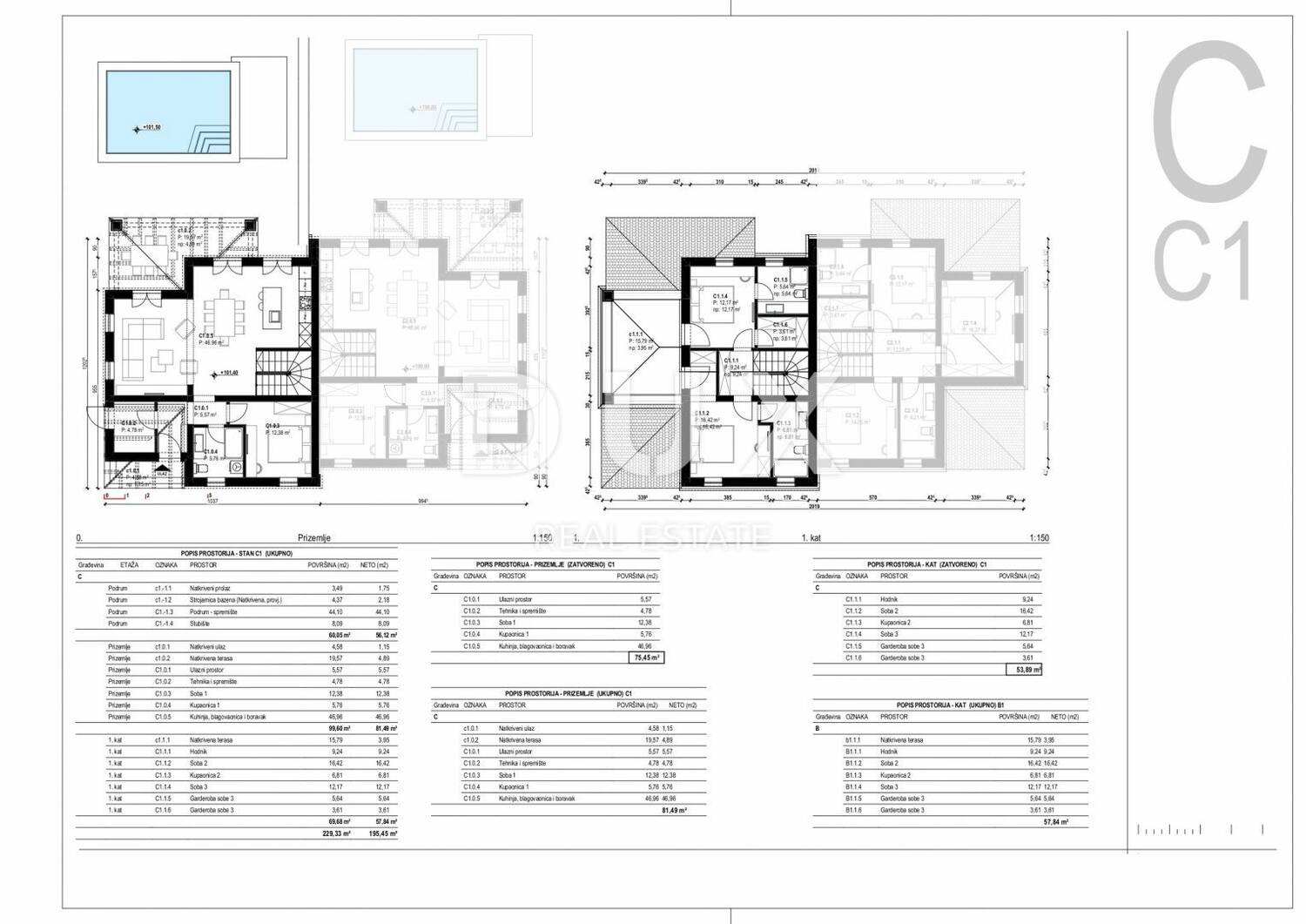
OTOK KRK, TRIBULJE - projekt dvojna kuća ”C1” i ”C2” svaka sa svojim bazenom.
Prodaje se projekt dvojne kuće ”C” svaka sa svojim vlastitim bazenom, okućnicom i parkiralištem za dva automobila po svakoj, koja je razvedena na prizemlje i kat.
U prizemlju kuće ”C1” nalazimo open space dnevni dio s kuhinjom i blagovaonicom s izlazom na natkrivenu terasu, okućnicu i bazen te jednu spavaću sobu i kupatilo.
Na katu kuće imamo još dvijei spavaće sobe svaka sa svojim vlastitim kupatilom i garderobom gdje obje sobe imaju izlaz na natkrivenu terasu.. Sveukupna stambena kvadratura svake kuće iznosi 230m2.
Svakoj kući pripadaju dva parkirna mjesta u dvorištu.
Projekt se prodaje s građevinskom dozvolom, cijena na upit, mogućnost dogovora s prodavateljem o izgradnji i prodaji u fazi ključ u ruke.
Poštovani klijenti, agencijska provizija naplaćuje se u skladu s Općim uvjetima poslovanja.
www.dux-nekretnine.hr/opci-uvjeti-poslovanja
ID KOD AGENCIJE: 26492
Darko Miculinić
Vanjski suradnik
Mob: + 385 91 899 ... Prikaži broj
Tel: + 385 91 480 ... Prikaži broj
E-mail: darko@dux-nekretnine.hr
www.dux-nekretnine.hr
Kontakt info
- Agencija
-
DUX NEKRETNINE
- Kontakt osoba
- Dux Nekretnine
- Telefon 1
- + 385 51 518... Prikaži broj
- Telefon 2
- + 385 91 480 ... Prikaži broj
- Adresa
- Tizianova 8
- Rijeka, Hrvatska
Slične nekretnine
VILLA KRK
- 1.250.000€ 480 m2