Na prodaju je kuća u roh bau fazi u mjestu Kanfanar, 20 min od Rovinja. Po...
Kanfanar
392.000€
1 866 €/m2
Tip
Kuća
Površina
210 m2
Struktura
3
Detalji
- Tip
- Kuća
- Struktura
- 3
- Cijena
- 392.000€
- Površina
- 210 m2 (1 866 €/m2)
- Površina zemljišta
- 700
- Ukup. katova
- 2
- Udaljenost od mora
- 0m
- Parkirno mjesto
- Da
- Ažuriran
- 22.04.2026
- ID
- 93819
Opis
Na prodaju je kuća u roh bau fazi u mjestu Kanfanar, 20 min od Rovinja.
Postavljene su već prozore s električnim roletima, instalacije za struju i vodu su provedene kao i instalacije za podno grijanje.
Kuća je modernog dizajna i funkcijonaljnog rasporeda prostorija:
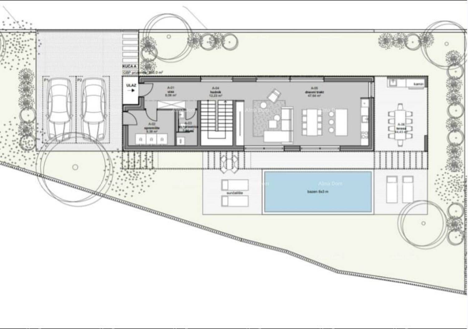
U prizemlju su radne sobe, kao što spremište, garderoba, praona i WC, prostoran dnevni boravak i kuhinja s izlazom na veliku terasu u sunčalište s bazenom.
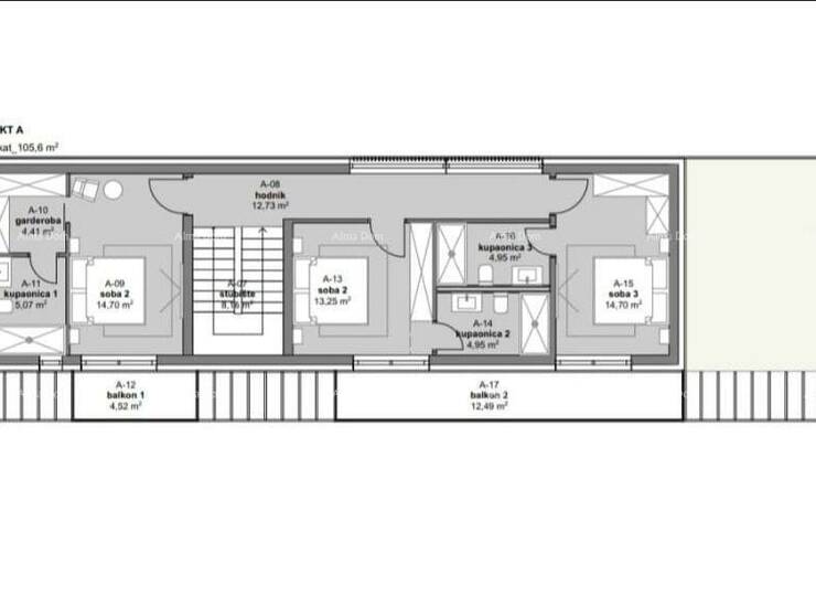
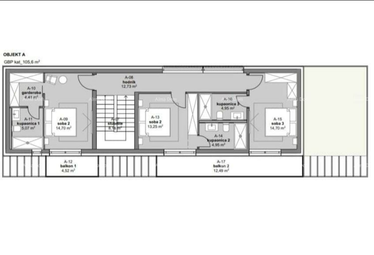
Na gornjem katu su 3 spavaće sobe, svaka je sa s vlastitim kupatilom, a jedna od njih ima izlaz na veliku terasu.
Kuća pruža pogled na more već s nivoa prizemlja.
Istaknuta cijena je za kuću u trenutnom stanju, pa će se povečati kako gradnja napreduje.
Cijena završene kuće 625 000 eura.
Za više informacija i razgledavanje kontaktirajte:
Azra
+ 385 91 611 ... Prikaži broj
+ 385 98 420... Prikaži broj
azra@almadominvest.com
Kontakt info
- Agencija
-
Alma Dom
- Kontakt osoba
- Alma Dom
- Telefon 1
- + 385 52 213... Prikaži broj
- Telefon 2
- + 385 52 210... Prikaži broj
- Adresa
- Istarska 10
- Pula, Hrvatska