ISTRA, KANFANAR - Zemljište + dozvola
Kanfanar
140.000€
148 €/m2
Tip
Zemljiste
Površina
943 m2
Struktura
1
Detalji
- Tip
- Zemljiste
- Struktura
- 1
- Cijena
- 140.000€
- Površina
- 943 m2 (148 €/m2)
- Površina zemljišta
- 943
- Udaljenost od mora
- 10000m
- Ažuriran
- 24.10.2025
- ID
- 81072
Opis
ISTRA, KANFANAR – Građevinsko zemljište s pravomoćnom dozvolom za luksuznu obiteljsku kuću s bazenom
U mirnom i zelenilom okruženom istarskom selu, nudimo građevinsko zemljište s pravomoćnom građevinskom dozvolom za izgradnju luksuzne obiteljske kuće koja spaja autentični mediteranski ugođaj s modernim komforom.
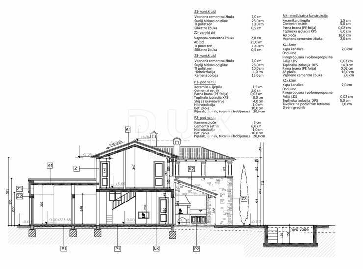
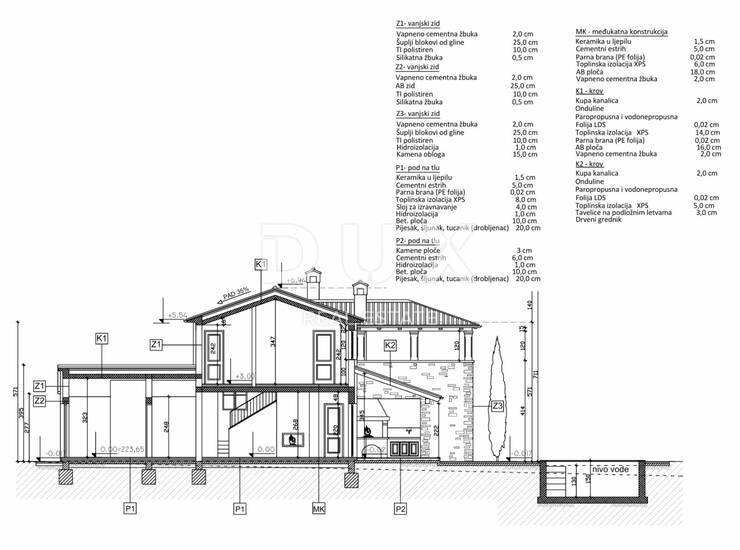
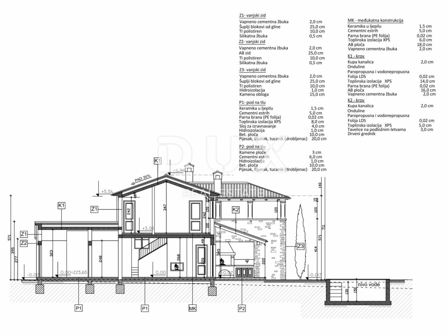
Prema projektu, budući objekt imat će 156,28 m² stambenog prostora i dodatni bazen površine 38,00 m², idealan za obiteljski život ili ulaganje u turistički najam.
Tlocrt kuće predviđa sljedeće:
Prizemlje s prostranim dnevnim boravkom (51,69 m²), moderno dizajniranom kuhinjom s blagovaonicom, ulaznim hodnikom, WC-om, spremištem/praonicom, tehničkom sobom i natkrivenom terasom.
Prvi kat s tri udobne spavaće sobe, dvije kupaonice, predsobljem i natkrivenom terasom s pogledom na prirodu.
Projekt je osmišljen s naglaskom na energetsku učinkovitost, a lokacija zemljišta omogućuje miran život uz blizinu svih bitnih sadržaja – mora, trgovina, škola i prometnih poveznica.
Ovo zemljište s gotovom dokumentacijom i spremnim projektom omogućuje brz početak gradnje, bez dodatnih čekanja.
Savršena prilika za one koji žele izgraditi dom iz snova ili investirati u luksuznu nekretninu na traženoj lokaciji u Istri.
Za više informacija i detalje projekta, slobodno nas kontaktirajte.
Poštovani klijenti, agencijska provizija naplaćuje se u skladu s Općim uvjetima poslovanja:
www.dux-nekretnine.hr/opci-uvjeti-poslovanja
I
Kontakt info
- Agencija
-
DUX NEKRETNINE
- Kontakt osoba
- Dux Nekretnine
- Telefon 1
- + 385 51 518... Prikaži broj
- Telefon 2
- + 385 91 480 ... Prikaži broj
- Adresa
- Tizianova 8
- Rijeka, Hrvatska
Slične nekretnine
ISTRA, KANFANAR - Prostrano građevinsko zemljište
- 140.000€ 1605 m2
Rovinj, Kanfanar - prodaja poljoprivrednog zemljišta
- 137.000€ 13270 m2
Rovinj, Kanfanar - prodaja poljoprivrednog zemljišta
- 137.000€ 13270 m2
ISTRA, LIMSKI KANAL (OKOLICA) - Zemljište pogodno za jahački turizam
- 132.700€ 13270 m2
ISTRA, KANFANAR - Građevinsko zemljište turističke namjene
- 150.000€ 2720 m2
ISTRA, KANFANAR - Građevinsko zemljište od 3133 m2
- 150.000€ 3133 m2
ISTRA, KANFANAR – Zemljište + dozvola
- 125.000€ 841 m2
ISTRA, KANFANAR - Građevinsko zemljište Z3
- 125.000€ 945 m2
ISTRA, KANFANAR - Građevinsko zemljište Z2
- 125.000€ 945 m2
ISTRA, KANFANAR - Građevinsko zemljište Z1
- 125.000€ 945 m2
ISTRA,KANFANAR - Građevinsko zemljište na odličnoj lokaciji
- 123.000€ 880 m2