Novo u ponudi! Prodajemo luksuznu vilu u Kašteliru s bazenom! Ova prekras...
Kaštelir-Labinci
1.250.000€
12 626 €/m2
Tip
Kuća
Površina
99 m2
Struktura
5+
Detalji
- Tip
- Kuća
- Struktura
- 5+
- Cijena
- 1.250.000€
- Površina
- 99 m2 (12 626 €/m2)
- Površina zemljišta
- 0
- Udaljenost od mora
- 0m
- Ažuriran
- 31.01.2026
- ID
- 97865
Opis
Novo u ponudi!
Prodajemo luksuznu vilu u Kašteliru s bazenom!
Ova prekrasna vila kombinira modernu arhitekturu s luksuznim sadržajima, pružajući savršen spoj udobnosti i stila. Prostrana nekretnina prostire se na tri etaže, a njezin otvoreni tlocrt dizajniran je kako bi maksimalno iskoristio prirodno svjetlo i pružio pogled na okolinu.
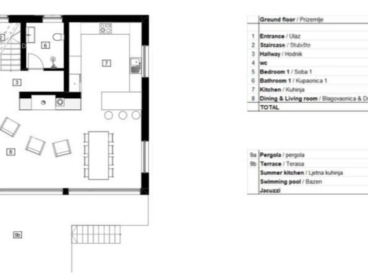
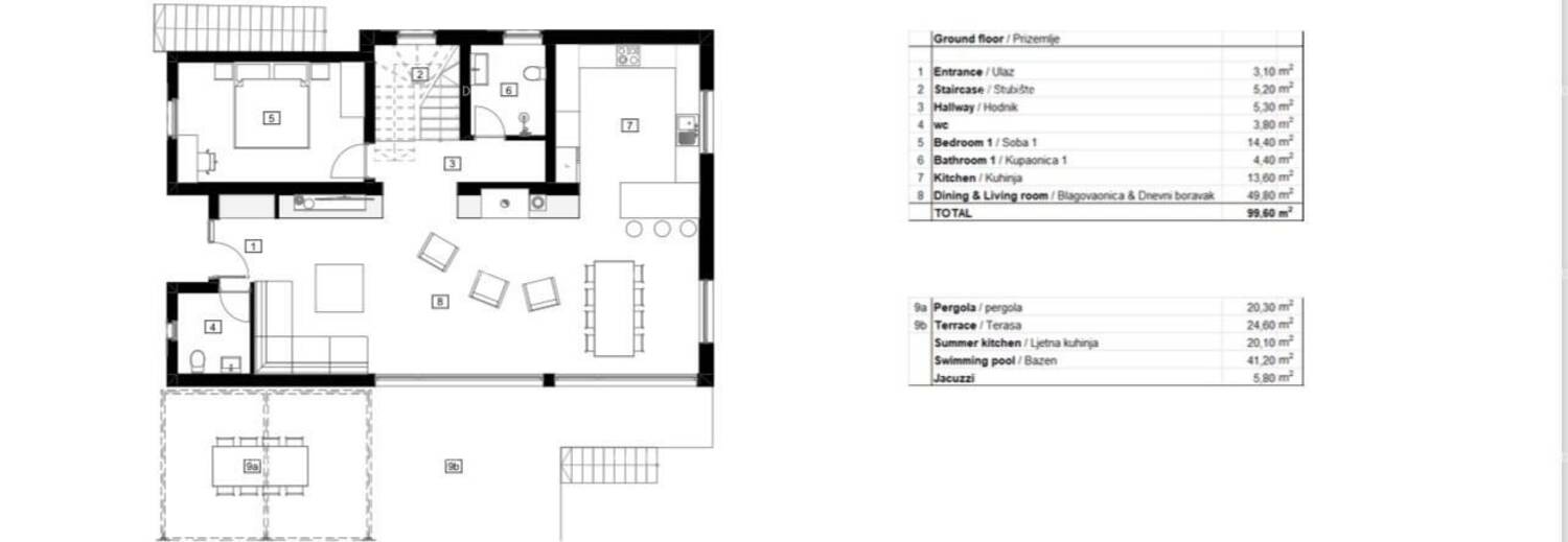
Prizemlje:
Prizemlje se sastoji od prostranog ulaza koji vodi u veliki dnevni boravak i blagovaonicu (48,89 m²) Uz dnevni boravak se nalazi moderna, potpuno opremljena kuhinja (6,90 m²). Na ovoj razini također se nalazi udobna spavaća soba, potpuno opremljena kupaonica te WC za goste. Velika vanjska terasa, ljetna kuhinja i elegantna pergola (20,30 m²) šire unutarnji prostor prema van, savršeni za uživanje u lijepo uređenom vrtu i bazenu.
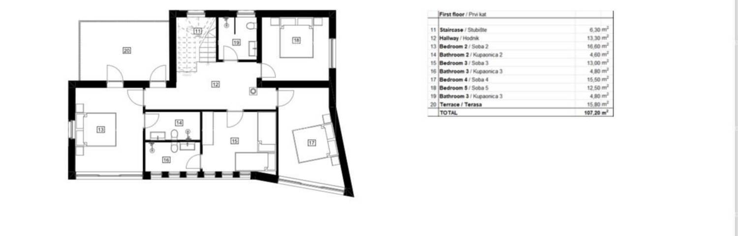
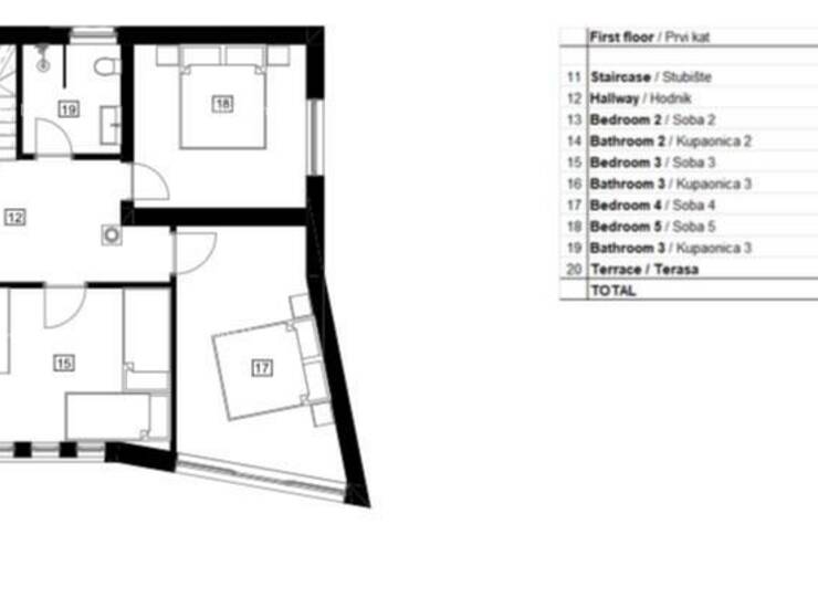
Prvi kat:
Prvi kat nudi pažljivo osmišljen raspored s četiri prostrane spavaće sobe, svaka s puno prirodnog svjetla i pogleda. Glavna spavaća soba (15,90 m²) ima vlastitu kupaonicu (4,80 m²). Dvije dodatne kupaonice služe ostalim spavaćim sobama. Na ovom katu nalazi se i velika terasa (16,80 m²), idealna za opuštanje i uživanje u panoramskom pogledu.
Krov:
Na krovu vile nalazi se predivno uređena terasa (27,90 m²) s pergolom (23,90 m²), koja pruža ekskluzivan prostor za objedovanje na otvorenom, sunčanje ili opuštanje uz prekrasan pogled.
Podrum:
Podrum nudi različite funkcionalne prostore, uključujući teretanu (26,50 m²), saunu (14,30 m²) i veliku garažu
Kontakt info
- Agencija
-
Alma Dom
- Kontakt osoba
- Alma Dom
- Telefon 1
- + 385 52 213... Prikaži broj
- Telefon 2
- + 385 52 210... Prikaži broj
- Adresa
- Istarska 10
- Pula, Hrvatska