KRALJEVICA - Građevinsko zemljište sa započetom gradnjom
Kraljevica
120.000€
133 €/m2
Tip
Zemljiste
Površina
900 m2
Detalji
- Tip
- Zemljiste
- Cijena
- 120.000€
- Površina
- 900 m2 (133 €/m2)
- Udaljenost od mora
- 800m
- Ažuriran
- 11.12.2025
- ID
- 48713
Opis
KRALJEVICA - Građevinsko zemljište sa započetom gradnjom
Prilika! Samo u našoj ponudi!
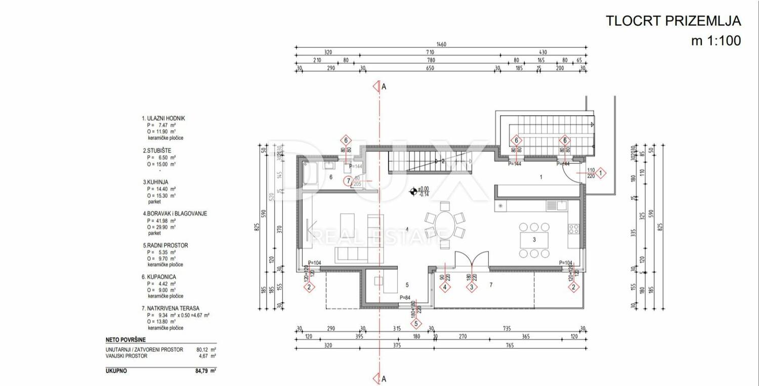
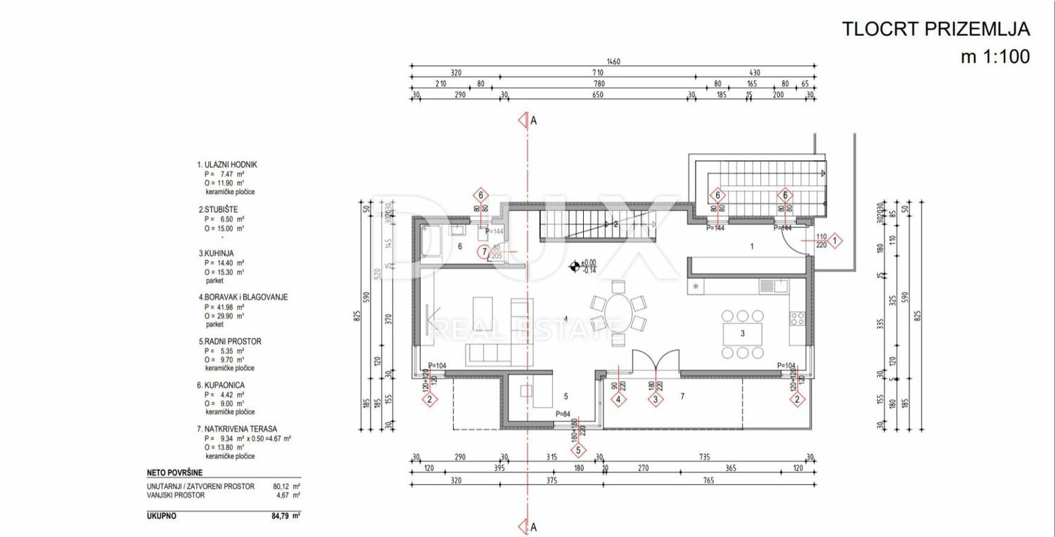
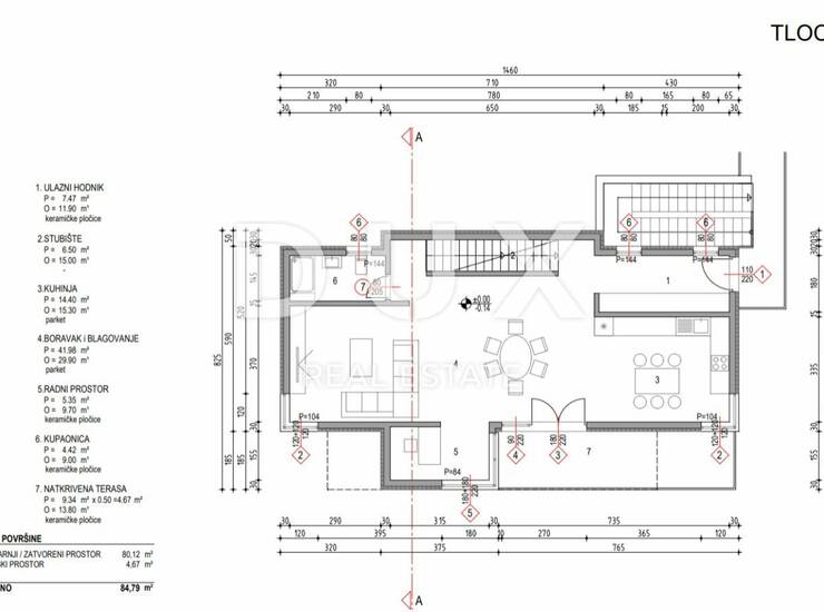
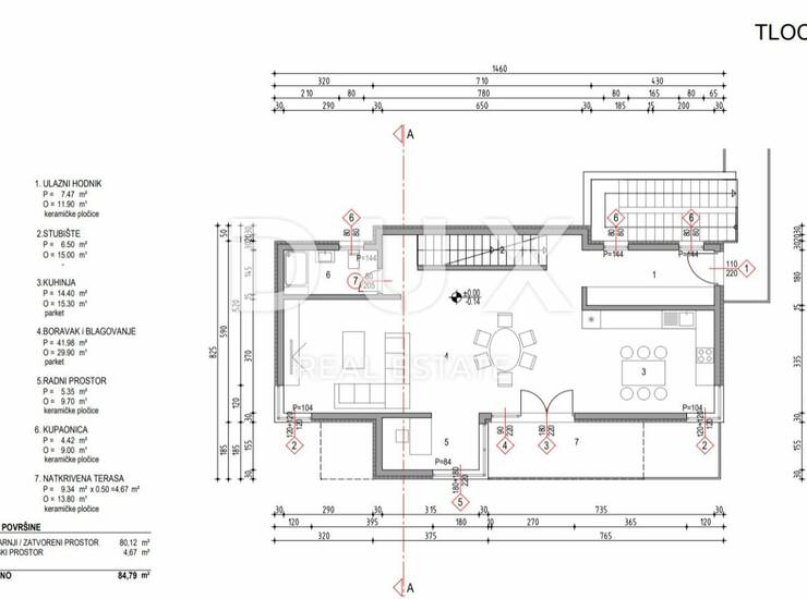
Građevinsko zemljište površine 900 m2 sa projektom za gradnju samostojeće obiteljske kuće sa tri etaže ukupne neto stambene površine od 253 m2 odnosno cca 90 m2 po etaži. Plaćen je komunalni doprinos i priključci struje i vode. Teren je očišćen i napravljena je temeljna ploča.
Podrumska etaža se po projektu sastoji od garaže, ostave i toaleta. Unutarnjim stubištem se dolazi do prizemne etaže koja ima i ulaz sa okućnice a sastoji se od hodnika, kupaonice, radne sobe, open space kuhinje sa blagovaonom i dnevnim boravkom te natkrivene terase. Unutarnjim stepenicama se dolazi na prvi kat koji se sastoji od hodnika, kupaonice i četri spavaće sobe od kojih dvije imaju vlastiti balkon.
Ukupno uložena sredstva da bi se projekt za gradnju obiteljske kuće doveo u ovu fazu iznose cca 50.000 €. Novi vlasnik može odmah nastaviti gradnju.
Poštovani klijenti, agencijska provizija se naplaćuje u skladu s Općim uvjetima poslovanja.
https://www.dux-nekretnine.hr/opci-uvjeti-poslovanja
ID KOD AGENCIJE: 28200
Dean Karabaić
Agent pripravnik
Mob: + 385 91 933 ... Prikaži broj
Tel: + 385 91 480 ... Prikaži broj
E-mail: dean@dux-nekretnine.hr
www.dux-krk.com
Kontakt info
- Agencija
-
DUX NEKRETNINE
- Kontakt osoba
- Dux Nekretnine
- Telefon 1
- + 385 51 518... Prikaži broj
- Telefon 2
- + 385 91 480 ... Prikaži broj
- Adresa
- Tizianova 8
- Rijeka, Hrvatska
Slične nekretnine
Kraljevica - prodaja građevinskog zemljišta sa idejnim rješenjem
- 125.000€ 965 m2
KRALJEVICA - zemljište u poslovnoj zoni
- 113.000€ 1614 m2
KRALJEVICA OŠTRO, GRAĐEVINSKI TEREN 250M OD MORA
- 112.000€ 984 m2
Kraljevica - prodaja zemljišta, 2360 m2!
- 129.000€ 2360 m2
Kraljevica
- 110.000€ 1811 m2
Oglas
- 130.000€ 1850 m2
KRALJEVICA
- 144.500€ 1591 m2
Kraljevica - prodaja građevinskog zemljišta od 1591m2!
- 145.000€ 1591 m2
Kraljevica - prodaja građevinskog zemljišta za 3 ili 4 kuće
- 146.000€ 1575 m2
Kraljevica - građevinsko mješovito zemljište sa pogledom na more!
- 150.000€ 1811 m2
TEREN KRALJEVICA
- 90.000€ 740 m2
Kraljevica, građevinsko zemljište sa idejnim projektom
- 88.000€ 700 m2