Na prodaju su tri građevinska zemljišta u mirnom naselju u općini Marča...

Marčana

52.500€

0 €/m2

Tip

Zemljiste

Površina

0 m2

Detalji

Tip
Zemljiste
Cijena
52.500€
Površina
0 m2 0 €/m2)
Površina zemljišta
353
Udaljenost od mora
0m
Ažuriran
17.12.2025
ID
94386

Opis

Na prodaju su tri građevinska zemljišta u mirnom naselju u općini Marčana, idealna prilika za izgradnju kuća za odmor s bazenom.
Sva zemljišta imaju pravomoćne građevinske dozvole i spremna su za početak gradnje!

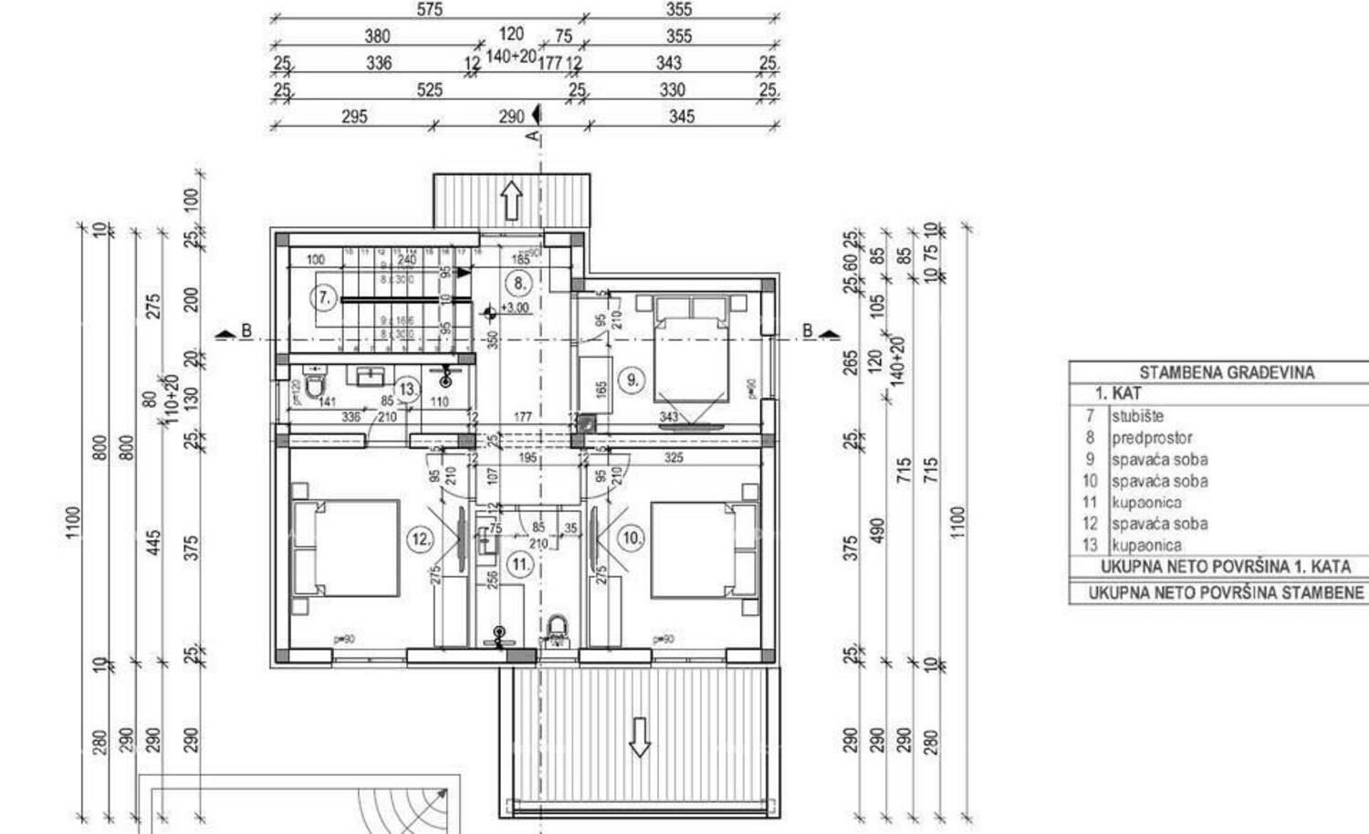
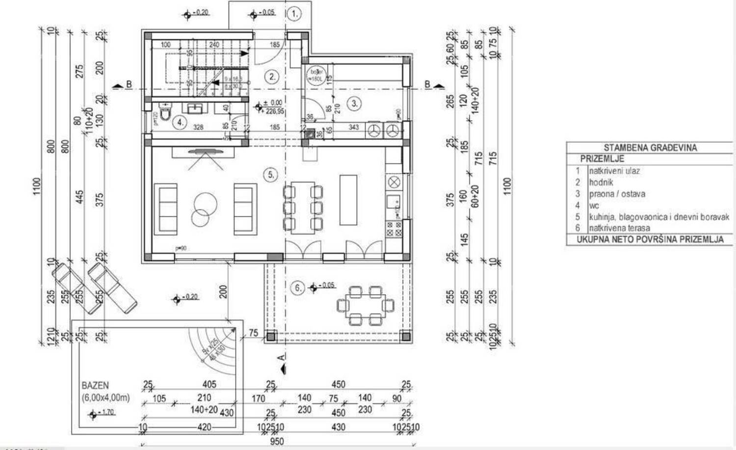
Prema projektu, na svakoj parceli predviđena je moderna kuća površine od približno 120 m² neto korisne površine, s tri spavaće sobe i tri kupaonice – savršena za obiteljski odmor ili turističko znajmljivanje.
Pristupni put uređen.
Iskopane i postavljene cijevi za struju, vodu, optiku.

Zemljišta se nalaze u mirnom i zelenom okruženju, idealnom za privatnost i odmor.
Cijena je navedena za jednu parcelu.

Za sve dodatne informacije i razgled stana, molimo kontaktirajte:

Azra
+ 385 91 611 ... Prikaži broj
+ 385 98 420... Prikaži broj
azra@almadominvest.com

Kontakt info

Agencija
Alma Dom
Kontakt osoba
Alma Dom
Telefon 1
+ 385 52 213... Prikaži broj
Telefon 2
+ 385 52 210... Prikaži broj
Adresa
Istarska 10
Pula, Hrvatska

Kontakt forma