ISTRA, PREMANTURA - Građevinsko zemljište s dozvolom za vilu 500 metara od mo
Premantura, Medulin
279.000€
348 €/m2
Tip
Zemljiste
Površina
800 m2
Detalji
- Tip
- Zemljiste
- Cijena
- 279.000€
- Površina
- 800 m2 (348 €/m2)
- Udaljenost od mora
- 500m
- Ažuriran
- 29.11.2025
- ID
- 59631
Opis
ISTRA, PREMANTURA Građevinsko zemljište s dozvolom za vilu 500 metara od mora s pogledom!
Posredujemo u prodaji prekrasnog zemljišta na vrhunskoj lokaciji u Premanturi.
Obzirom da je opće poznato kako je Premantura jedna od traženijih lokacija na jugu te je sve manje dostupnih građevinskih terena ova nekretnina predstavlja izvanrednu priliku.
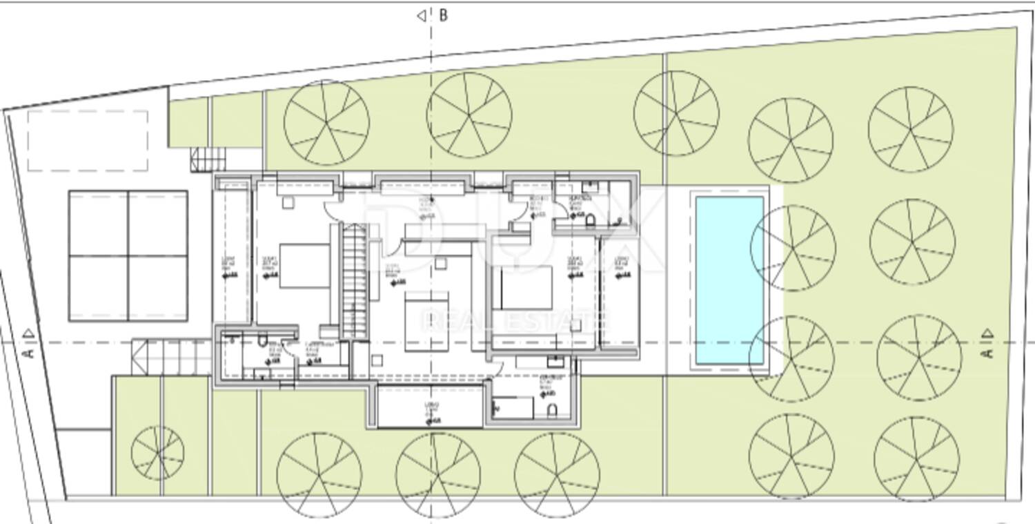
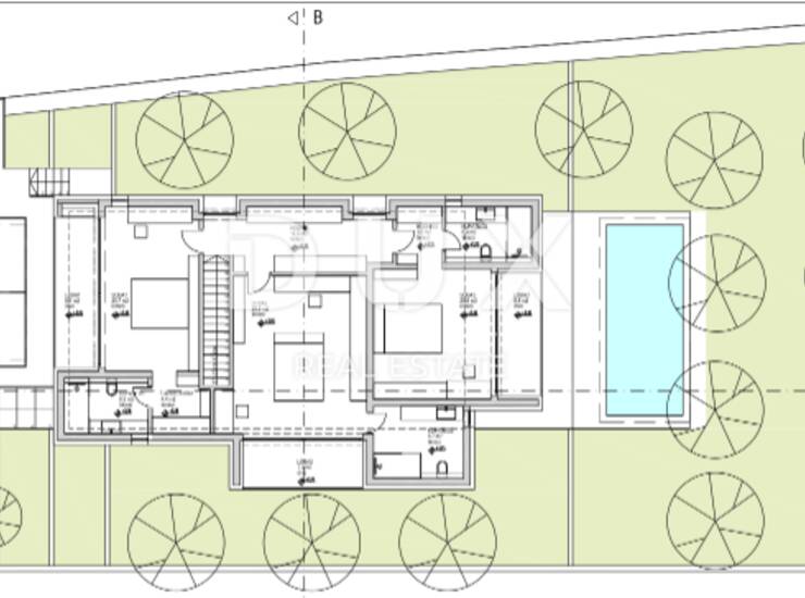
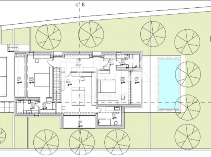
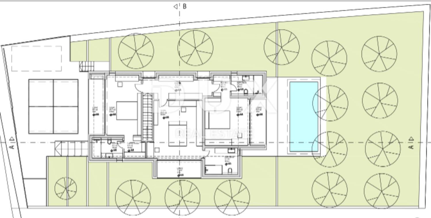
Zemljište posjeduje građevinsku dozvolu za vilu prizemlje + kat , te se s prvog kata vidi more.
Teren ima 800 m2 te se infrastruktura nalazi nekoliko metara od parcele.
Trenutno se na zemljištu nalazi 40- tak maslina.
Lokacija parcele nudi puno privatnosti i zelenila , a prve plaže nalaze se na 500 metara kao i park prirode Kamenjak koji predstavlja poseban dio kulturne baštine.
Izvanredna prilika!
Poštovani klijenti, agencijska provizija naplaćuje se u skladu s Općim uvjetima poslovanja
www.dux-nekretnine.hr/opci-uvjeti-poslovanja
ID KOD AGENCIJE: 32259
Ivana Škoro
Agent s licencom
Mob: + 385 95 388 ... Prikaži broj
Tel: + 385 99 640 ... Prikaži broj
E-mail: ivana@dux-istra.com
www.dux-istra.com
Kontakt info
- Agencija
-
DUX NEKRETNINE
- Kontakt osoba
- Dux Nekretnine
- Telefon 1
- + 385 51 518... Prikaži broj
- Telefon 2
- + 385 91 480 ... Prikaži broj
- Adresa
- Tizianova 8
- Rijeka, Hrvatska
Slične nekretnine
ISTRA, PREMANTURA - Građevinsko zemljište na lijepoj lokaciji
- 239.000€ 605 m2
ISTRA, PREMANTURA - Građevinsko zemljište 1300 m2
- 338.000€ 1300 m2
ISTRA, PREMANTURA - Građevinsko zemljište 1000 m2!
- 399.000€ 1010 m2
PREMANTURA, GRAĐEVINSKO ZEMLJIŠTE 200 METARA OD CENTRA
- 400.000€ 1793 m2
Medulin, Premantura - PRILIKA za investiciju
- 73.000€ 719 m2
Medulin, Premantura - PRILIKA za investiciju
- 73.000€ 719 m2
ISTRA, PREMANTURA, POLJOPRIVREDNO ZEMLJIŠTE 1500 M2
- 63.000€ 1508 m2
ISTRA, PREMANTURA - Građevinsko zemljište 1615m2
- 638.000€ 1615 m2