U ponudi je građevinsko zemljište površine 642 m² u Medulinu, s pravomo...

Medulin

206.000€

0 €/m2

Tip

Zemljiste

Površina

0 m2

Detalji

Tip
Zemljiste
Cijena
206.000€
Površina
0 m2 0 €/m2)
Površina zemljišta
642
Udaljenost od mora
0m
Ažuriran
25.10.2025
ID
92798

Opis

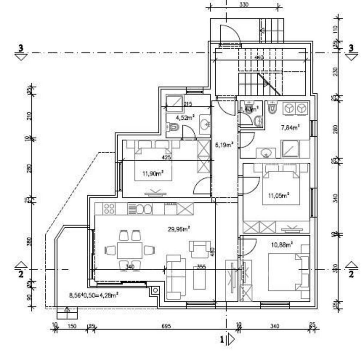
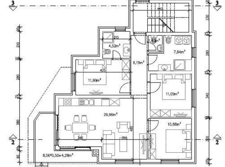
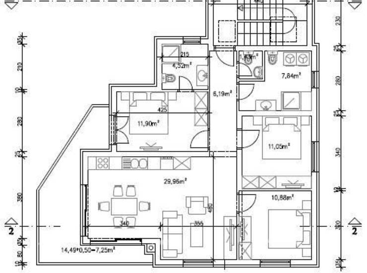
U ponudi je građevinsko zemljište površine 642 m² u Medulinu, s pravomoćnom građevinskom dozvolom i projektom za izgradnju stambene kuće.

Predviđena zgrada sastoji se od tri stambene jedinice.
Svaki stan uključuje:
hodnika
3 spavaće sobe
2 kupaonice
Dnevni boravak, kuhinju i blagovaonicu.

Atraktivna lokacija u jednom od najtraženijih mjesta južne Istre.
Idealno za investitore – odličan potencijal za turistički najam ili prodaju stanova.


Za više informacija pogledajte sljedeće informacije:
Azra
+ 385 91 611 5... Prikaži broj
+ 385 98 420 ... Prikaži broj
azra@almadominvest.com

Kontakt info

Agencija
Alma Dom
Kontakt osoba
Alma Dom
Telefon 1
+ 385 52 213... Prikaži broj
Telefon 2
+ 385 52 210... Prikaži broj
Adresa
Istarska 10
Pula, Hrvatska

Kontakt forma