MRKOPALJ, TEREN S GRAĐEVINSKOM DOZVOLOM ZA A FRAME KUĆU
Sunger, Mrkopalj
63.000€
102 €/m2
Tip
Zemljiste
Površina
612 m2
Detalji
- Tip
- Zemljiste
- Cijena
- 63.000€
- Površina
- 612 m2 (102 €/m2)
- Ažuriran
- 09.03.2026
- ID
- 97405
Opis
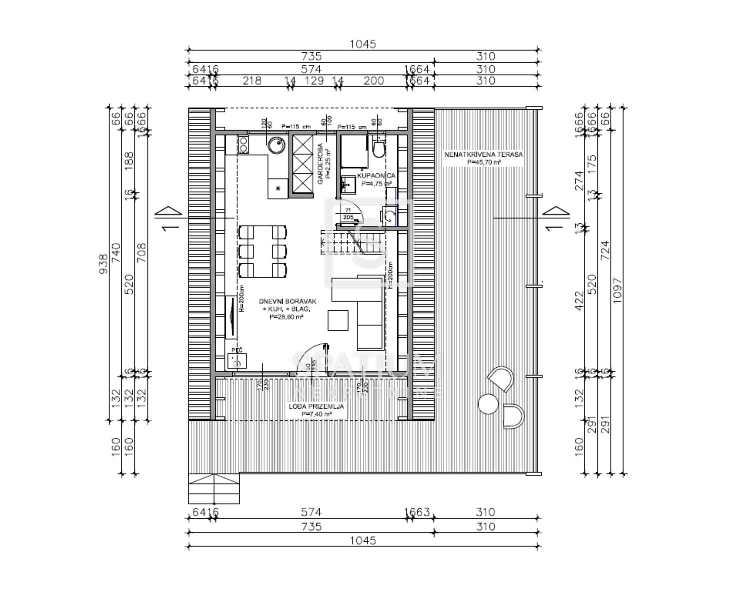
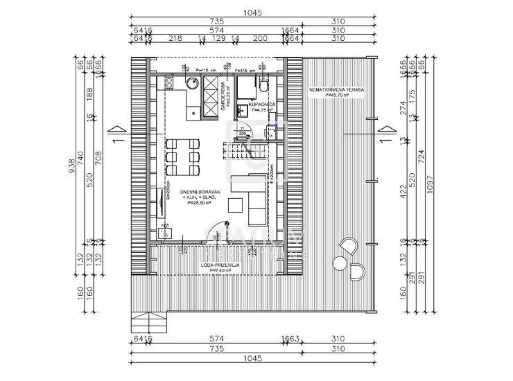
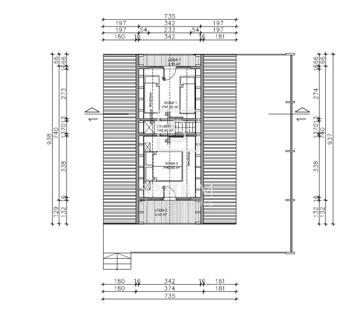
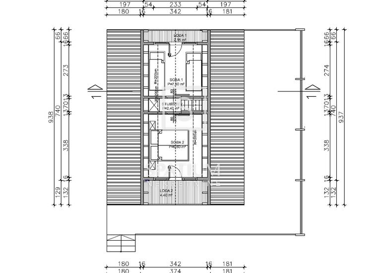
MRKOPALJ, SUNGER, u ponudu smo dobili odličan teren s građevinskom dozvolom za gradnju A kuće.
Teren je pravokutnog oblika, blago nakošen, ukuone površine 612m2. Prodaje se s pravomoćnom građevinskom dozvolom za gradnju A frame kuće. Voda i struja su dovedeni do terena, komunalni doprinosi su plaćeni tako da je teren spreman za gradnju.
Ukoliko želite pobjeći od užurbanosti svakodnevnice i opustiti se na čistom zraku i netaknutoj prirodi goranskog kraja, Mrkopalj je pravo odredište za Vas. Ovdje možete provesti odmor zimi, uz škripu snijega pod nogama, u snježnoj vijavici, sanjkanju i skijanju u prijateljskom ambijentu. Mrkopaljski kraj pravo je odredište, sa svojom netaknutom prirodom omogućuje aktivan i zdrav odmor ljeti i zimi– jedinstven i neponovljiv. Opatija je udaljena 44 km od nekretnine, a Rijeka se nalazi na 33 km. Najbliža zračna luka je Zračna luka Rijeka, do koje ima 26 km.
Za ostale informacije obratite nam se s povjerenjem.
Sanjin Latinčić
agent s licencom
+ 385 91 28 99... Prikaži broj
sanjin@spatium.hr
Spatium nekretnine
+ 385 51 272... Prikaži broj
info@spatium.hr
ID KOD AGENCIJE: 6994
Sanjin Latinčić
Agent s licencom
Mob: + 385 91 289 ... Prikaži broj
Tel: + 385 51 272... Prikaži broj
E-mail: sanjin@spatium.hr
www.spatium.hr
Kontakt info
- Agencija
-
Spatium Nekretnine
- Kontakt osoba
- Vedran Prica
- Telefon 1
- + 385 51 272... Prikaži broj
- Telefon 2
- + 385 95 812 ... Prikaži broj
- Adresa
- Šetalište Andrije Kačića Miošića 5
- Rijeka Centar
- Rijeka, Hrvatska
Slične nekretnine
Mrkopalj građevinsko zemljište
- 63.200€ 761 m2
Gorski kotar, Sunger, građevinsko zemljište, 612m2
- 62.500€ 612 m2
Mrkopalj, građevinski teren za kuću
- 62.500€ 612 m2
Mrkopalj, Sunger - prodaja građevinskog zemljišta, 612m2!
- 62.000€ 612 m2
Mrkopalj građevinsko zemljište
- 55.700€ 671 m2
Mrkopalj građevinsko zemljište
- 52.500€ 632 m2
Mrkopalj građevinsko zemljište
- 50.800€ 612 m2
Mrkopalj, Sunger - prodaja poljoprivrednog zemljišta, 5909m2!
- 28.000€ 5909 m2
Mrkopalj, Sunger - prodaja građevinskog zemljišta od 1854m2!
- 115.000€ 1854 m2
Gorski kotar, Sunger, zemljište s projektom, 8.360m2
- 300.000€ 8360 m2