Ova prekrasna kuća smještena u Pazinu pruža savršen spoj udobnosti i pr...

Pazin

875.500€

3 979 €/m2

Tip

Kuća

Površina

220 m2

Struktura

3

Detalji

Tip
Kuća
Struktura
3
Cijena
875.500€
Površina
220 m2 (3 979 €/m2)
Površina zemljišta
1000
Kat
1
Ukup. katova
2
Udaljenost od mora
0m
Parkirno mjesto
Da
Ažuriran
10.12.2025
ID
92605

Opis

Ova prekrasna kuća smještena u Pazinu pruža savršen spoj udobnosti i prostranosti.

S 220 m² stambenog prostora na prostranom zemljištu od 1000 m², idealna je za obitelj.

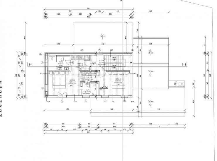
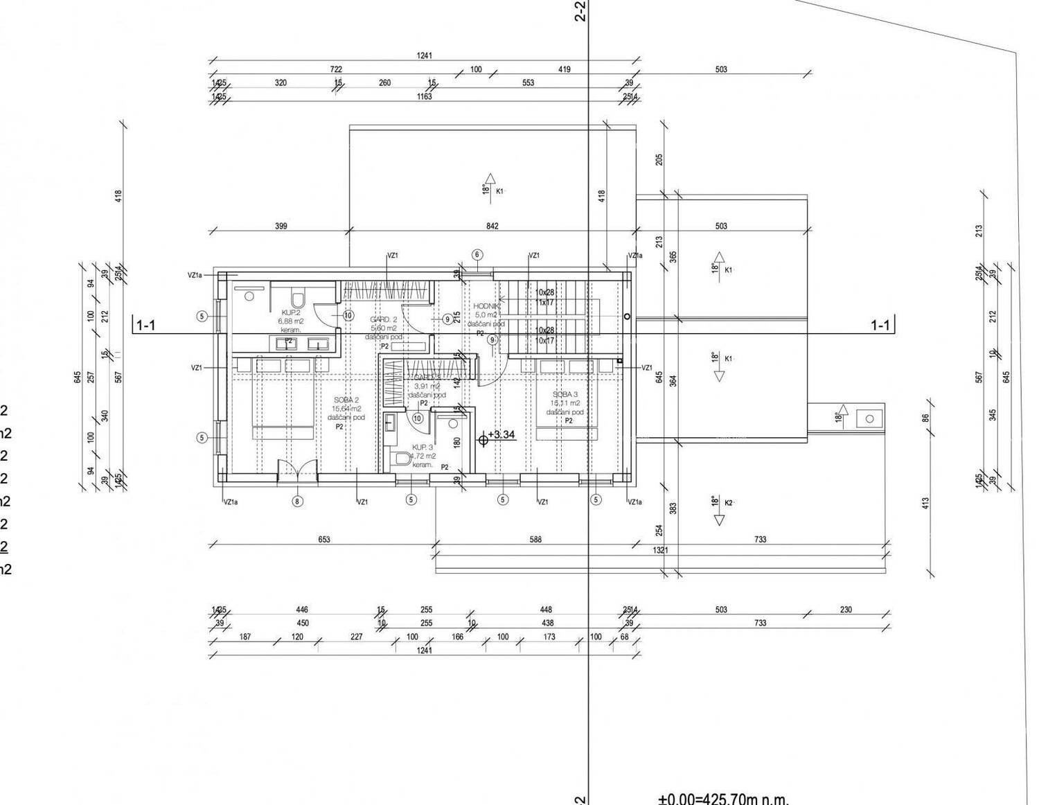
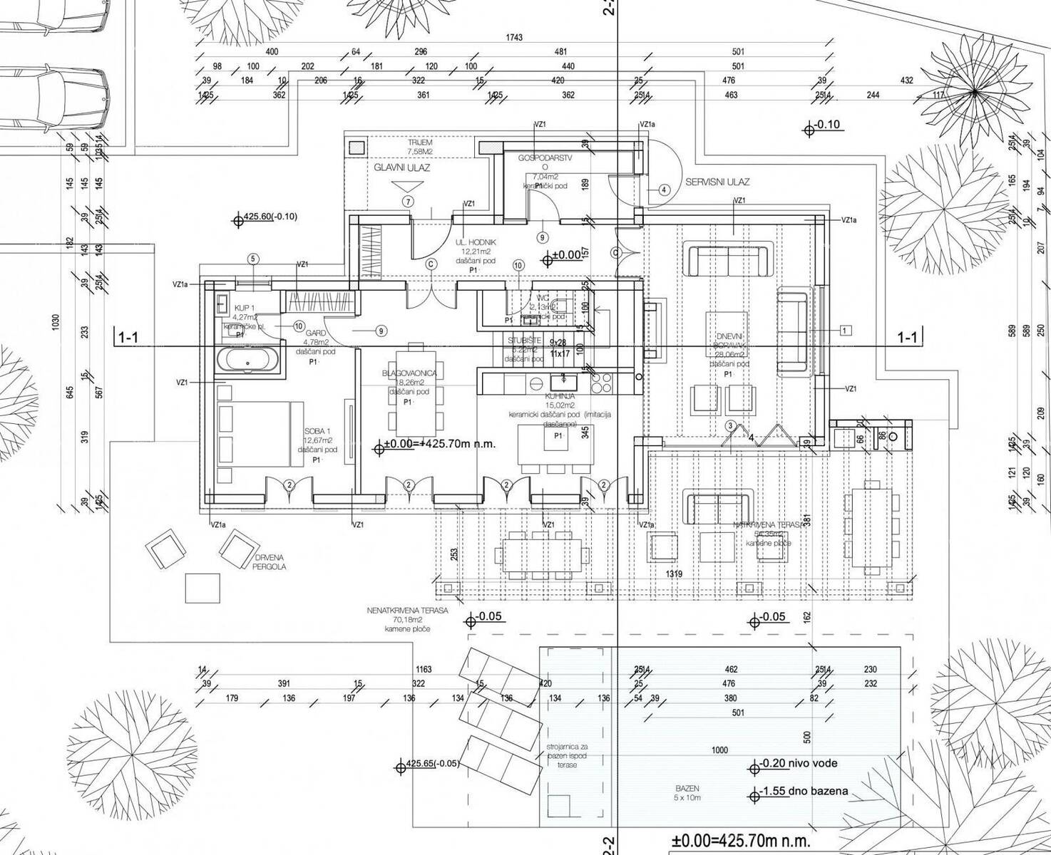
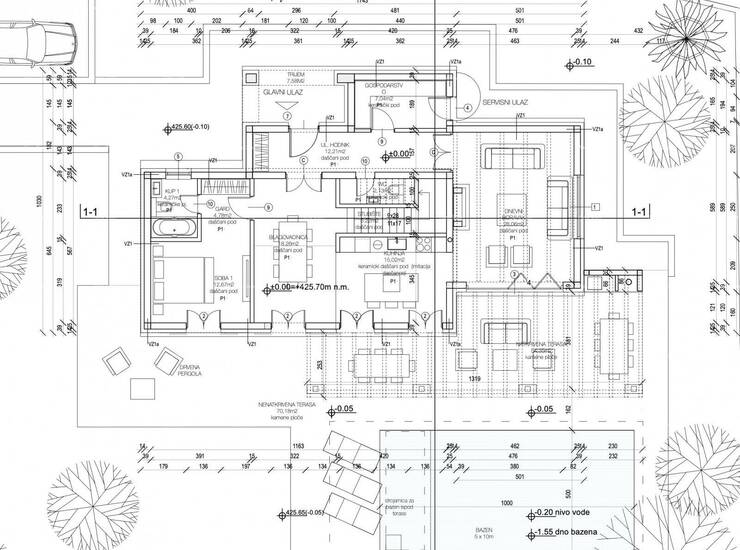
Kuća se sastoji od prizemlja i prvog kata. U prizemlju se nalazi: ulaz, vešeraj, spavaća soba s kupaonom, dnevni boravak, kuhinja, balgavaona, gostinjski toalet. U dvorištu se nalaze natkrivena terasa, bazen i sunčalište. Prvi kat uključuje hodnik, 2 spavaće sobe s vlatitim kupaonama i garderobama.

Parking mjesto za dva vozila.

Azra
+ 385 91 611 ... Prikaži broj
+ 385 98 420... Prikaži broj
azra@almadominvest.com

Kontakt info

Agencija
Alma Dom
Kontakt osoba
Alma Dom
Telefon 1
+ 385 52 213... Prikaži broj
Telefon 2
+ 385 52 210... Prikaži broj
Adresa
Istarska 10
Pula, Hrvatska

Kontakt forma