Prodajemo vilu s bazenom. Vila se nalazi u općini Tar i pruža predivan po...
Tar, Poreč
1.339.000€
4 617 €/m2
Tip
Kuća
Površina
290 m2
Struktura
4
Detalji
- Tip
- Kuća
- Struktura
- 4
- Cijena
- 1.339.000€
- Površina
- 290 m2 (4 617 €/m2)
- Površina zemljišta
- 676
- Ukup. katova
- 3
- Udaljenost od mora
- 0m
- Parkirno mjesto
- Da
- Ažuriran
- 28.01.2026
- ID
- 75842
Opis
Prodajemo vilu s bazenom.
Vila se nalazi u općini Tar i pruža predivan pogled na more.
Vila je predviđena za boravak 8 osoba.
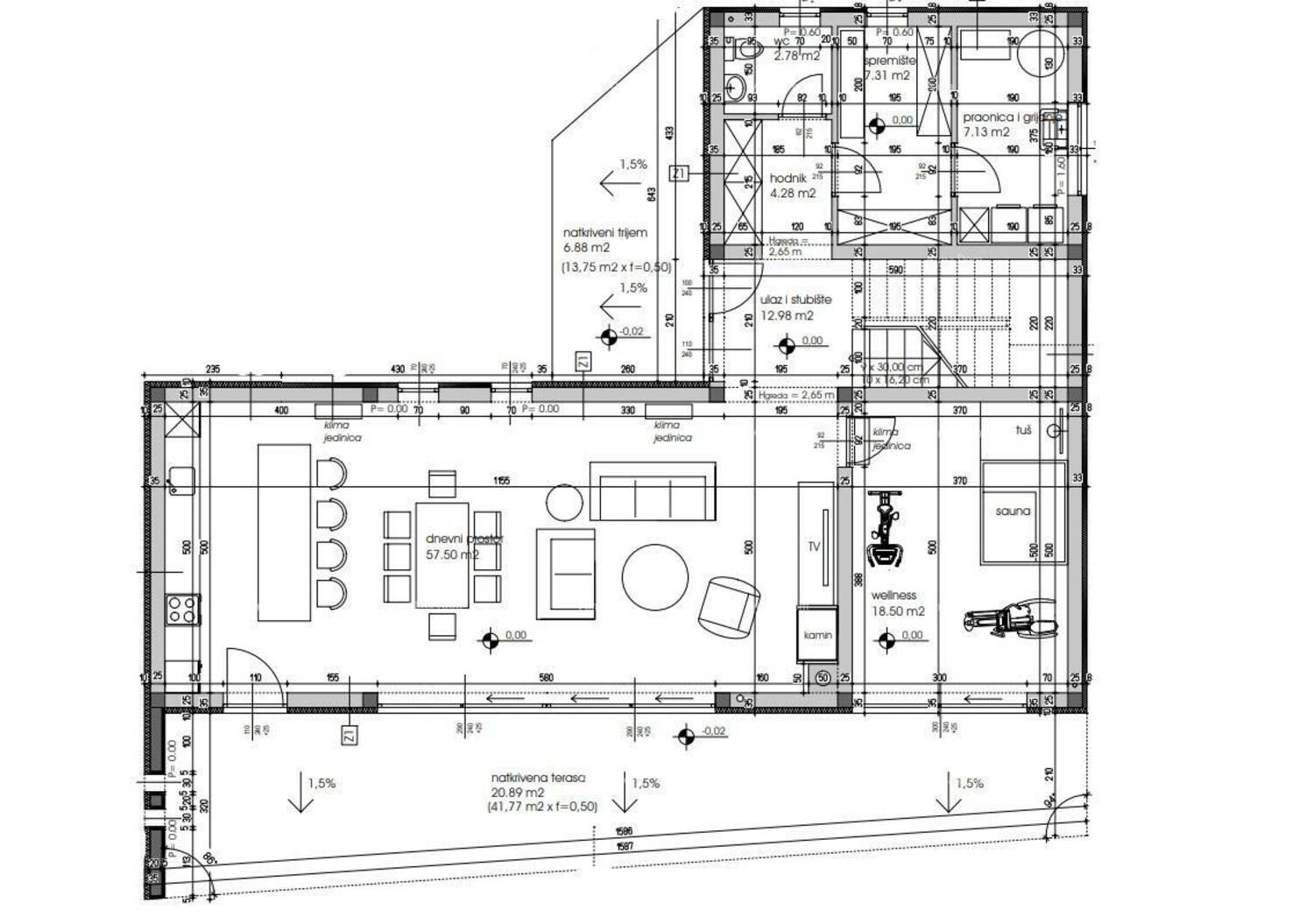
U prizemnom dijelu građevine nalazi se natkriveni trijem, hodnik, wc, praonica, prostor grijanja/spremište, wellness, dnevni prostor, prostor stubišta i natkrivena terasa.
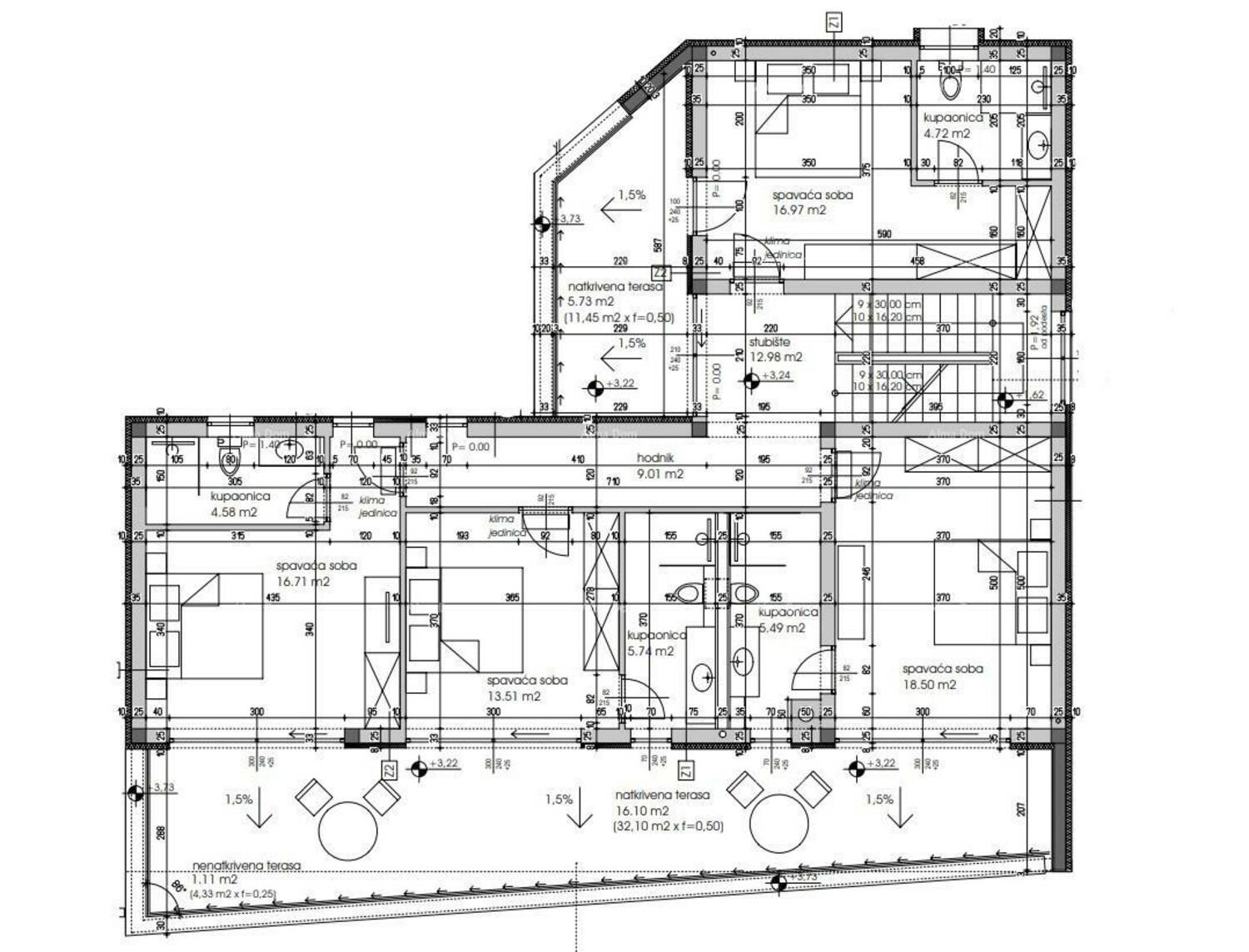
Na prvom katu nalaze se četiri spavaće sobe sa pripadajućim kupaonicama, hodnik, natkrivena I nenatkrivena terasa.
Na drugom katu nalazi se prostor stubišta, natkrivena i nenatkrivena terasa.
Na zidovima sanitarija planiraju se keramičke pločice I klase u visini 2,20 m. Na svim unutarnjim podnim površinama prizemlja, kao i sanitarije na prvom katu predviđeno je postavljanje keramičkih pločica I klase kao završne podne obloge. Na svim unutarnjim podnim površinama prvog kata predviđa se postavljanje poda od parketa kao završne podne obloge osim u kupaonicama gdje se predviđa postavljanje keramičkih pločica I klase.
Grijanje u stambenoj građevini predviđeno je toplinskom pumpom na električni pogon putem podnog grijanja. Kao dodatni izvor grijanja može služiti i kamin smješten u dnevnom boravku. Hlađenje u građevini je predviđeno klima jedinicama.
Na okučnici vile se nalazi otvoreni bazen veličine 8m*4m, predviđena dubina vode je 135 cm.
Usjeljivo sredinom 2024 god.
Tvrtka prodaje te je u cijeni uključen PDV u iznosu
od 25 %.
Za dodatne informacije i razgled stojimo na raspolaganju:
+ 385 91 611... Prikaži broj
+ 385 98 420... Prikaži broj
azra@almadominvest.com
Kontakt info
- Agencija
-
Alma Dom
- Kontakt osoba
- Alma Dom
- Telefon 1
- + 385 52 213... Prikaži broj
- Telefon 2
- + 385 52 210... Prikaži broj
- Adresa
- Istarska 10
- Pula, Hrvatska