Sveti Lovreč okolica, novogradnja, samostojeća kuća
Sveti Lovreč
490.000€
4 152 €/m2
Tip
Kuća
Površina
118 m2
Struktura
4
Detalji
- Tip
- Kuća
- Struktura
- 4
- Cijena
- 490.000€
- Površina
- 118 m2 (4 152 €/m2)
- Površina zemljišta
- 284
- Grijanje
- Sustav grijanja, klimatizacije i ventilacije
- Terasa
- Da
- Udaljenost od mora
- 15000m
- Parkirno mjesto
- Da
- Ažuriran
- 19.01.2026
- ID
- 96327
Opis
Istra, Sveti Lovreč okolica
Prodaje se novoizgrađena samostojeća kuća na mirnoj lokaciji nedaleko od Svetog Lovreča i od Poreča.
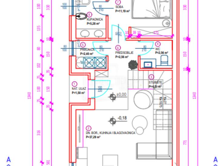
Površina kuće iznosi 118.18 m2, a kuća se proteže na prizemlje i kat. U prizemlju se nalazi ulazni hodnik, dnevni boravak sa kuhinjom i blagovaonicom open space koncepta, spavaća soba sa vlastitom kupaonicom, gostinjski wc i praonica. Unutarnjim stepenicama se dolazi do kata gdje se nalazi hodnik te 2 spavaće sobe, svaka sa svojom kupaonicom i svaka sa svojom terasom. Sa jedne terase se pruža pogled na prirodu i na more.
Kuća je trenutno u fazi gradnje, a predviđeni završetak gradnje je kraj 2026.godine. U gradnji se koriste kvalitetni materijali. Po kući su postavljene pločice, a u spavaćim sobama je postavljen parket. Grijanje je regulirano putem podnog grijanja na struju i klima uređaja. Kuća ima jacuzzi i saunu, što novom vlasniku pruža dodatni komfor.
Okućnica je uređena i ograđena. Dio okućnice ispunjen je zelenim travnjakom, a u sklopu okućnice nalazi se natkriveni prostor za parking.
Kuća se nalazi na kraju malog i mirnog istarskog sela nedaleko od Svetog Lovreča. Poreč i plaže udaljeni su 15-ak minuta vožnje. U blizini se nalaze restorani, agroturizmi, vinarije, šetnice, biciklističke staze, šuma i razni drugi sadržaji.
S obzirom da se radi o novoizgrađenoj modernoj kući, smještenoj na mirnoj lokaciji, kuća je idealna za miran obiteljski život, kao i za turističke svrhe i za odmor z
Kontakt info
- Agencija
-
SPECTRUM REAL ESTATE
- Reg. posrednika br.
- 75/2024
- Kontakt osoba
- Davide Malinarich
- Telefon 1
- 091955... Prikaži broj
- Adresa
- Ulica rijeke Dragonje 7
- Novigrad, Hrvatska
Slične nekretnine
Samostojeća kuća s bazenom, Istra
- 509.000€ 106 m2
ISTRA, SVETI LOVREČ - Ruralna kuća s bazenom
- 520.000€ 170 m2
ISTRA, SV. LOVREČ - Vila u visokom roh bau na super lokaciji!
- 460.000€ 186 m2
Sv. Lovreč – moderna montažna vila 190 m² s pogledom na more
- 460.000€ 190 m2
ISTRA, SVETI LOVREČ - Kuća s bazenom na rubu naselja
- 450.000€ 140 m2
Sveti Lovreč, Fantastična villa u prirodi, ROH-BAU
- 412.500€ 186 m2
SVETI LOVREČ, KAMENA KUĆA S BAZENOM
- 575.000€ 160 m2
Samostojeća kuća s bazenom, Istra
- 581.000€ 107 m2
Sveti Lovreč okolica, kamena kuća sa bazenom na mirnoj lokaciji
- 590.000€ 153 m2
ISTRA, SVETI LOVREČ - Prekrasna vila s bazenom
- 595.000€ 168 m2