Prodajemo dvije nekretnine: Vodnjan. Kuća u izgradnji s bazenom, smješte...

Svetvinčenat

438.000€

3 945 €/m2

Tip

Kuća

Površina

111 m2

Struktura

3

Detalji

Tip
Kuća
Struktura
3
Cijena
438.000€
Površina
111 m2 (3 945 €/m2)
Površina zemljišta
614
Kat
1
Ukup. katova
2
Udaljenost od mora
0m
Parkirno mjesto
Da
Ažuriran
17.05.2026
ID
94383

Opis

Prodajemo dvije nekretnine:

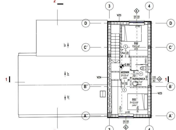
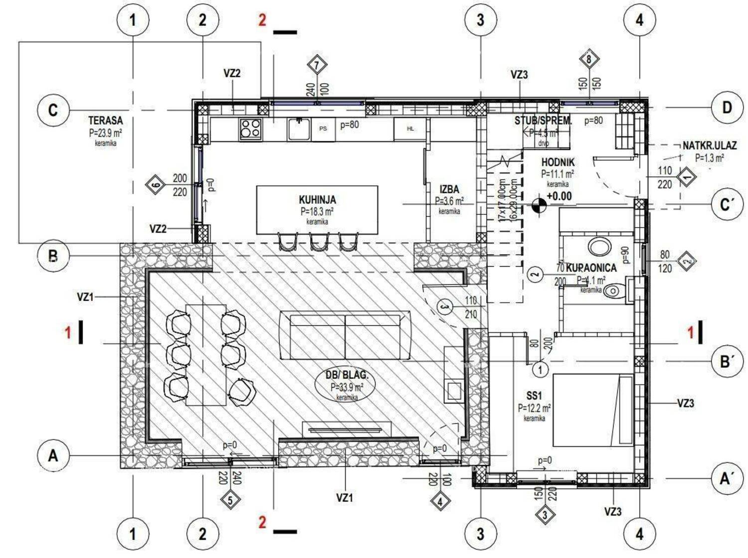
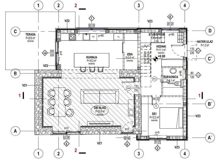
Vodnjan. Kuća u izgradnji s bazenom, smještena na mirnoj lokaciji na kraju sela. Kuća se sastoji od prizemlja (dnevni boravak, blagovaonica i kuhinja kao open space, spavaća soba, kupaonica, ostava) i kata (dvije spavaće sobe i kupaonica). Vanjska terasa iznosi 23 m², a bazen 28 m². Kuća ima pristup s javnog puta i predviđeno grijanje na dizalicu topline.

Svetvičenat. Građevinska parcela od 545 m² s dozvolom za gradnju kuće s bazenom. Na parceli su predviđeni kuća s prizemljem i katom, vanjski bazen, spremište, te dva parkirna mjesta. Priključci za struju i vodu su osigurani.

INFO:
azra@almadominvest.com
+ 385 91 611... Prikaži broj
jelena@alma-nekretnine.com
+ 385 98 323... Prikaži broj

Kontakt info

Agencija
Alma Dom
Kontakt osoba
Alma Dom
Telefon 1
+ 385 52 213... Prikaži broj
Telefon 2
+ 385 52 210... Prikaži broj
Adresa
Istarska 10
Pula, Hrvatska

Kontakt forma