U prodaji je atraktivna kamena kuća s projektom za obnovu i građevinskom ...

Svetvinčenat

93.000€

930 €/m2

Novo 4
Kuca, Svetvinčenat, prodaja, 93000 €, 100 m2
Kuca, Svetvinčenat, prodaja, 93000 €, 100 m2
Kuca, Svetvinčenat, prodaja, 93000 €, 100 m2
Kuca, Svetvinčenat, prodaja, 93000 €, 100 m2
Tip

Kuća

Površina

100 m2

Detalji

Tip
Kuća
Cijena
93.000€
Površina
100 m2 (930 €/m2)
Površina zemljišta
110
Ukup. katova
2
Udaljenost od mora
0m
Ažuriran
24.10.2025
ID
93498

Opis

U prodaji je atraktivna kamena kuća s projektom za obnovu i građevinskom dozvolom u šarmantnom srednjevjekovnom gradiću Svetvinčenat u središtu Istre.
Svetvinčenat je jedan je od istarskih dragulja sa bogatom turističkom ponudom te brojnim događajima koje se odigravaju u izvanredno atraktivnim povijesnim prostorima ovog gradića. Osim kulturnih i povjestnih baština Svetvinčenat je primamljiva destinacija za sve ljubitelje biciklističkih i pješačkih staza.
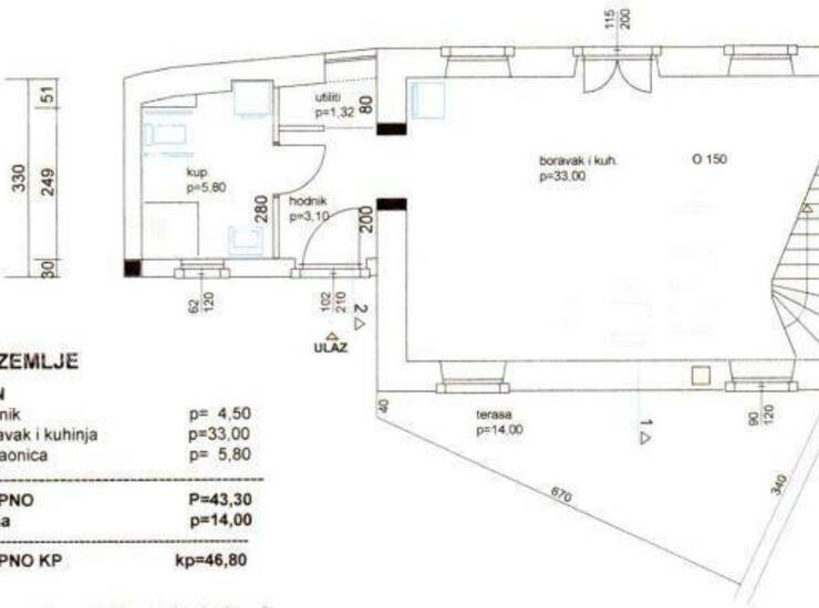
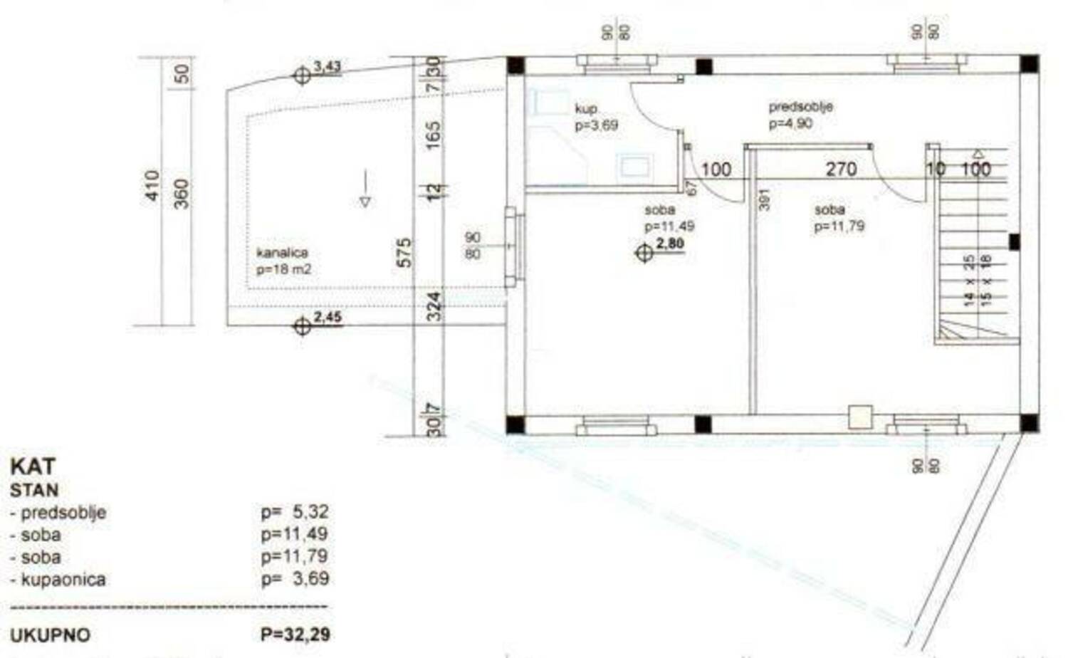
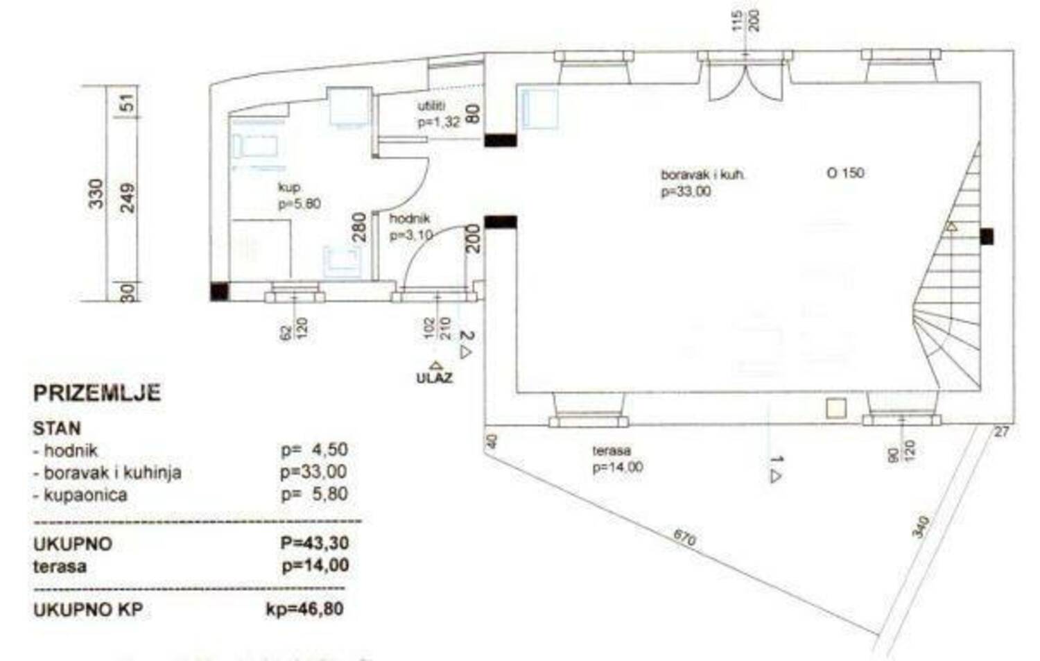
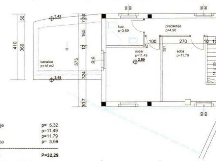
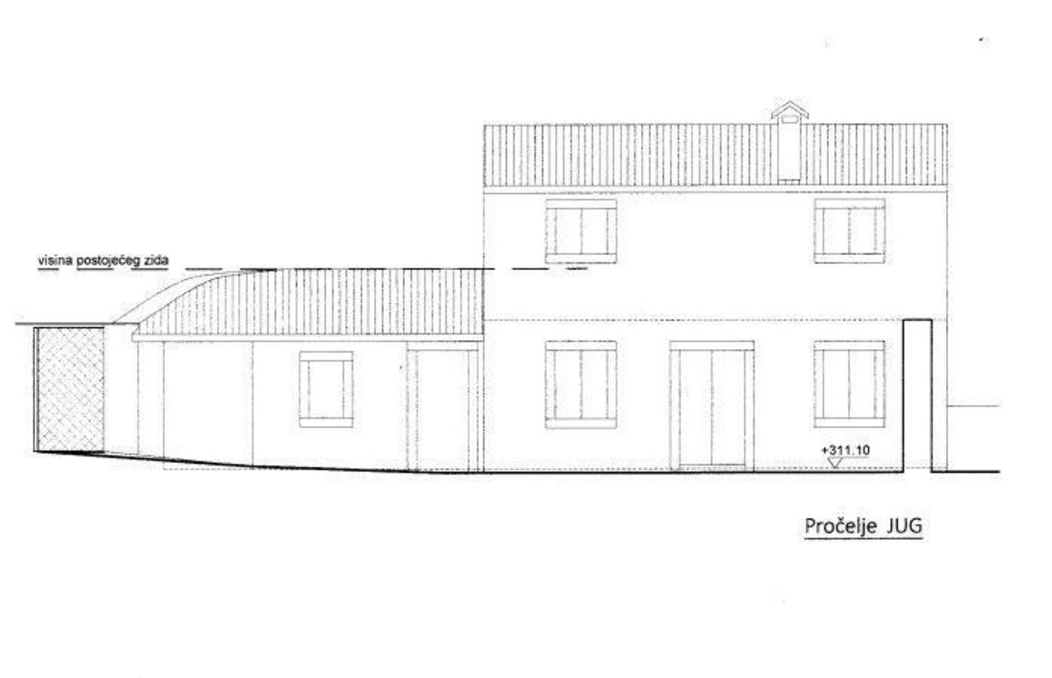
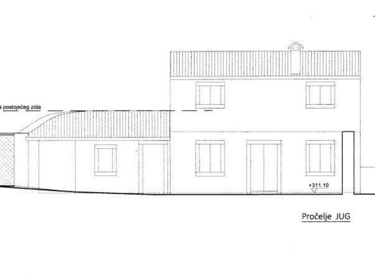
U ponudi je kuća za obnovu s projektom i građevinskom dozvolom.
Projekt je smišlen tako da se nadogradi na 60 m2 prostora u prizemlju još jedan kat od 40 m2, a uz kuću je i okućnica od 110 m2 gdje ima mjesta za parkirno mjesto.

Za pitanja i razgled kontaktirajte nas na:

Azra Valjevac
azra@almadominvest.com
+ 385 91 611 ... Prikaži broj

alma@alma-nekretnine.com
+ 38598 420... Prikaži broj

Kontakt info

Agencija
Alma Dom
Kontakt osoba
Alma Dom
Telefon 1
+ 385 52 213... Prikaži broj
Telefon 2
+ 385 52 210... Prikaži broj
Adresa
Istarska 10
Pula, Hrvatska

Kontakt forma