Svetvinčenat, okolica, građevinsko zemljište sa projektom i građevinskom do
Svetvinčenat
140.000€
255 €/m2
Tip
Zemljiste
Površina
548 m2
Detalji
- Tip
- Zemljiste
- Cijena
- 140.000€
- Površina
- 548 m2 (255 €/m2)
- Ažuriran
- 04.04.2026
- ID
- 58074
Opis
Svetvinčenat, građevinsko zemljište sa projektom i građevinskom dozvolom
U blizini renesansnog gradića Svetvinčenta, kojeg odlikuje bogata kulturna baština, raznovrsna gastronomska i turistička ponuda, te brojna događanja tokom cijele godine, prodaje se ovo građevinsko zemljište s projektom za kuću sa bazenom i građevinskom dozvolom.
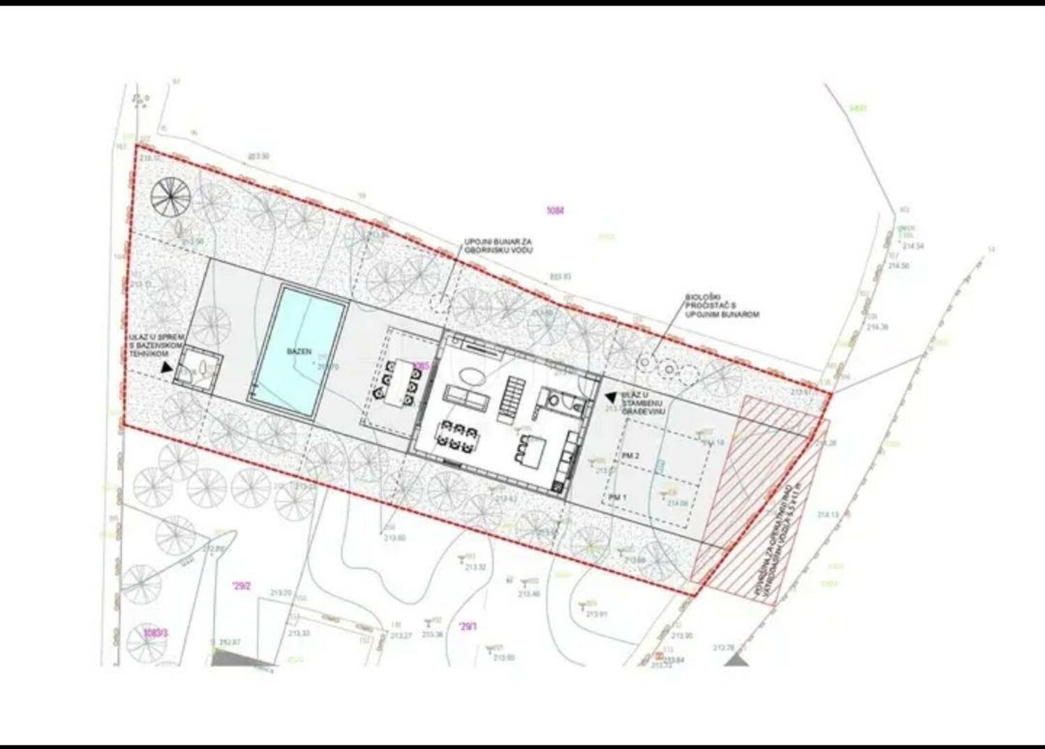
Zemljište se nalazi na kraju sela u slijepoj ulici, pravilnog je oblika, površine 548 četvornih metara.
Ima pristup sa javnog puta, sa dvije je strane omeđeno suhozidima.
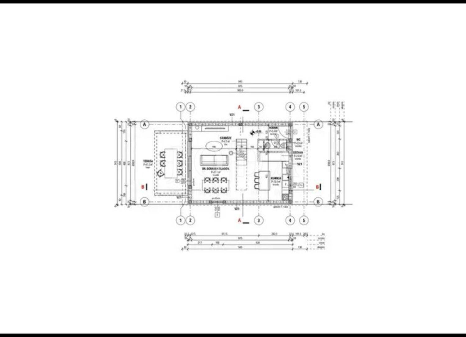
Na navedenom zemljištu predviđena je gradnja samostojeće stambene građevine, prizemlje i kat, bazen i parking za dva auta.
U prizemlju kuće predviđeni su dnevni boravak, blagovaonica i kuhinja kao open space prostor, ostava, toalet i hodnik.
Na kat se dolazi unutarnjim stepenicama, gdje su predviđene tri spavaće sobe svaka sa svojom kupaonom.
Vanjska terasa iznosi 40 četvornih metara, bazen 28 četvornih metara.
U neposrednoj blizini zemljišta nalaze se kuće za odmor, te je ova buduća kuća idealna za sve one koji žele uživati u svim blagodatima koje nudi mirno istarsko selo, bilo za miran obiteljski život ili za iznajmljivanje u turističke svrhe.
Na parceli se nalaze priključci za struju i vodu.
Predan je zahtjev za izdavanje građevinske dozvole za kuću neto površine 120 četvornih metara s pomoćnim objektima, a koja se očekuje na ljeto 2024. godine.
U prodajnu cijenu je uključen glavni projekt, građevinska dozvola (
Kontakt info
- Agencija
-
JO-DA NEKRETNINE d.o.o.
- Reg. posrednika br.
- 040220748
- Kontakt osoba
- Josip Šikić
- Telefon 1
- 091890... Prikaži broj
- Telefon 2
- 05140... Prikaži broj
- Adresa
- Kralja Tomislava 116
- Crikvenica, Hrvatska
Slične nekretnine
Svetvinčenat, okolica, građevinsko zemljište
- 140.000€ 1345 m2
ISTRA, SVETVINČENT - Prekrasan građevinski teren!
- 140.100€ 2214 m2
Svetvinčenat, okolica, odlično zemljište za izgradnju kuće
- 140.100€ 2214 m2
ISTRA, SVETVINČENAT - Građevinsko zemljište
- 135.000€ 1718 m2
Svetvinčenat, okolica, zemljište s građevinskom dozvolom
- 145.000€ 687 m2
Svetvinčenat, okolica, zemljište s građevinskom dozvolom
- 145.000€ 680 m2
Svetvinčenat, okolica, zemljište s građevinskom dozvolom
- 135.000€ 547 m2
Svetvinčenat, okolica, građevinsko zemljište sa projektom
- 150.000€ 926 m2
Svetvinčenat, okolica, zemljište na mirnoj lokaciji
- 130.000€ 1829 m2