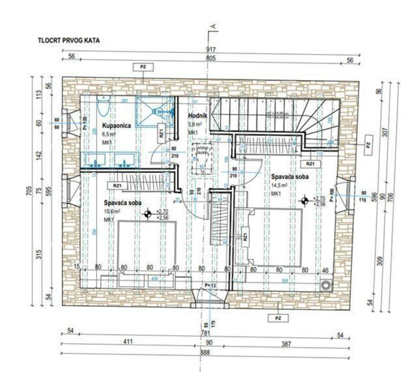
Na prodaju je samostojeća kuća smještena u mirnom naselju općine Tinjan...
Tinjan
250.000€
3 048 €/m2
Tip
Kuća
Površina
82 m2
Struktura
2
Detalji
- Tip
- Kuća
- Struktura
- 2
- Cijena
- 250.000€
- Površina
- 82 m2 (3 048 €/m2)
- Površina zemljišta
- 109
- Ukup. katova
- 2
- Udaljenost od mora
- 0m
- Parkirno mjesto
- Da
- Ažuriran
- 26.11.2025
- ID
- 95913
Opis
Na prodaju je samostojeća kuća smještena u mirnom naselju općine Tinjan, s već ishodovanom građevinskom dozvolom i prijavljenim početkom gradnje – idealna prilika za one koji žele dovršiti kuću po vlastitim željama, s već završenim ključnim građevinskim fazama.
Dosad izvedeni radovi uključuju:
Izlivena AB podna ploča
Postavljena armiranobetonska međukatna konstrukcija
Ugrađene betonske stepenice
Izrađena nova drvena krovna konstrukcija s kompletnom izolacijom i završnim pokrovom od crijepa "mediteran"
Izgrađen pregradni zid za WC u prizemlju
Prema projektu, izrađeni su novi vanjski otvori (4) s ugrađenim starim ertama na pročelju, što čuva tradicionalni istarski izgled objekta
Na parceli su već dovedeni priključci:
Voda (aktivni priključak)
Građevinski priključak struje
Ova nekretnina pruža odličnu osnovu za izgradnju obiteljske kuće ili kuće za odmor, uz već dovršene ključne građevinske radove. Lokacija nudi mir i privatnost.
Za više informacija pogledajte sljedeće informacije:
Azra
+ 385 91 611 5... Prikaži broj
+ 385 98 420 ... Prikaži broj
azra@almadominvest.com
Kontakt info
- Agencija
-
Alma Dom
- Kontakt osoba
- Alma Dom
- Telefon 1
- + 385 52 213... Prikaži broj
- Telefon 2
- + 385 52 210... Prikaži broj
- Adresa
- Istarska 10
- Pula, Hrvatska