Na prodaju je stara kuća/ruševina s izrađenim projektom rekonstrukcije, ...
Tinjan
95.000€
1 301 €/m2
Tip
Zemljiste
Površina
73 m2
Struktura
3
Detalji
- Tip
- Zemljiste
- Struktura
- 3
- Cijena
- 95.000€
- Površina
- 73 m2 (1 301 €/m2)
- Površina zemljišta
- 22
- Udaljenost od mora
- 0m
- Ažuriran
- 21.03.2026
- ID
- 104487
Opis
Na prodaju je stara kuća/ruševina s izrađenim projektom rekonstrukcije, na zemljištu površine 95 m², smještena u manjem mjestu, u blizini Sv.Lovreča i Tinjana.
Ova nekretnina predstavlja idealnu priliku za ulaganje – projekt je već gotov, a u tijeku je ishođenje građevinske dozvole.
Osnovni podaci:
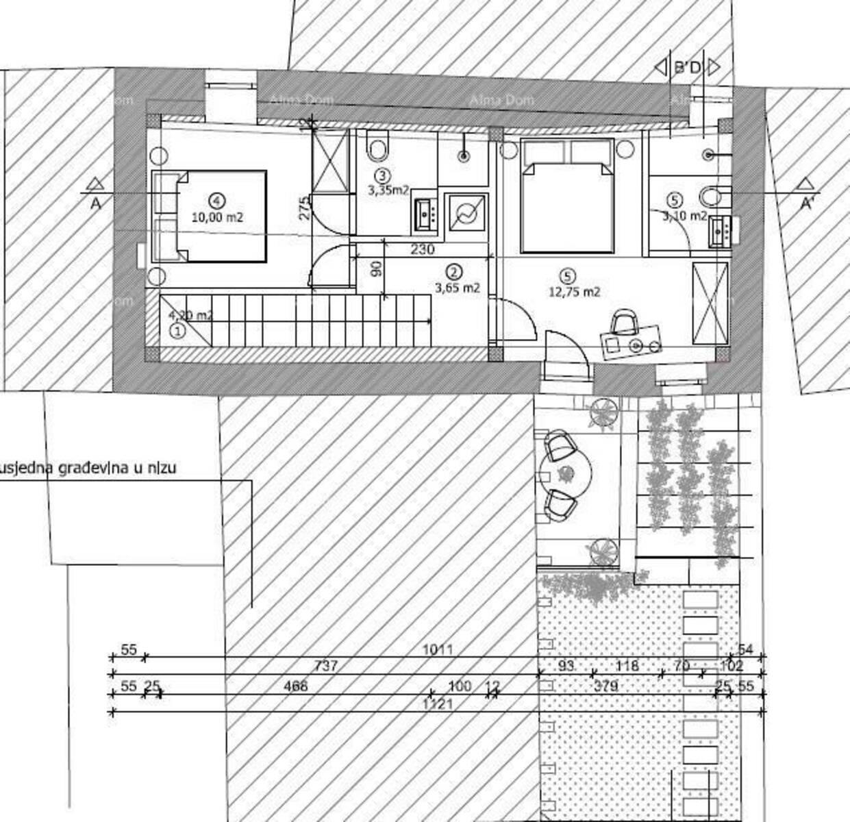
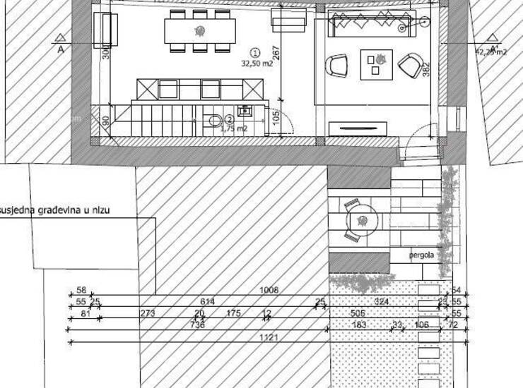
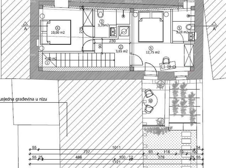
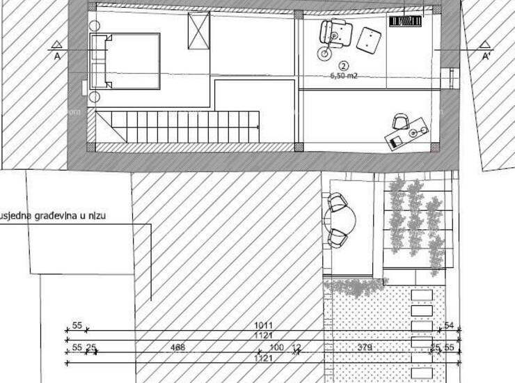
Površina postojeće ruševine: 73 m²
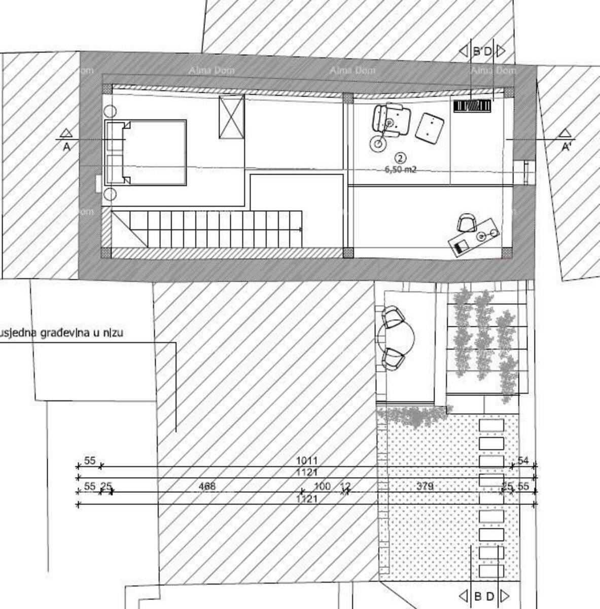
Dvorište: 22 m²
Tlocrtna projekcija postojeće građevine: 61,65 m² + vanjsko stubište 11,10 m²
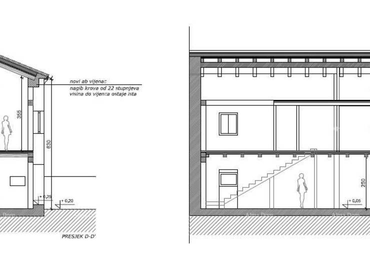
Vanjski gabariti: 11,24 x 5,26 m (stub. 7,21 x 1,81 m)
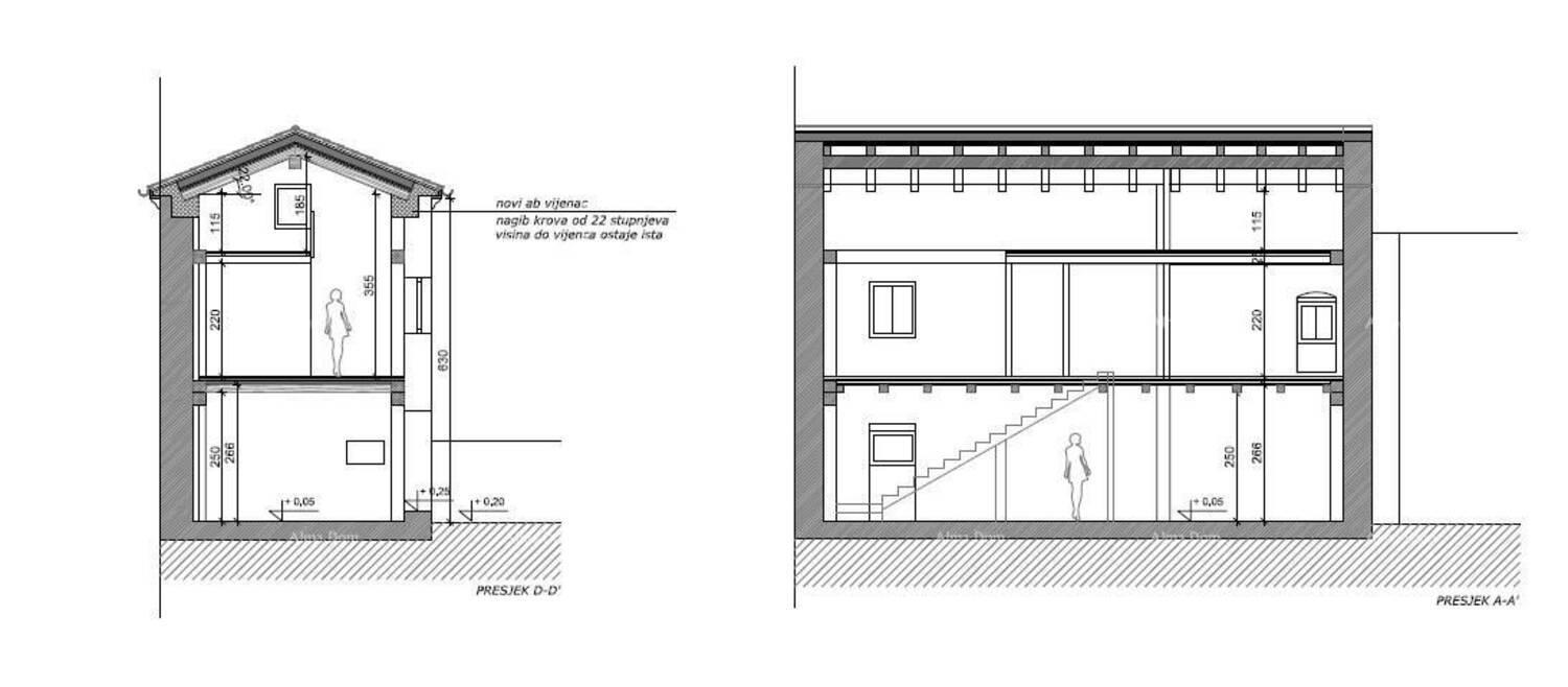
Visina do vijenca: 6,30 m
Projektom rekonstrukcije predviđena je izgradnja obiteljske kuće na tri etaže (prizemlje + kat + potkrovlje), s jednom stambenom jedinicom i pristupom iz prizemlja sa zapadne strane.
Planirano je uklanjanje dijela vanjskog stubišta radi funkcionalnijeg rasporeda i veće okućnice, uz zadržavanje autentičnog karaktera stare istarske kuće, prilagođene suvremenom načinu života.
Ova nekretnina nudi savršenu priliku za stvaranje šarmantnog doma po vlastitim željama – bilo za obiteljski život, odmor ili kao atraktivnu investiciju.
Za više informacija, molimo kontaktirajte:
Azra
+ 385 91 611 ... Prikaži broj
+ 385 98 420... Prikaži broj
azra@almadominvest.com
Kontakt info
- Agencija
-
Alma Dom
- Kontakt osoba
- Alma Dom
- Telefon 1
- + 385 52 213... Prikaži broj
- Telefon 2
- + 385 52 210... Prikaži broj
- Adresa
- Istarska 10
- Pula, Hrvatska