VARAŽDIN - Mirna lokacija i moderan dizajn – kuća u nizu s privatnim vrtom

Centar, Varaždin

341.730€

3 024 €/m2

Novo 4
Kuca, Varaždin, Centar, prodaja, 341730 €, 113 m2
Kuca, Varaždin, Centar, prodaja, 341730 €, 113 m2
Kuca, Varaždin, Centar, prodaja, 341730 €, 113 m2
Kuca, Varaždin, Centar, prodaja, 341730 €, 113 m2
Tip

Kuća

Površina

113 m2

Struktura

4

Detalji

Tip
Kuća
Struktura
4
Cijena
341.730€
Površina
113 m2 (3 024 €/m2)
Površina zemljišta
92
Grijanje
Dizalica topline
Parkirno mjesto
Da
Ažuriran
25.04.2026
ID
107097

Opis

VARAŽDIN - Mirna lokacija i moderan dizajn – kuća u nizu s privatnim vrtom

Predstavljamo vam suvremeno projektiranu novogradnju smještenu na mirnoj i ugodnoj lokaciji u Varaždinu, idealnoj za obiteljski život. U neposrednoj blizini nalaze se svi sadržaji potrebni za kvalitetan i praktičan svakodnevni život, uključujući škole, vrtiće, trgovine te ostalu važnu infrastrukturu.

Nekretnina se nalazi u sklopu modernog projekta od šest kuća u nizu, a svakoj jedinici pripada privatni vrt površine cca 92–100 m² (obračun po cijeni od 150 €/m²), vanjsko spremište te dva parkirna mjesta ispred objekta.

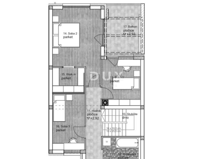
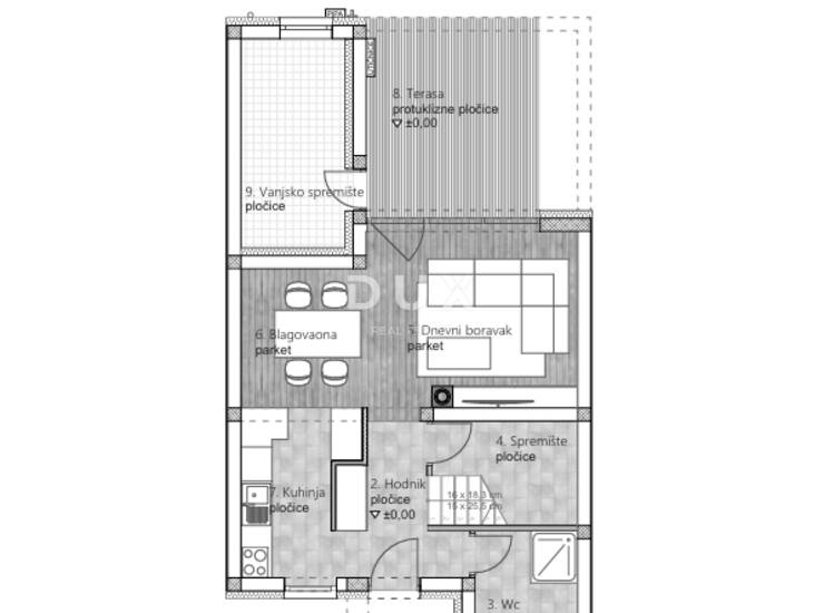
Kuća ukupne neto stambene površine 113,91 m² prostire se na dvije etaže – prizemlje i kat – te je projektirana s naglaskom na funkcionalnost, komfor i maksimalnu iskoristivost prostora. Zahvaljujući velikim staklenim površinama, interijer obiluje prirodnim svjetlom tijekom cijelog dana.

Gradnja se izvodi po sistemu „ključ u ruke“, uz korištenje kvalitetnih materijala i suvremenih tehničkih rješenja, dok je završetak radova i useljenje predviđeno krajem 2026. godine. Nekretnina zadovoljava standarde niskoenergetske gradnje, što osigurava visoku energetsku učinkovitost i niske režijske troškove.

Raspored prostorija:

PRIZEMLJE:
Natkriveni ulaz, ulazni hodnik, gostinjski WC, spremište ispod stubišta te prostrani open-space dnevni boravak povezan s kuhinjom i blagovaonicom. Iz dnevnog dijela omogućen je izlaz na natkrivenu ter

Kontakt info

Dux Nekretnine
Kontakt osoba
Dux Nekretnine
Telefon 1
+ 385 51 518... Prikaži broj
Telefon 2
+ 385 91 480 ... Prikaži broj
Adresa
Tizianova 8
Rijeka, Hrvatska

Kontakt forma

Slične nekretnine