Kuća u nizu S2 158 m2 PRODAJA Velika Gorica, Buševec, 5s, 3 kupaonice, dvije
Buševec, Velika Gorica
315.000€
1 993 €/m2
Tip
Kuća
Površina
158 m2
Struktura
5+
Detalji
- Tip
- Kuća
- Struktura
- 5+
- Cijena
- 315.000€
- Površina
- 158 m2 (1 993 €/m2)
- Ažuriran
- 29.04.2026
- ID
- 107342
Opis
PRODAJA – DVOJNA KUĆA, BUŠEVEC (VELIKA GORICA), NOVOGRADNJA
Prodaje se moderna dvojna kuća S2 u naselju Buševec, u sklopu projekta koji se sastoji od ukupno 4 objekta. Objekt C je prodan, trenutno je u izgradnji i prodaji objekt D, nakon čega slijedi izgradnja objekata B i A.
Ukupna obračunska površina: cca 158 m2. Cijena 1990 €/m2 u pretprodaji. Cijena se obračunava po konačnom etažnom elaboratu.
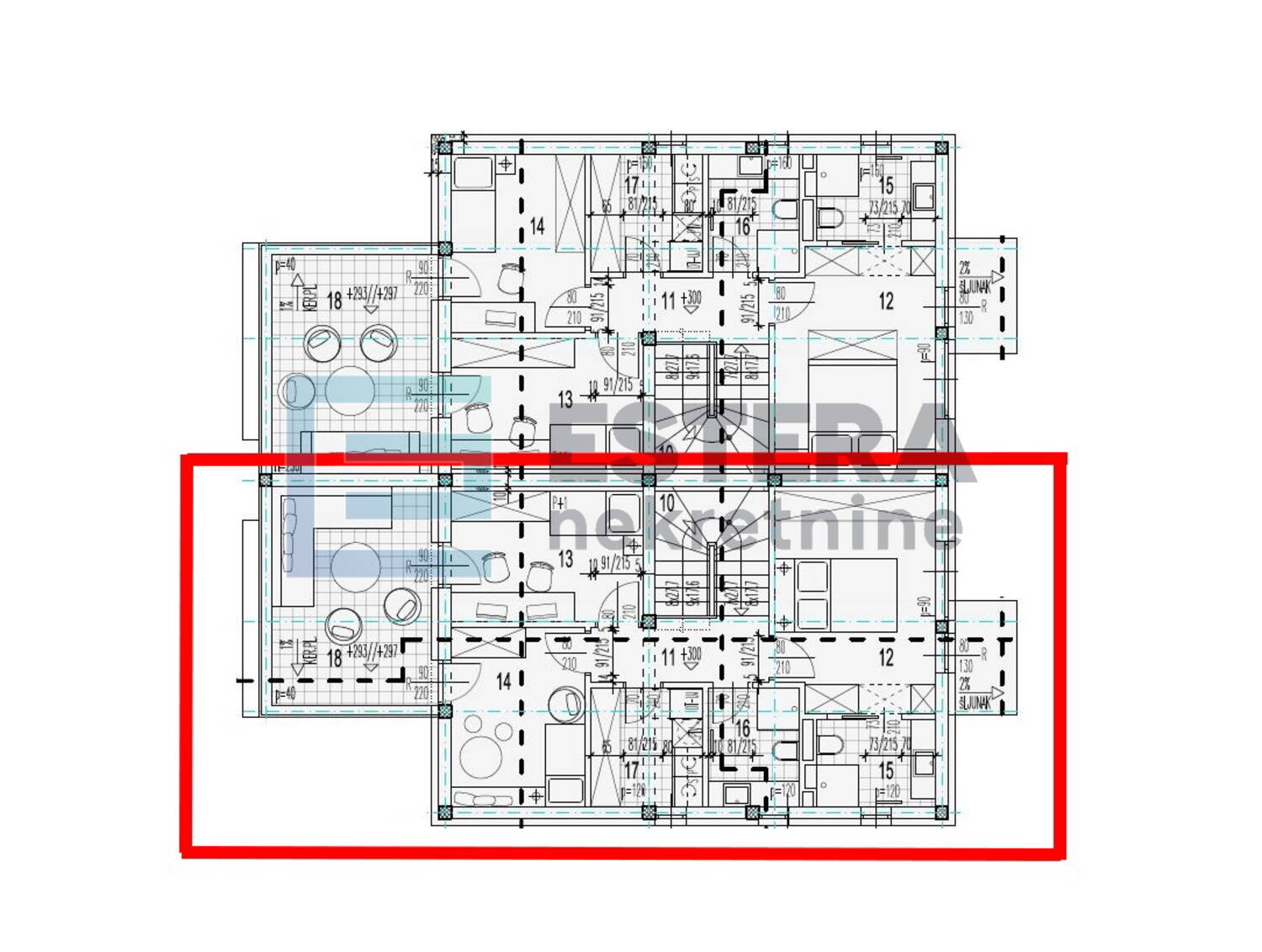
Kuća se sastoji od dvije etaže:
Prizemlje:
- dnevni boravak s kuhinjom i blagovaonicom (32,89 m2)
- soba (6,33 m2)
- kupaonica (5,09 m2)
- ulazni hodnik (7,08 m2)
- terasa (16,45 m2)
- ulaz (2,57 m2)
- vjetrobran (2,56 m2)
- spremište (5,26 m2)
- stubište (5,98 m2)
Kat:
- tri sobe (34,67 m2)
- dvije kupaonice (9,10 m2)
- terasa (14,46 m2)
- hodnik (4,55 m2)
- gospodarstvo (5,42 m2)
- stubište (5,98 m2)
OPREMA I GRADNJA:
- konstrukcija opeka + armirani beton
- ravni krov (PVC membrana + 20 cm izolacije)
- PVC stolarija s troslojnim staklima (antracit/bijela kombinacija)
- ALU protuprovalna ulazna vrata
- fasada EPS 15 cm
- podno grijanje u svim prostorijama
- zaseban termostat u svakoj prostoriji
- dizalica topline (Vaillant ili Daikin) sa spremnikom
- 2 klima uređaja (prizemlje + kat)
- video nadzor (2 kamere uključene)
- priprema za punjač električnih vozila
- vanjski priključak za vodu (šaht)
- asfaltirani pristupni put
- parkirna mjesta
- klizna ulazna vrata
Kontakt info
- Agencija
-
ESTERA NEKRETNINE
- Reg. posrednika br.
- 90/2020
- Kontakt osoba
- Gordan Mikac
- Telefon 1
- + 3851699... Prikaži broj
- Telefon 2
- + 38591444... Prikaži broj
- Adresa
- Antuna Nemčića 10
- Maksimir
- Zagreb, Hrvatska