Na prodaju je građevinsko zemljište s projektom za izgradnju moderne vile...

Bazgalji, Žminj

73.650€

0 €/m2

Tip

Zemljiste

Površina

0 m2

Detalji

Tip
Zemljiste
Cijena
73.650€
Površina
0 m2 0 €/m2)
Površina zemljišta
1100
Udaljenost od mora
28000m
Ažuriran
16.10.2025
ID
92661

Opis

Na prodaju je građevinsko zemljište s projektom za izgradnju moderne vile, smješteno u srcu Istre, između slikovitih mjesta Gračišće, Lindar i Žminj. Lokacija se nalazi na blagom brežuljku okruženom hrastovom šumom, idealna za sve koji traže mir, prirodu i privatnost.

Osnovne informacije:

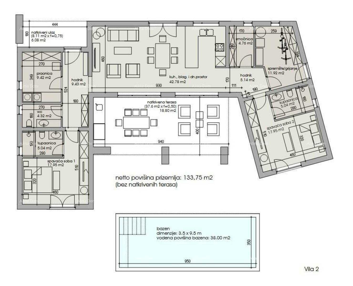
Površina zemljišta: 1.100 m²

Planirana vila: 129 m² stambenog prostora, 38 m² natkrivene terase i 8 m² natkrivenog ulaza

Katnost: prizemnica
Parkirna mjesta: 2


Projektom je predviđena moderna mediteranska vila koja spaja suvremenu arhitekturu i tradicionalne materijale poput kamena, drva i betona. Velike staklene stijene povezuju interijer s prirodnim okolišem, dok prostrane terase proširuju dnevni boravak prema bazenu i vrtu.

Prizemlje: otvoreni koncept dnevnog boravka, kuhinje i blagovaonice, tehnička prostorija s toaletom, spavaća soba s vlastitom kupaonicom te izlaz na natkrivenu terasu i bazen.

Značajke:

-Grijanje i hlađenje putem dizalice topline (podno grijanje u kupaonicama, fan-coil u ostalim prostorijama)
-Kamin u dnevnom boravku
-Bazen površine 38 m² s kamenim rubom, mozaik oblogom i sunčalištem od prirodnog kamena

Udaljenost od mora: 28 km

Projekt je u potpunosti izrađen i spreman za gradnju, što omogućuje brz početak realizacije bez dodatnih projektnih troškova. Idealno za investitore ili obitelji koje žele kreirati vlastitu oazu mira u autentičnom istarskom okruženju.


Za dodatne informacije, molimo kontaktirajte:
Azra

Kontakt info

Agencija
Alma Dom
Kontakt osoba
Alma Dom
Telefon 1
+ 385 52 213... Prikaži broj
Telefon 2
+ 385 52 210... Prikaži broj
Adresa
Istarska 10
Pula, Hrvatska

Kontakt forma

Slične nekretnine