BRTONIGLA, GRAĐEVINSKO ZEMLJIŠTE SA IDEJNIM PROJEKTOM
Brtonigla
130.000€
250 €/m2
Tip
Zemljiste
Površina
520 m2
Detalji
- Tip
- Zemljiste
- Cijena
- 130.000€
- Površina
- 520 m2 (250 €/m2)
- Ažuriran
- 23.04.2026
- ID
- 106579
Opis
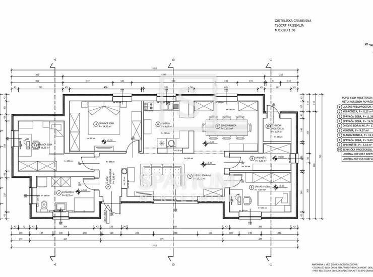
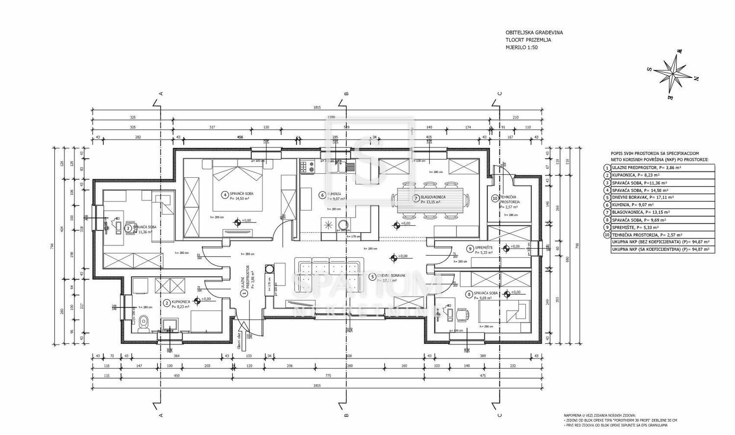
BRTONIGLA, U ponudi imamo građevinsko zemljište površine 520 m², smješteno na izuzetno mirnoj i povišenoj lokaciji.
Sukladno važećoj prostorno-planskoj dokumentaciji, zemljište se nalazi unutar građevinskog područja naselja, na površini stambene namjene (S), što omogućuje gradnju stambenog objekta u skladu s odredbama Urbanističkog plana uređenja. Za predmetno područje donesen je urbanistički plan, što dodatno pojednostavljuje proces realizacije buduće investicije.
Minimalna građevinska površina iznosi 93 m², dok maksimalna dozvoljena izgrađenost prelazi 200 m², pružajući budućem vlasniku široke mogućnosti prilikom projektiranja.
Za zemljište je u tijeku postupak ishođenja građevinske dozvole za prizemnicu neto površine 130 m², a idejnim rješenjem predviđena je i izgradnja bazena, čime se ova nekretnina idealno pozicionira kao projekt za luksuznu kuću za odmor ili obiteljsku vilu.
Parcela se nalazi na samom rubu naselja, što osigurava maksimalnu privatnost i mir, bez buduće gradnje u neposrednoj blizini zbog nedostatka slobodnog građevinskog zemljišta.
Komunalna infrastruktura (struja i voda) nalazi se neposredno uz parcelu.
Udaljenost od mora iznosi približno 3 km, što ovu lokaciju čini savršenim spojem privatnosti i blizine svih potrebnih sadržaja.
Dodatnu vrijednost predstavlja mogućnost kupnje susjedne parcele u vlasništvu Općine Brtonigla, čime se otvara potencijal za proširenje posjeda.
Prilikom kupo
Kontakt info
- Agencija
-
Spatium Nekretnine
- Kontakt osoba
- Vedran Prica
- Telefon 1
- + 385 51 272... Prikaži broj
- Telefon 2
- + 385 95 812 ... Prikaži broj
- Adresa
- Šetalište Andrije Kačića Miošića 5
- Rijeka Centar
- Rijeka, Hrvatska
Slične nekretnine
Istra, Brtonigla: Građevinsko zemljište 520 m² blizu mora
- 135.000€ 520 m2
ISTRA, BRTONIGLA - Građevinsko zemljište s idejnim projektom
- 125.000€ 536 m2
Brtonigla okolica, građevinsko zemljište na mirnoj lokaciji
- 120.000€ 420 m2
Brtonigla, okolica-prostrano poljoprivredno zemljište, 11.800 m2
- 118.000€ 11800 m2
Brtonigla, građevinsko zemljište sa projektom
- 145.000€ 702 m2
ISTRA, BRTONIGLA - Zemljište s projektom
- 145.000€ 702 m2
Brtonigla, odlično građevinsko zemljište sa projektom!
- 145.000€ 702 m2
Brtonigla - prodaja zemljišta - maslinika!
- 148.500€ 7202 m2
Brtonigla, okolica, zemljište 619 m2 u mirnom naselju
- 150.000€ 619 m2
Istra, Brtonigla, građevinsko zemljište 1.483m2
- 154.000€ 1483 m2
ISTRA, BRTONIGLA - Prostrano poljoprivredno zemljište
- 155.000€ 9862 m2