ISTRA,BRTONIGLA - Građevinsko zemljište s idejnim projektom
Brtonigla
130.000€
242 €/m2
Tip
Zemljiste
Površina
536 m2
Detalji
- Tip
- Zemljiste
- Cijena
- 130.000€
- Površina
- 536 m2 (242 €/m2)
- Udaljenost od mora
- 2500m
- Ažuriran
- 22.02.2026
- ID
- 102561
Opis
ISTRA,BRTONIGLA - Građevinsko zemljište s idejnim projektom
Na prodaju je atraktivno građevinsko zemljište površine 536 m², smješteno na iznimno lijepoj i mirnoj lokaciji u Brtonigli. Parcela se nalazi na ugodnom položaju, omeđena pristupnim putem i poljoprivrednim parcelama, što osigurava otvoren pogled, privatnost i osjećaj prostranosti – bez neposredne izgradnje uz samu česticu.
Zemljište nudi izvrsne mogućnosti gradnje. Prema važećim uvjetima moguće je graditi dvojnu kuću ili kuću s do tri stambene jedinice, što ga čini zanimljivim kako za privatnu gradnju, tako i za investicijski projekt. Dodatna pogodnost je mogućnost kupnje susjedne parcele od Općine Brtonigla, čime se otvara potencijal za proširenje projekta ili veću okućnicu.
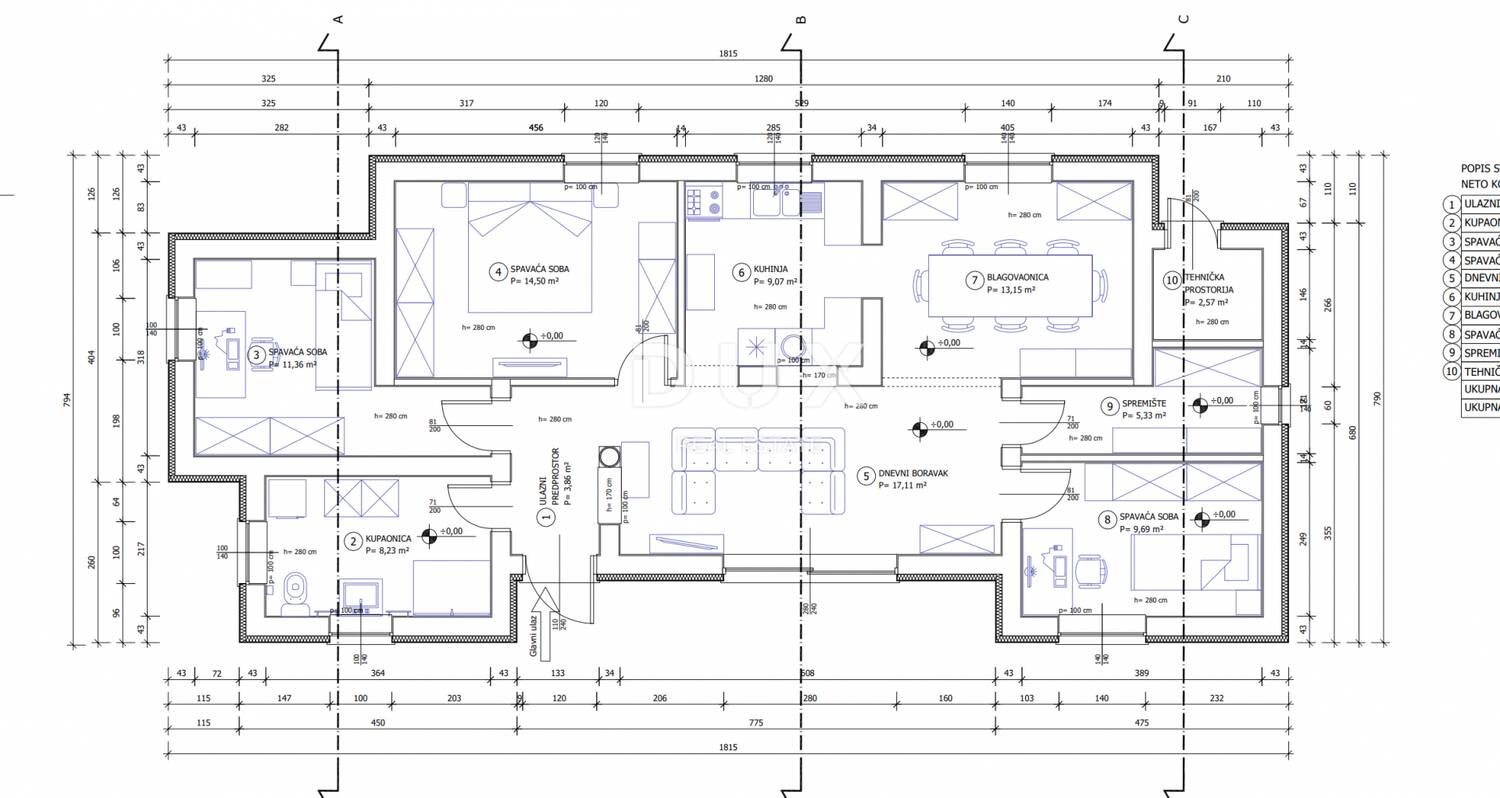
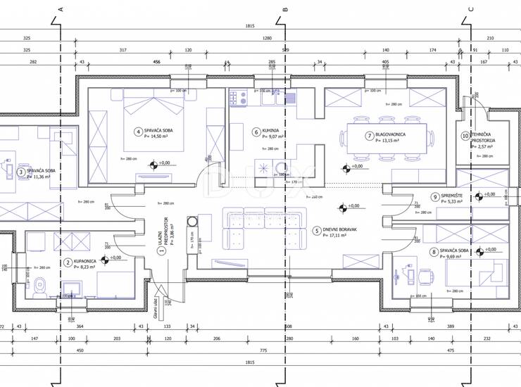
Izrađen je idejni projekt za modernu, slobodnostojeću obiteljsku kuću prizemnicu maksimalne tlocrtne površine cca 126,24 m², razvijenih gabarita približno 18,15 m x 7,90 m. Građevina je predviđena kao prizemna (jedna nadzemna etaža), orijentirana u smjeru sjever–jug, čime se osigurava optimalna osvijetljenost tijekom dana.
Planirani raspored prostorija pažljivo je osmišljen za funkcionalan i udoban život: ulazni predprostor, kupaonica, tri spavaće sobe, prostrani dnevni boravak, kuhinja s blagovaonicom, spremište i tehnička prostorija. Predviđena je mogućnost organizacije jedne ili dvije samostalne stambene jedinice, sukladno prostornim uvjetima.
Projektirana kuća zadovoljava krite
Kontakt info
- Agencija
-
DUX NEKRETNINE
- Kontakt osoba
- Dux Nekretnine
- Telefon 1
- + 385 51 518... Prikaži broj
- Telefon 2
- + 385 91 480 ... Prikaži broj
- Adresa
- Tizianova 8
- Rijeka, Hrvatska
Slične nekretnine
Brtonigla okolica, građevinsko zemljište na mirnoj lokaciji
- 120.000€ 420 m2
Brtonigla, okolica-prostrano poljoprivredno zemljište, 11.800 m2
- 118.000€ 11800 m2
ISTRA, BRTONIGLA - Zemljište s projektom
- 145.000€ 702 m2
Brtonigla, odlično građevinsko zemljište sa projektom!
- 145.000€ 702 m2
Brtonigla, građevinsko zemljište sa projektom
- 145.000€ 702 m2
Brtonigla - prodaja zemljišta - maslinika!
- 148.500€ 7202 m2
Brtonigla, okolica, zemljište 619 m2 u mirnom naselju
- 150.000€ 619 m2
ISTRA, BRTONIGLA - Prostrano poljoprivredno zemljište
- 155.000€ 9862 m2
Građevinsko zemljište na frekventnoj lokaciji,Brtonigla
- 94.000€ 517 m2
Brtonigla okolica, građevinsko zemljište sa građevinskom dozvolom
- 173.000€ 1236 m2
ISTRA, BRTONIGLA - Kompleks zemljišta gospodarske namjene
- 180.000€ 4597 m2