ISTRA, CEROVLJE - Kamena starina sa započetom adaptacijom
Cerovlje
250.000€
1 250 €/m2
Tip
Kuća
Površina
200 m2
Struktura
5+
Detalji
- Tip
- Kuća
- Struktura
- 5+
- Cijena
- 250.000€
- Površina
- 200 m2 (1 250 €/m2)
- Površina zemljišta
- 749
- Udaljenost od mora
- 22000m
- Ažuriran
- 09.03.2026
- ID
- 84597
Opis
ISTRA, CEROVLJE - Kamena starina sa započetom adaptacijom
Cerovlje je središnje naselje prostrane istoimene općine koja se proteže brežuljkastim krajolikom sjeveroistočno od Pazina, a u svom sastavu ima brojne zaseoke i nekoliko većih ruralnih naselja. Nalazi se na 278 metara nadmorske visine i prostire se na površini od 4,99 km². U ovoj općini nalazi se najduža spilja u Istri, maslinik na najvišoj nadmorskoj visini i dva dvorca, njome protječe Pazinčica, a uz dolinu rječice smjestila se pruga, pa cesta i na kraju autoput.
U tom krajoliku bajkovitih vizura, na prodaju je kamena starina sa započetom adaptacijom.
Uronjena je u mir, tišinu i čari prirode na rubu pitoresknog kamenog sela koje odiše spokojem i tradicijom s kojeg se pruža panoramski pogled na pitoreskne baršunaste brežuljke.
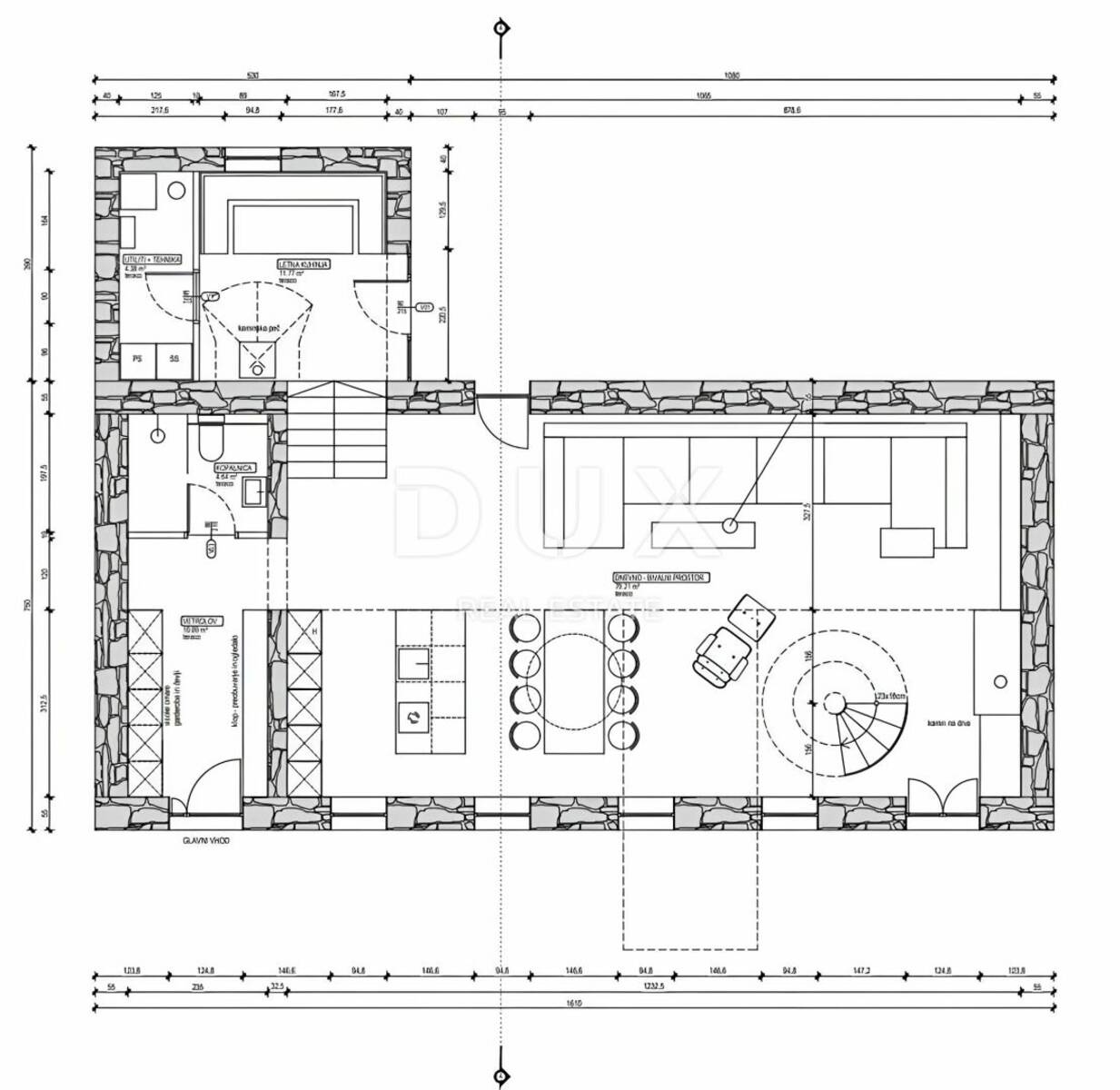
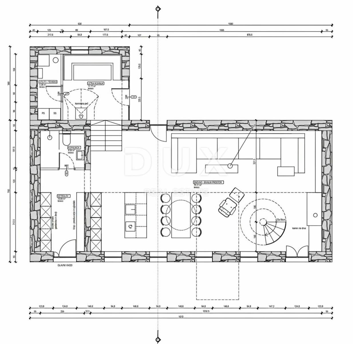
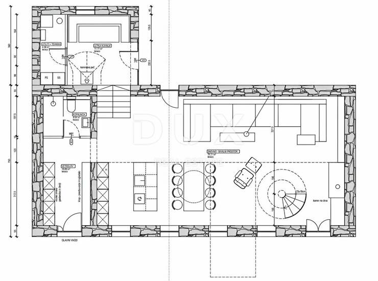
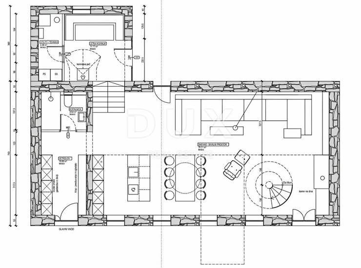
Impresivna starina iz austrougarskog doba proteže se kroz dvije etaže i zahtjeva rekonstrukciju a obnovom bi se mogla dobiti reprezentativna nekretnina s velikim potencijalom pa je stoga izrađen projekt te je ishodovana građevinska dozvola za rekonstrukciju.
Projekt je zamišljen kao savršen spoj tradicionalnog i modernog koji se oblikovno i koloristički uklopa u naselje i krajolik.
Adaptacija je započela; postavljeno je krovište i betonske međukatne konstrukcije te se navedena cijena odnosi na navedeno stanje.
Kombinacija bujnog zelenila i arhitekture čini ovu nekretninu idealnom za ljubitelje kamenih starina i prirode s velikim potencijalom za mira
Kontakt info
- Agencija
-
DUX NEKRETNINE
- Kontakt osoba
- Dux Nekretnine
- Telefon 1
- + 385 51 518... Prikaži broj
- Telefon 2
- + 385 91 480 ... Prikaži broj
- Adresa
- Tizianova 8
- Rijeka, Hrvatska
Slične nekretnine
Veliko imanje u okolici Pazina
- 250.000€ 142 m2
ISTRA, CEROVLJE - KUĆA RUŠEVINA + 42.410 m2 ZEMLJIŠTA!!!
- 265.000€ 40 m2
Istra, Cerovlje - okolica, kamena kuća + gospodarski objekt
- 280.000€ 307 m2
Cerovlje, okolica, dvije kamene kuće sa prekrasnim pogledom
- 295.000€ 160 m2
Cerovlje, kamena kuća sa panoramskim pogledom
- 150.000€ 196 m2
ISTRA, CEROVLJE - Kamena kuća s panoramskim pogledom
- 150.000€ 196 m2
ISTRA, CEROVLJE - Kamena kuća s velikom okućnicom
- 350.000€ 115 m2
ISTRA, CEROVLJE - Samostojeća kamena zgrada
- 135.000€ 160 m2
Istra, Cerovlje - okolica, šarmantna kamena kuća
- 103.000€ 120 m2
Autohtona Kućica sa lijepim pogledom u središnjoj Istri
- 100.000€ 68 m2
ISTRA, CEROVLJE - Istarska kamena kuća s predivnim pogledom
- 100.000€ 70 m2