OTOK KRK, TRIBULJE - građevinsko zemljište s projektom
Tribulje, Dobrinj
358.000€
361 €/m2
Tip
Zemljiste
Površina
989 m2
Struktura
11
Detalji
- Tip
- Zemljiste
- Struktura
- 11
- Cijena
- 358.000€
- Površina
- 989 m2 (361 €/m2)
- Udaljenost od mora
- 3000m
- Ažuriran
- 08.12.2025
- ID
- 53677
Opis
OTOK KRK, TRIBULJE - građevinsko zemljište s projektom za dvojnu obiteljsku kuću s bazenom.
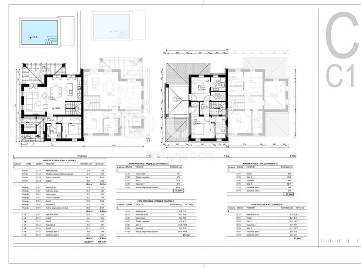
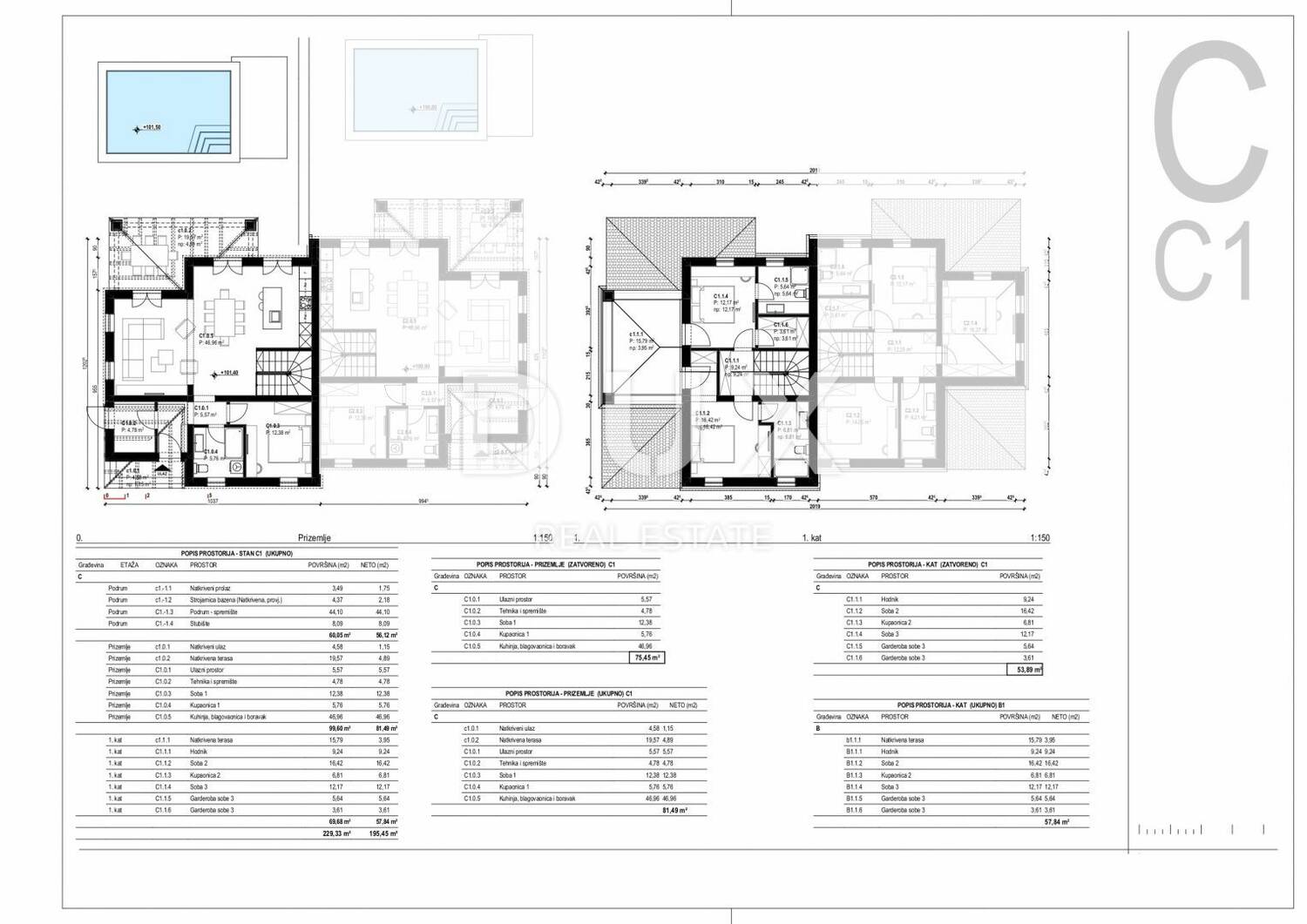
Prodaje se građevinsko zemljište površine 989,80m2. Projekt za izgradnju dvojne kuće ”C” svaka sa svojim vlastitim bazenom, okućnicom i parkiralištem za dva automobila po svakoj, koja je razvedena na prizemlje i kat.
U prizemlju kuće ”C1” nalazimo open space dnevni dio s kuhinjom i blagovaonicom s izlazom na natkrivenu terasu, okućnicu i bazen te jednu spavaću sobu i kupatilo.
Na katu kuće imamo još dvijei spavaće sobe svaka sa svojim vlastitim kupatilom i garderobom gdje obje sobe imaju izlaz na natkrivenu terasu.. Sveukupna stambena kvadratura svake kuće iznosi 231,18m2.
Svakoj kući pripadaju dva parkirna mjesta u dvorištu.
Projekt se prodaje s građevinskom dozvolom, mogućnost dogovora s prodavateljem o izgradnji i prodaji u fazi ključ u ruke.
Poštovani klijenti, agencijska provizija naplaćuje se u skladu s Općim uvjetima poslovanja.
www.dux-nekretnine.hr/opci-uvjeti-poslovanja
ID KOD AGENCIJE: 30173
Darko Miculinić
Vanjski suradnik
Mob: + 385 91 899 ... Prikaži broj
Tel: + 385 91 480 ... Prikaži broj
E-mail: darko@dux-nekretnine.hr
www.dux-nekretnine.hr
Kontakt info
- Agencija
-
DUX NEKRETNINE
- Kontakt osoba
- Dux Nekretnine
- Telefon 1
- + 385 51 518... Prikaži broj
- Telefon 2
- + 385 91 480 ... Prikaži broj
- Adresa
- Tizianova 8
- Rijeka, Hrvatska
Slične nekretnine
OTOK KRK, TRIBULJE - građevinsko zemljište s projektom
- 338.000€ 870 m2
Otok Krk, Tribulje, zemljište sa projektom, objekti C1 i C2
- 298.000€ 989 m2
Otok Krk, Tribulje, zemljište sa projektom, objekti B1 i B2
- 278.000€ 870 m2
OTOK KRK, TRIBULJE - građevinsko zemljište s projektom
- 269.000€ 863 m2
OTOK KRK, TRIBULJE - građevinsko zemljište s projektom
- 239.000€ 696 m2
OTOK KRK, TRIBULJE - građevinsko zemljište s projektom
- 199.000€ 561 m2
Otok Krk, Tribulje, zemljište sa projektom, objekt E
- 199.000€ 863 m2
Otok Krk, Tribulje, zemljište sa projektom, objekt D
- 169.000€ 696 m2
Otok Krk, Tribulje, zemljište sa projektom, objekt A
- 159.000€ 561 m2
TRIBULJE, OTOK KRK, SAMO KOD NAS ZEMLJIŠTE OD 1046 M2
- 130.000€ 1046 m2
Otok Krk, zemljište sa projektom za resort sa villama
- 1.103.000€ 3982 m2