Novogradnja Malinska - moderna dvojna kuća
Malinska, Malinska-Dubašnica
530.000€
3 397 €/m2
Tip
Kuća
Površina
156 m2
Struktura
5+
Detalji
- Tip
- Kuća
- Struktura
- 5+
- Cijena
- 530.000€
- Površina
- 156 m2 (3 397 €/m2)
- Grijanje
- Sustav grijanja, klimatizacije i ventilacije
- Terasa
- Da
- Udaljenost od mora
- 650m
- Garaža
- Da
- Ažuriran
- 16.10.2025
- ID
- 53331
Opis
Prodaje se moderna dvojna kuća u gradnji u Malinskoj na otoku Krku.
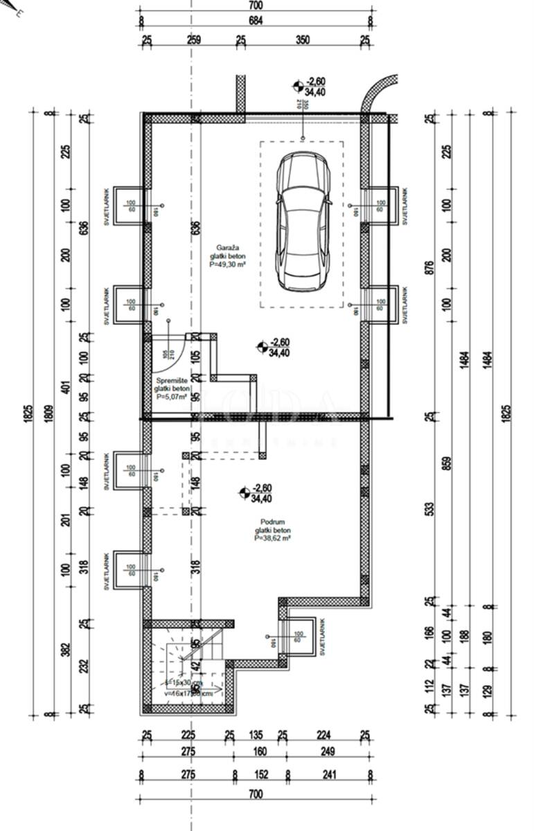
Kuća stambene površine cca.156 m², proteže se na podrum, prizemlje i kat. U podrumu se nalazi garaža i spremište. U prizemlju je hodnik, ostava/vešeraj, toalet, kuhinja s blagovaonicom i dnevnim boravkom i terasa s uređenom okućnicom. Stubište vodi na kat gdje se nalaze tri spavaće sobe, dvije imaju vlastitu kupaonicu. Na raspolaganju je jedno vanjsko parkirno mjesto i garaža.
Pri gradnji se koriste kvalitetni materijali i oprema, kao što su keramičke pločice visoke kvalitete u kupaonicama i dnevnom boravku, visokokvalitetni laminat u spavaćim sobama, PVC stolarija s električnim podizačima roleta, te protuprovalna vrata. Hlađenje i grijanje putem inverter multisplit sustava. Dnevni boravak i sobe imat će unutarnju klima jedinicu. Električno podno grijanje će se ugraditi u dnevnom boravku i u kupaonicama. Ako se nekretnina kupi u fazi gradnje postoji mogućnost odabira svih podnih obloga po želji (parket, laminat, keramika) po dogovoru. Useljenje je planirano za lipanj 2025.godine.
Urbana lokacija, od mora i centra udaljena oko 650 m, u blizini svih sadržaja, restorana, škole, dječjeg igrališta i stanice javnog prijevoza. Nekretnina idealna za odmor, ali i za život tijekom cijele godine.
ID KOD AGENCIJE: EI-5664
Josip Šikić, mag.oec
Agent s licencom
Mob: + 385 91 890 ... Prikaži broj
Tel: + 385 51 403... Prikaži broj
E-mail: info@joda-nekretnine.hr
www.joda-nekretnine.hr
Kontakt info
- Agencija
-
JO-DA NEKRETNINE d.o.o.
- Reg. posrednika br.
- 040220748
- Kontakt osoba
- Josip Šikić
- Telefon 1
- 091890... Prikaži broj
- Telefon 2
- 05140... Prikaži broj
- Adresa
- Kralja Tomislava 116
- Crikvenica, Hrvatska
Slične nekretnine
Malinska - prodaja kuće u roh-bau s 4 stana
- 535.000€ 315 m2
MALINSKA, KUĆA SA ČETIRI JEDINICE U ROH - BAU FAZI
- 535.000€ 315 m2
Autohtona kamena kuća s bazenom - otok Krk
- 525.000€ 100 m2
OTOK KRK, MALINSKA - Dvojna kuća blizu centra
- 520.000€ 150 m2
Malinska, nova kuća s modernim projektom!
- 520.000€ 111 m2
Malinska, moderna kuća vrhunske kvalitete!
- 520.000€ 109 m2
MALINSKA, KUĆA SA 4 STANA, 520.000 EUR
- 520.000€ 100 m2
Samostojeća kuća s tri stana, pogled more - Malinska
- 549.000€ 243 m2
Novogradnja s bazenom i pogledom na more
- 550.000€ 119 m2