ISTRA, MARČANA - Kuća moderne arhitekture s bazenom
Marčana
550.000€
2 849 €/m2
Tip
Kuća
Površina
193 m2
Struktura
5+
Detalji
- Tip
- Kuća
- Struktura
- 5+
- Cijena
- 550.000€
- Površina
- 193 m2 (2 849 €/m2)
- Površina zemljišta
- 553
- Terasa
- Da
- Udaljenost od mora
- 2000m
- Ažuriran
- 03.12.2025
- ID
- 79264
Opis
ISTRA, MARČANA - Kuća moderne arhitekture s bazenom
Marčana je općina na jugoistoku istarskog poluotoka. Nalazi se oko 12 km sjeveroistočno od Pule, najvećeg grada u Istri. Poznata je kao destinacija mora, odmora, vina i maslinova ulja. To je kulturno bogata općina s kristalno čistim morem i gotovo nestvarnim krajolikom koji se sastoji od raskošnih zaljeva i zelenih poluotoka. Njenih 36 kilometara obale najmanje je urbanizirana obalna zona u Istri. Marčana i njena plodna zelena polja, sa blagim brežuljcima koji se spuštaju do skrivenih kamenitih uvala i samozatajnih sela i gradića neotkriveno su blago istočne obale Istre.
U tom krajoliku idiličnih i nježnih vizura, na prodaju je kuća moderne arhitekture s bazenom.
Mikrolokacija nudi autentičan doživljaj malog istarskog mjesta, intimnost i rasterećenost od svakog užurbanog napora i buke a ujedno dovoljno blizu mora i dinamičnih gradova Istre s nizom sadržaja.
Osim lokacije koja pruža potpuni komfor, nekretninu odlikuje i kvaliteta gradnje što jamči dugoročno zadovoljstvo i kvalitetu stanovanja.
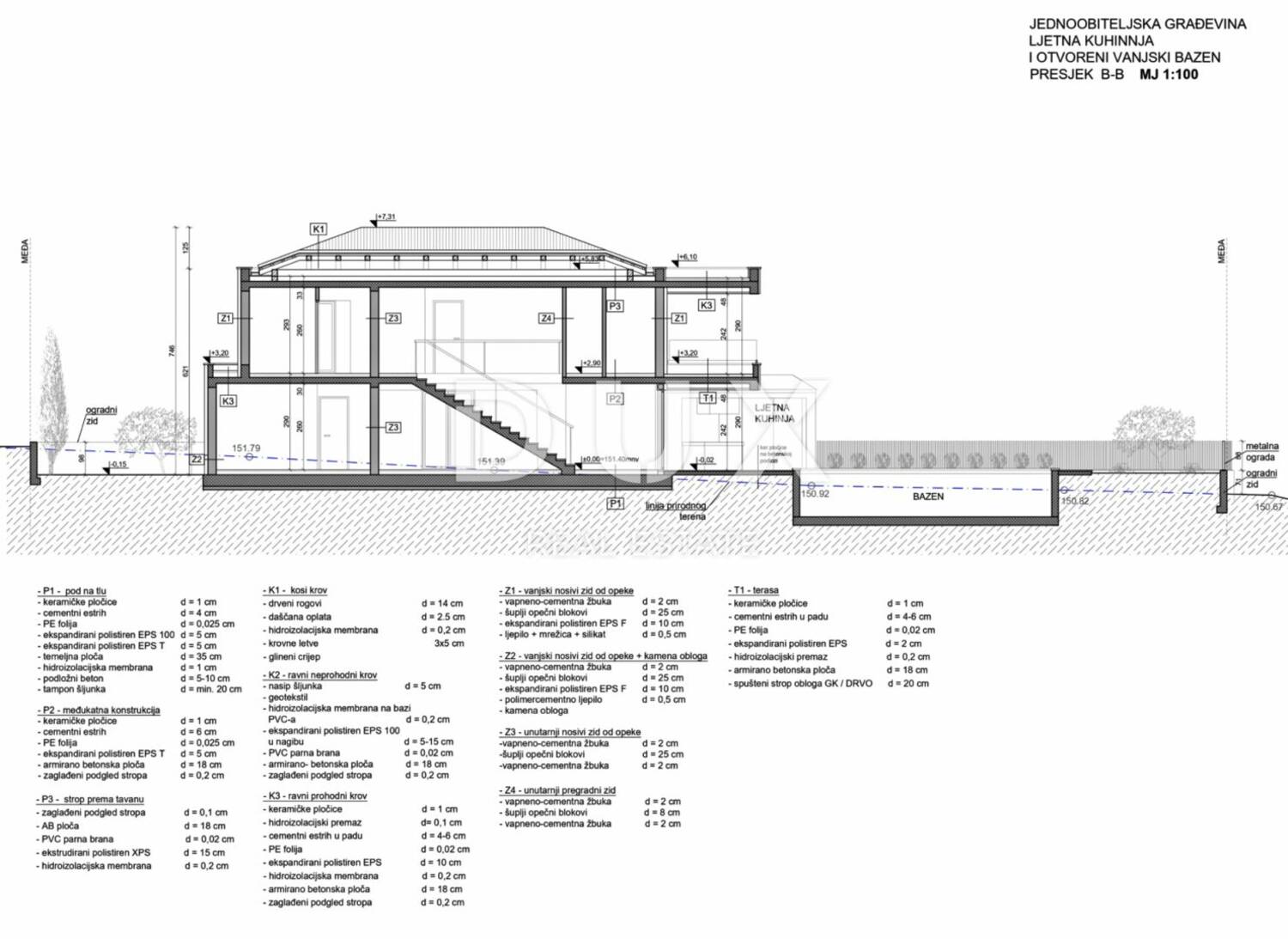
Kuća svojom suvremenom arhitekturom ne remeti okoliš već stvara sinergiju prirodnog okruženja i modernog dizajna a koncipirana je kao jedna stambena jedinica koja se proteže kroz dvije etaže.
Prizemlje se sastoji od prostora otvorenog koncepta koji ujedinjuje kuhinju, blagovaonicu i dnevni boravak s izlazom na natkrivenu terasu, spavaće sobe s vlastitom kupaonicom, praonice rublja i tehničk
Kontakt info
- Agencija
-
DUX NEKRETNINE
- Kontakt osoba
- Dux Nekretnine
- Telefon 1
- + 385 51 518... Prikaži broj
- Telefon 2
- + 385 91 480 ... Prikaži broj
- Adresa
- Tizianova 8
- Rijeka, Hrvatska
Slične nekretnine
Moderna prizemnica s bazenom, okolica Marčane
- 550.000€ 156 m2
Istra, Marčana, šarmantna kamena vila s bazenom
- 550.000€ 185 m2
ISTRA, MARČANA - Kuća s bazenom
- 545.000€ 156 m2
ISTRA,MARČANA - Moderna novogradnja s bazenom
- 545.000€ 215 m2
Kuća u izgradnji s bazenom i pogledom na more, okolica Marčane
- 540.000€ 206 m2
ISTRA, MARČANA - Villa s pogledom na more
- 540.000€ 206 m2
Prekrasna Villa s bazenom i pogledom na more, Istra, Marčana
- 540.000€ 206 m2
Prostrana kuća s bazenom, okolica Marčane
- 570.000€ 299 m2
Marčana, okolica, kuća za odmor s bazenom
- 570.000€ 125 m2
Marčana - okolica Pule, moderna villa s bazenom, 8km do mora!
- 580.000€ 235 m2
ISTRA, MARČANA Vila za odmor s bazenom - 2 km od plaže
- 520.000€ 141 m2
Istra, okolica Marčane, prekrasna kuća s bazenom
- 520.000€ 175 m2