OPATIJA, MATULJI - Dvojna kuća s krovnom terasom – privatnost, funkcionalnos
Kučeli, Matulji
750.000€
4 491 €/m2
Tip
Kuća
Površina
167 m2
Struktura
5+
Detalji
- Tip
- Kuća
- Struktura
- 5+
- Cijena
- 750.000€
- Površina
- 167 m2 (4 491 €/m2)
- Kat
- Prizemlje
- Grijanje
- Podno grijanje/Dizalica topline
- Terasa
- Da
- Parkirno mjesto
- Da
- Ažuriran
- 30.04.2026
- ID
- 107401
Opis
OPATIJA, MATULJI - Dvojna kuća s krovnom terasom – privatnost, funkcionalnost i panoramski pogled
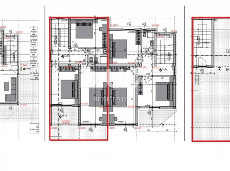
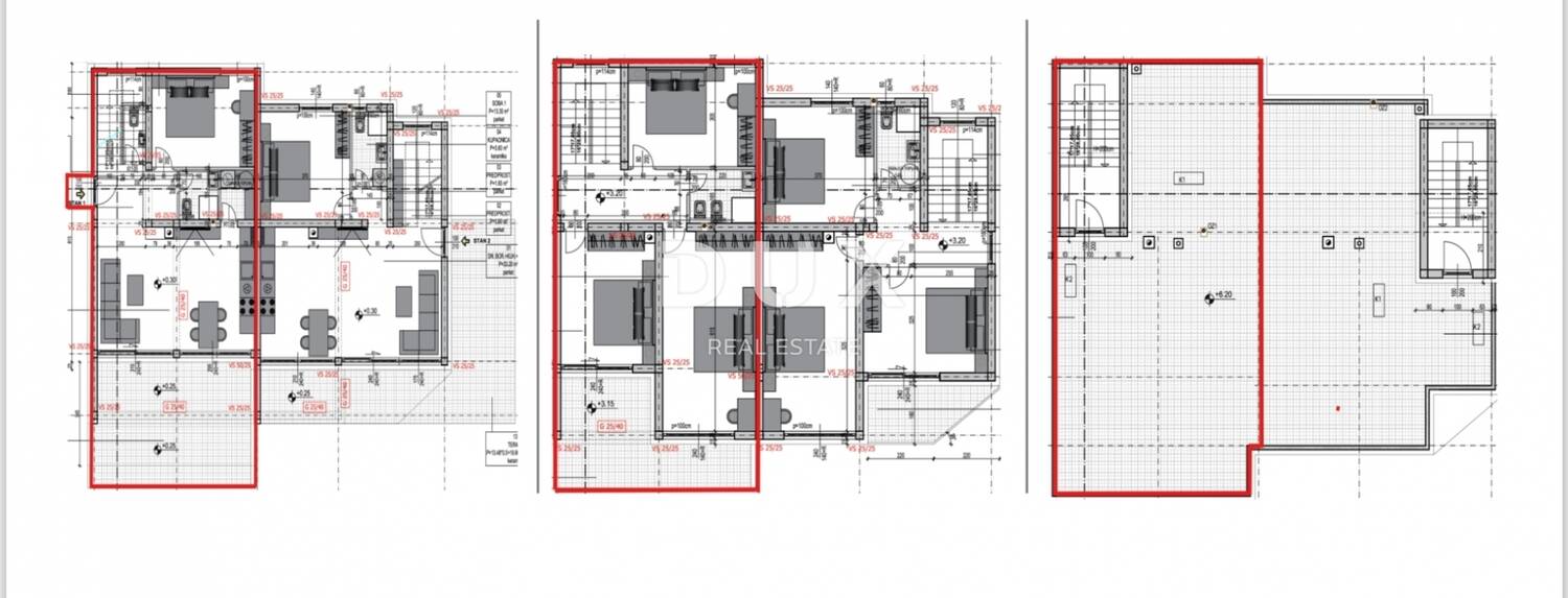
Ova moderna dvojna kuća nudi savršen spoj suvremene arhitekture, funkcionalnog rasporeda i dodatnog vanjskog komfora koji podiže kvalitetu stanovanja na višu razinu. Svaka stambena jedinica organizirana je kroz tri etaže, s jasno odvojenim dnevnim i privatnim zonama, što osigurava maksimalnu udobnost i privatnost u svakodnevnom životu.
Prizemlje je koncipirano kao prozračan open space dnevni prostor gdje se kuhinja, blagovaonica i dnevni boravak stapaju u jednu skladnu cjelinu, prirodno povezanu s vanjskim prostorom. Na istoj etaži nalazi se i jedna spavaća soba te kupaonica, što dodatno povećava funkcionalnost prostora i fleksibilnost korištenja.
Na drugoj etaži smještene su tri komforne spavaće sobe i dodatna kupaonica, pažljivo raspoređene kako bi se osigurala privatnost i ugodna svakodnevica za sve članove obitelji.
Treća etaža predstavlja ključnu vrijednost ove nekretnine – prostranu krovnu terasu s otvorenim pogledom na more, koja u praksi funkcionira kao produžetak životnog prostora i idealna zona za opuštanje, druženja i uživanje u mediteranskom ambijentu. Dodatni balkoni i vlastiti vanjski prostor daju osjećaj širine i života u pravoj kući.
Nekretnina je opremljena dizalicom topline, podnim grijanjem, klimatizacijom, video portafonom, protuprovalnim vratima te osiguranim parkirnim mjestima, što jamči visoku razinu sigu
Kontakt info
- Agencija
-
DUX NEKRETNINE
- Kontakt osoba
- Dux Nekretnine
- Telefon 1
- + 385 51 518... Prikaži broj
- Telefon 2
- + 385 91 480 ... Prikaži broj
- Adresa
- Tizianova 8
- Rijeka, Hrvatska
Slične nekretnine
MATULJI, VILA S BAZENOM I UREĐENOM OKUĆNICOM
- 850.500€ 403 m2