MATULJI, JUŠIĆI – građevinsko zemljište za 13 ekskluzivnih stanova, vrhun
Jušići, Matulji
1.100.000€
925 €/m2
Tip
Zemljiste
Površina
1188 m2
Detalji
- Tip
- Zemljiste
- Cijena
- 1.100.000€
- Površina
- 1188 m2 (925 €/m2)
- Udaljenost od mora
- 3000m
- Ažuriran
- 30.03.2026
- ID
- 104909
Opis
MATULJI, JUŠIĆI – građevinsko zemljište za 13 ekskluzivnih stanova, vrhunska lokacija!
U DUXu izdavajmo vrhunsku priliku - građevinsko zemljište koje omogućuje izgradnju tri stambene zgrade (A, B i C) s ukupno 13 ekskluzivnih stanova, što ovu nekretninu čini izuzetnom prilikom za investitore.
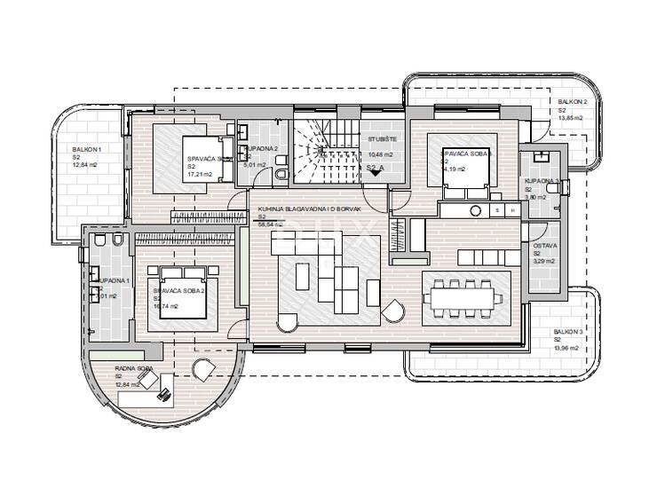
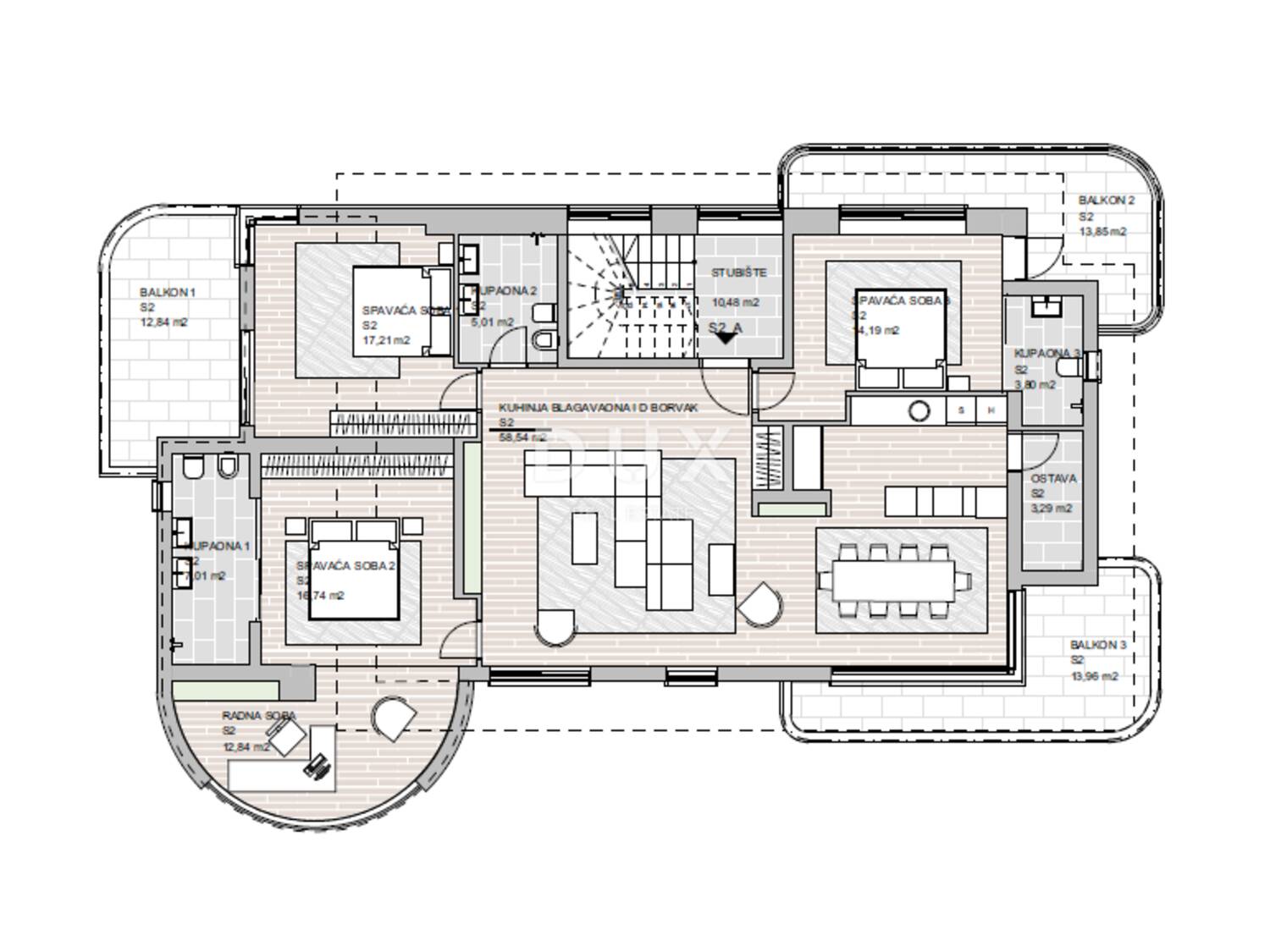
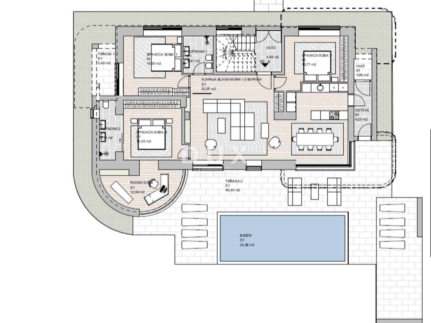
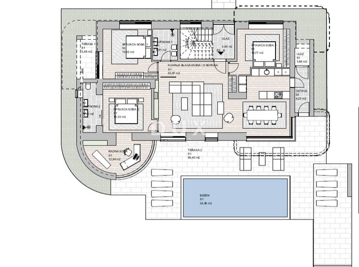
Zgrada A ima površinu 602,96 m² te se sastoji od tri stana: stan S1 u prizemlju zgrade ukupne površine 243,16 m2, stan S2 na prvom katu ukupne površine 179,28 m2 te stan S3 na drugom katu zgrade ukupne površine 180,52 m2.
Zgrada B ima površinu 768,6 m² te se sastoji od pet stanova i krovne terase. U suterenu se nalaze stanovi S1 i S2, sa ukupnim površinama od 54, 85m2 te 54, 82 m2. U prizemlju zgrade nalaze se dva stana sa ukupnim površinama od 123, 54 m2 te 123,74 m2. Isto tako, na prvom katu su smještena dva stana ukupnih površina 84,49 m2 te 90,81 m2. Na zadnjoj etaži zgrade, točnije na 2. katu nalazi se stan S3 ukupne površine 178,63 m2. Naime, zgrada B se odlikuje i krovim bazenom te terasom ukupne površine 57,72 m2.
Zgrada C ima površinu 820,69 m² te se sastoji od pet stanova i krovne terase. U suterenu se nalaze stanovi S1 i S2, sa ukupnim površinama od 54, 85m2 te 54, 82 m2. U prizemlju zgrade nalaze se dva stana sa ukupnim površinama od 123, 97 m2 te 121,93 m2. Isto tako, na prvom katu su smještena dva stana ukupnih površina 84,46 m2 te 90,81 m2. Na zadnjoj etaži zgrade, točnije na 2. katu nalazi se stan S3 ukupne površine 189
Kontakt info
- Agencija
-
DUX NEKRETNINE
- Kontakt osoba
- Dux Nekretnine
- Telefon 1
- + 385 51 518... Prikaži broj
- Telefon 2
- + 385 91 480 ... Prikaži broj
- Adresa
- Tizianova 8
- Rijeka, Hrvatska
Slične nekretnine
MATULJI, JUŠIĆI - Građevinsko zemljište za investiciju za 3 stambene zgrade
- 1.650.000€ 1188 m2
Matulji, Jušići, građevinsko zemljište od 4.122m2
- 342.000€ 4122 m2
Građevinski teren na području Matulja
- 340.000€ 4122 m2
Jušići - prodaja građevinskog zemljišta
- 332.000€ 4122 m2
JUŠIĆI, GRAĐEVINSKI TEREN NA MIRNOJ LOKACIJI
- 300.000€ 4122 m2
Građevinski teren, Matulji, Jušići
- 299.000€ 4100 m2