Građevinsko zemljište s projektnom dokumentacijom
Njivice, Omišalj
295.000€
519 €/m2
Tip
Zemljiste
Površina
568 m2
Detalji
- Tip
- Zemljiste
- Cijena
- 295.000€
- Površina
- 568 m2 (519 €/m2)
- Udaljenost od mora
- 500m
- Ažuriran
- 30.01.2026
- ID
- 100657
Opis
Građevinsko zemljište u Njivicama, otok Krk.
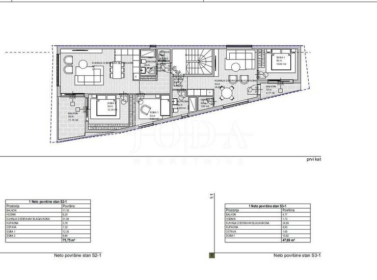
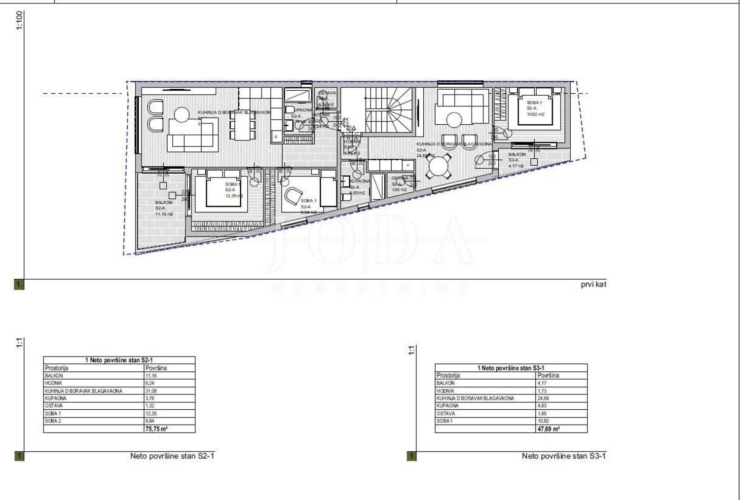
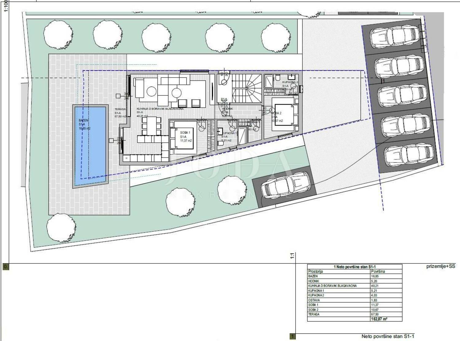
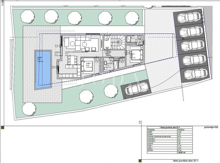
Zemljište se prodaje s kompletnom projektnom dokumentacijom za izgradnju stambene građevine sa četiri stambene jedinice, katnosti prizemlje i dva kata, sa krovnom terasom. Predana je dokumentacija za građevinsku dozvolu. Infrastruktura (struja, voda, internet) - na 20 m od terena.
Lijepa lokacija, udaljena oko 500 metara plaže. S gornjih katova se očekuje pogled na more.
Za sve informacije i dogovor razgledavanja dostupni smo na broju 0994440... Prikaži broj ili u poslovnici Malinska na adresi Dubašljanska 111.
ID KOD AGENCIJE: EI-7369
Josip Šikić, mag.oec
Agent s licencom
Mob: + 385 91 890 ... Prikaži broj
Tel: + 385 51 403... Prikaži broj
E-mail: info@joda-nekretnine.hr
www.joda-nekretnine.hr
Kontakt info
- Agencija
-
JO-DA NEKRETNINE d.o.o.
- Reg. posrednika br.
- 040220748
- Kontakt osoba
- Josip Šikić
- Telefon 1
- 091890... Prikaži broj
- Telefon 2
- 05140... Prikaži broj
- Adresa
- Kralja Tomislava 116
- Crikvenica, Hrvatska
Slične nekretnine
Njivice, građevinsko zemljište s glavnim projektom!
- 295.000€ 519 m2
Njivice, prodaja građevinskog zemljišta pravilnog obilka!
- 295.000€ 546 m2
Njivice, prodaja građevinskog zemljišta s građevinskom dozvolom!
- 295.000€ 584 m2
Njivice, prodaja građevinskog zemljišta, površine 568m2!
- 295.000€ 568 m2
Njivice, prodaja građevinskog zemljišta, površine 672!
- 360.000€ 672 m2
OMIŠALJ - građevinsko zemljište 768 m2, odlična lokacija
- 135.000€ 768 m2
Otok Krk, Njivice, poljoprivredno zemljište, 670m2
- 42.000€ 670 m2
Njivice
- 1.200.000€ 3282 m2
Njivice, prodaja građevinskog zemljišta, idealna prilika za investitore!
- 1.600.000€ 3946 m2