Novi projekt – Pula! Novi stambeni projekt u mirnom dijelu Pule. Zgrada ...
Pula
205.000€
3 727 €/m2
Tip
Stan
Površina
55 m2
Struktura
2
Detalji
- Tip
- Stan
- Struktura
- 2
- Cijena
- 205.000€
- Površina
- 55 m2 (3 727 €/m2)
- Površina zemljišta
- 0
- Kat
- 1
- Ukup. katova
- 3
- Udaljenost od mora
- 3000m
- Parkirno mjesto
- Da
- Ažuriran
- 30.03.2026
- ID
- 94099
Opis
Novi projekt – Pula!
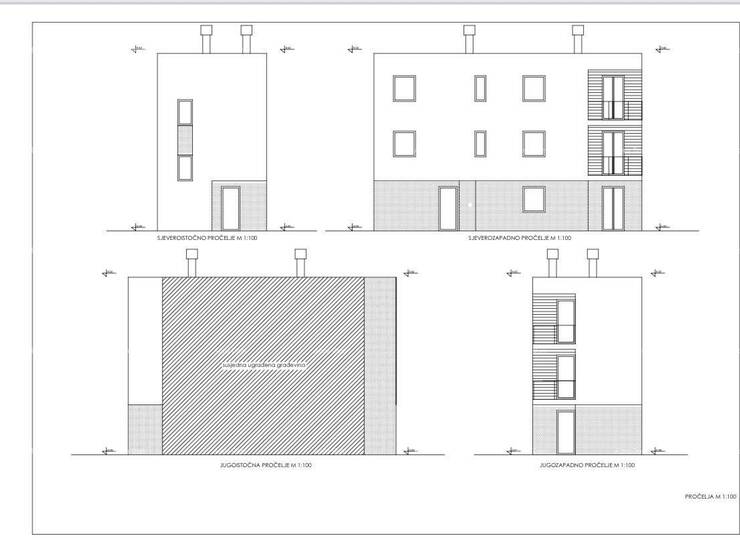
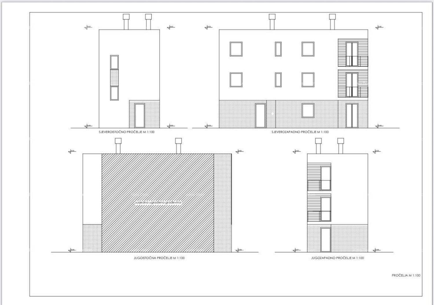
Novi stambeni projekt u mirnom dijelu Pule. Zgrada s tri etaže i ukupno tri stana – po jedan na svakoj etaži.
Stan A2 nalazi se na 1 katu zgrade i sastoji se od hodnika, kupaonice, 2 spavaće sobe, spremišta te kuhinje s blagovaonicom i dnevnim boravkom koji imaju izlaz na terasu.
Oprema i standard:
klima uređaji u dnevnom boravku i svim spavaćim sobama
električno podno grijanje u dnevnom boravku, blagovaonici, kuhinji, hodniku i kupaonici
spavaće sobe obložene laminatom, ostatak stana s keramičkim pločicama
PVC stolarija antracit boje s ugrađenim komarnicima
Planirani završetak radova predviđen je za kraj 2026. godine.
Ovaj projekt nudi idealnu kombinaciju modernog načina života, energetske učinkovitosti i mirne lokacije, svega nekoliko minuta vožnje od centra Pule i mora.
Za sve dodatne informacije i razgled stana, molimo kontaktirajte:
Azra
+ 385 91 611 ... Prikaži broj
+ 385 98 420... Prikaži broj
azra@almadominvest.com
Kontakt info
- Agencija
-
Alma Dom
- Kontakt osoba
- Alma Dom
- Telefon 1
- + 385 52 213... Prikaži broj
- Telefon 2
- + 385 52 210... Prikaži broj
- Adresa
- Istarska 10
- Pula, Hrvatska