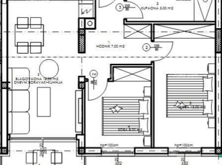
Novo u ponudi! U prodaji je stan u novom stambenom projektu na odličnoj l... Pula 152.000€ 2 814 €/m2 Novo 2 Tip Stan Površina 54 m2 Struktura 2 Detalji Tip Stan Struktura 2 Cijena 152.000€ Površina 54 m2 (2 814 €/m2) Površina zemljišta 0 Kat p Ukup. katova 5 Udaljenost od mora 1000m Parkirno mjesto Da Ažuriran 08.04.2026 ID 105866 Opis Novo u ponudi! U prodaji je stan u novom stambenom projektu na odličnoj lokaciji. Stan se nalazi u prizemlju te se sastoji od hodnika, 2 spavaće sobe, kupaonice, dnevnog boravka s kuhinjom i blagovaonicom te terase. Uz stan dolazi 1 parkirno mjesto uz nadoplatu od 18.000 €, a postoji i mogućnost kupnje ostave. Planirani završetak izgradnje je kraj 2027. godine. Primamo rezervacije. Za dodatne informacije, molimo kontaktirajte: Azra + 385 91 611 5706... Prikaži broj + 385 98 420 885... Prikaži broj azra@almadominvest.com Kontakt podaci Kontakt info Agencija Alma Dom Kontakt osoba Alma Dom Telefon 1 + 385 52 213 332... Prikaži broj Telefon 2 + 385 52 210 160... Prikaži broj Adresa Istarska 10 Pula, Hrvatska Kontakt forma Vaše ime Telefon (opciono) Email Pitanje U sledeće (antibot) polje upišite broj 3 slovima