Oglas
Pula
252.226€
3 655 €/m2
Tip
Stan
Površina
69 m2
Struktura
2
Detalji
- Tip
- Stan
- Struktura
- 2
- Cijena
- 252.226€
- Površina
- 69 m2 (3 655 €/m2)
- Površina zemljišta
- 111
- Kat
- p
- Ukup. katova
- 3
- Udaljenost od mora
- 0m
- Parkirno mjesto
- Da
- Ažuriran
- 27.02.2026
- ID
- 99912
Opis
Pula, jedan od najpoželjnijih gradova u Istri, nudi spoj mediteranskog načina života, razvijene infrastrukture i blizine mora.
Valdebek je mirno i traženo stambeno naselje koje se kontinuirano razvija te je sve češći izbor za obiteljski život i dugoročnu investiciju.
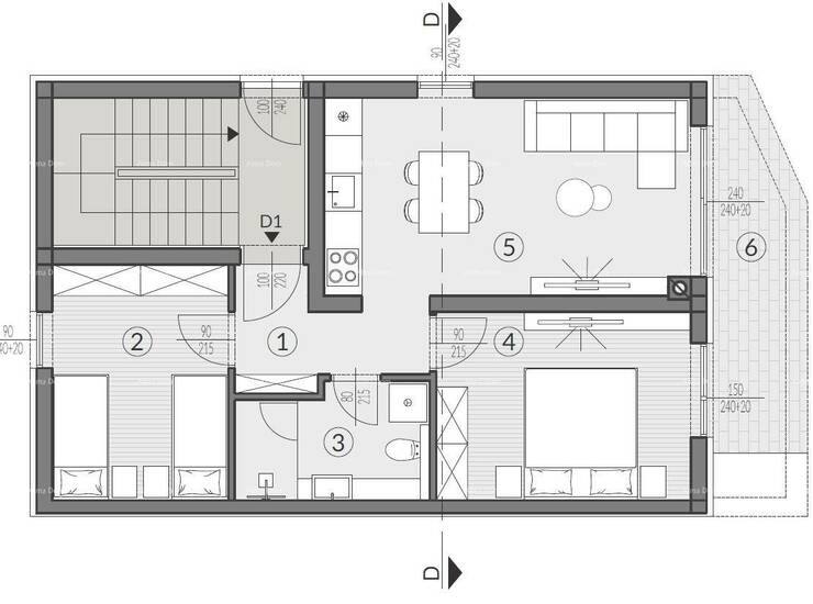
Prodaje se stan u kvalitetnoj novogradnji, zgrada D, stan D1, smješten u prizemlju s vrtom. Objekt je u potpunosti izgrađen, a izdavanje uporabne dozvole očekuje se uskoro.
Stan je opremljen suvremenim i energetski učinkovitim sustavima grijanja i hlađenja:
Visokokvalitetni Daikin sustav grijanja i hlađenja, s unutarnjim jedinicama niskog profila postavljenima uz pod (radijatorski tip), za ugodnu i ravnomjernu temperaturu tijekom cijele godine
Podno grijanje u dnevnom boravku, hodniku i kupaonici
RASPORED PROSTORIJA
Hodnik s garderobom: 4,64 m²
Spavaća soba: 10,50 m²
Kupaonica: 5,28 m²
Spavaća soba: 12,15 m²
Dnevni boravak s kuhinjom i blagovaonicom: 18,26 m²
Natkrivena terasa: 8,10 m² (obračunato 4,05 m²)
Neto površina stana: 54,88 m²
VANJSKI I DODATNI PROSTORI
Vrt: 111,03 m² (obračunato 11,10 m²)
Parkirno mjesto PM1: 12,50 m² (obračunato 3,12 m²)
UKUPNA NETO POVRŠINA - 69,10 m²
INFO:
+ 385 91 611... Prikaži broj
+ 385 98 42... Prikaži broj
azra@almadominvest.com
Kontakt info
- Agencija
-
Alma Dom
- Kontakt osoba
- Alma Dom
- Telefon 1
- + 385 52 213... Prikaži broj
- Telefon 2
- + 385 52 210... Prikaži broj
- Adresa
- Istarska 10
- Pula, Hrvatska