Prodaja stanova u novom projektu, Pula! Stambeni projekt u Puli, zgrada s...

Pula

183.000€

3 388 €/m2

Tip

Stan

Površina

54 m2

Struktura

2

Detalji

Tip
Stan
Struktura
2
Cijena
183.000€
Površina
54 m2 (3 388 €/m2)
Površina zemljišta
0
Kat
p
Ukup. katova
3
Udaljenost od mora
3000m
Parkirno mjesto
Da
Ažuriran
24.05.2026
ID
102579

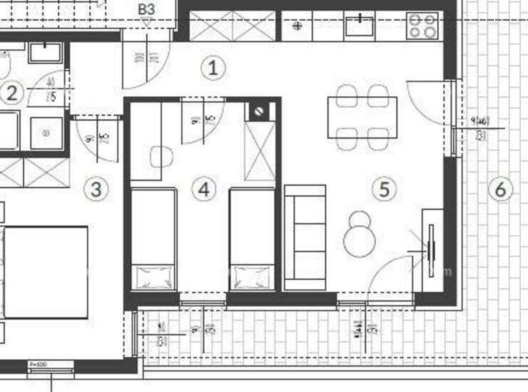
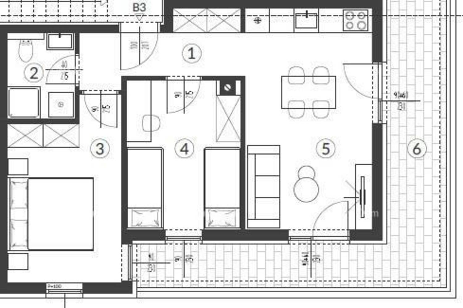
Opis

Prodaja stanova u novom projektu, Pula!

Stambeni projekt u Puli, zgrada sa tri etaže i 12 stambenih jedinica.

Stan B3, površine 54.84 m2, nalazi se u prizemlju zgrade i sastoji se od: hodnik+garderoba, dnevni boravak sa kuhinjom i blagovaonicom, 2 spavaće sobe, kupatila i natkrivene terase.
Stanovi će biti inverter-klimama, podnim grijanjem u kupatilima, kvalitetnom keramikom i podovima.
Stanu pripada jedno parkirno mjesto.
Useljenje u stanove, predviđeno krajem 2026. g.


Za više informacija, molimo kontaktirajte:

Info: + 385 91 611 5... Prikaži broj
+ 385 98 420... Prikaži broj
azra@almadominvest.com

Kontakt info

Agencija
Alma Dom
Kontakt osoba
Alma Dom
Telefon 1
+ 385 52 213... Prikaži broj
Telefon 2
+ 385 52 210... Prikaži broj
Adresa
Istarska 10
Pula, Hrvatska

Kontakt forma