ISTRA, SVETVINČENAT - Kamena kuća s građevinskom dozvolom za obnovu
Svetvinčenat
95.000€
1 021 €/m2
Tip
Kuća
Površina
93 m2
Struktura
1
Detalji
- Tip
- Kuća
- Struktura
- 1
- Cijena
- 95.000€
- Površina
- 93 m2 (1 021 €/m2)
- Površina zemljišta
- 111
- Udaljenost od mora
- 15000m
- Parkirno mjesto
- Da
- Ažuriran
- 10.03.2026
- ID
- 20864
Opis
ISTRA, SVETVINČENAT - Kamena kuća s građevinskom dozvolom za obnovu
Renesansni gradić Svetvinčenat, jedan je od istarskih dragulja s bogatom turističkom ponudom te brojnim manifestacijama koje se odigravaju u izvanredno atraktivnim povijesnim prostorima ovog gradića. Simbolom samog mjesta i jedna od najvažnijih utvrda mletačke vojske tog vremena u Istri je renesansni trg Placa s kaštelom Morosini-Grimani. Ovaj poseban gradić ima bogatu tradiciju, zanimljive i raznolike programe od kojih su najistaknutiji Srednjovjekovni festival, Festival sira te Festival plesa i neverbalnog kazališta koji svake godine privlače brojne posjetitelje.
U ovome lijepom gradiću, bogate kulturne baštine, prodaje se ruševina za adaptaciju na odličnoj lokaciji s pravomoćnom građevinskom dozvolom te plaćenim komunalijama.
Površina kamene kuće iznosi tlocrtno 60m2, dok se okućnica proteže na 111m2.
Za navedenu starinu ishodovana je građevinska dozvola za obnovu.
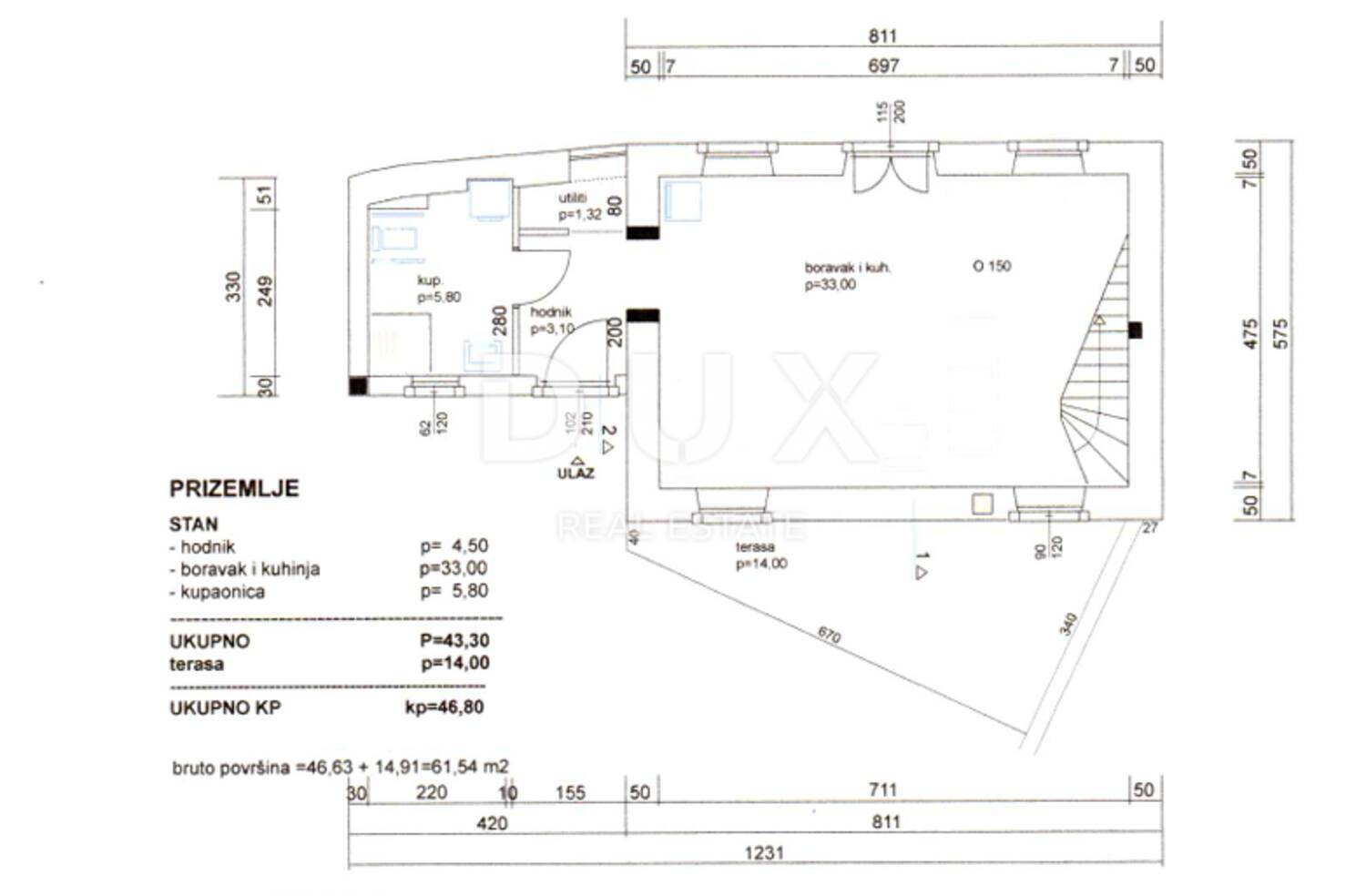
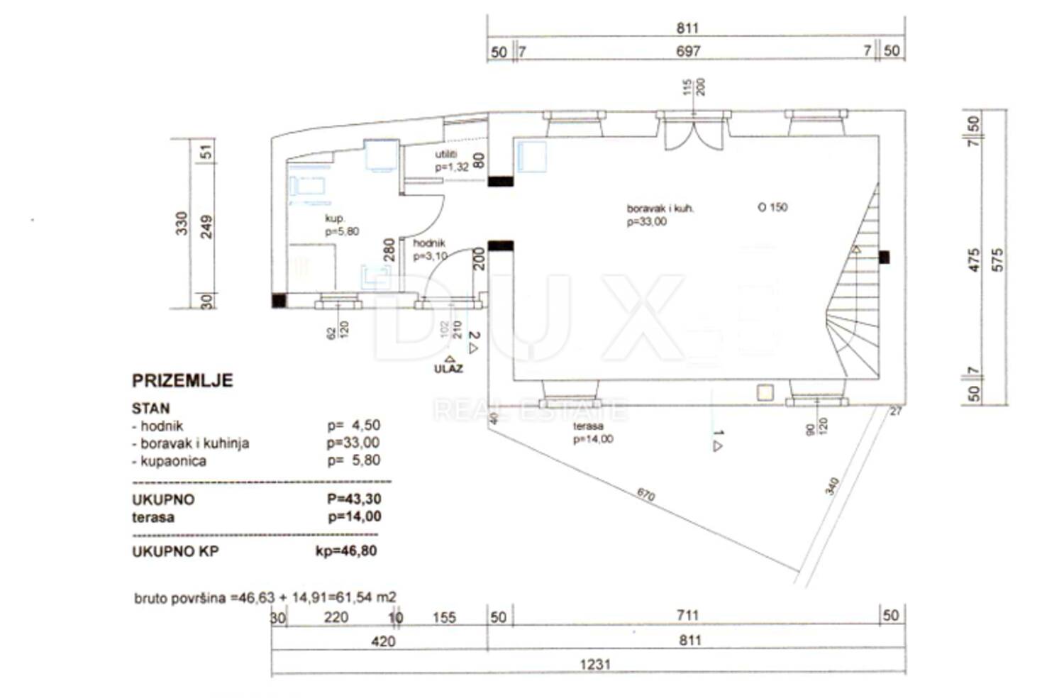
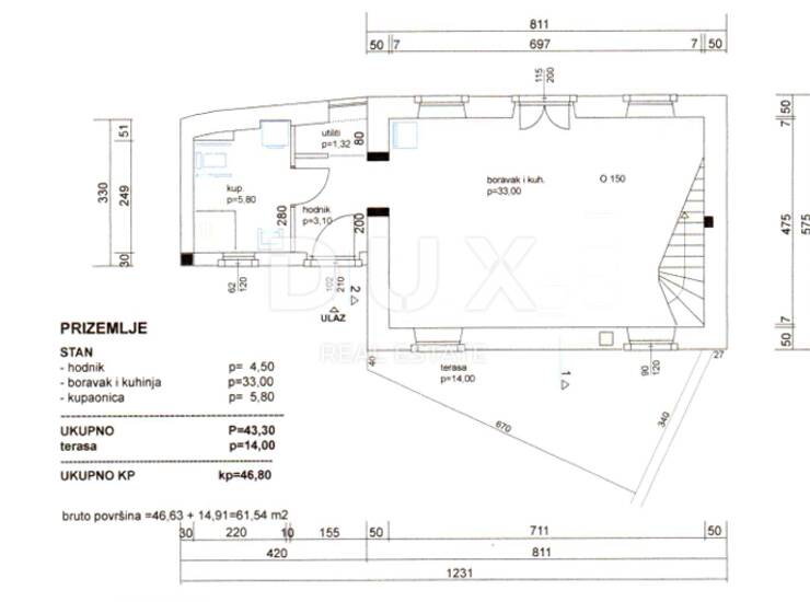
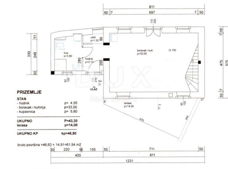
Projektom je planirana kuća prizemlje+kat ukupne bruto površine 93,83m2.
U prizemlju je planirana kuhinja s blagovaonom te dnevni boravak otvorenoga koncepta te kupatilo. Ukupne bruto površine 61,54m2
Na katu su predviđene dvije spavaće sobe s predsobljem te kupatilo. Ukupne bruto površine 32,29m2.
Pristupni put je asfaltirani.
Vlasništvo 1/1.
Lokacija nekretnine vrlo je povoljna, smještena u srcu Istre, te Vas do obale dijeli tek pola sata vožnje.
Nekretnina svakako vrijedna Vaše pažnje, po
Kontakt info
- Agencija
-
DUX NEKRETNINE
- Kontakt osoba
- Dux Nekretnine
- Telefon 1
- + 385 51 518... Prikaži broj
- Telefon 2
- + 385 91 480 ... Prikaži broj
- Adresa
- Tizianova 8
- Rijeka, Hrvatska
Slične nekretnine
Kamena kuća za kompletnu adaptaciju,SVETVINČENAT
- 95.000€ 78 m2
ISTRA, SVETVINČENAT, Kuća za prodaju 104.000€
- 104.000€ 180 m2
Dvojna kamena kuća za adaptaciju, okolica Svetvinčenta
- 105.000€ 180 m2
Kamena kuća za adaptaciju s projektom, Svetvinčenat
- 83.000€ 60 m2
Kamena istarska kuća za adaptaciju,SVETVINČENAT okolica
- 114.000€ 166 m2
Istra, Svetvinčenat - okolica, samostojeća kuća s garažom
- 125.000€ 100 m2
ISTRA. SVETVINČENAT - Samostojeća kamena kuća
- 146.000€ 140 m2
Simpatična kuća u mirnom mjestu blizu Svetvinčenta
- 156.000€ 43 m2
Svetvinčenat - Uređena starina sa bazenom
- 186.000€ 35 m2