U samom gradu Umagu, u sklopu suvremenog stambenog projekta s ukupno 122 st...
Umag
282.000€
3 662 €/m2
Tip
Stan
Površina
77 m2
Struktura
2
Detalji
- Tip
- Stan
- Struktura
- 2
- Cijena
- 282.000€
- Površina
- 77 m2 (3 662 €/m2)
- Površina zemljišta
- 0
- Kat
- p
- Ukup. katova
- 4
- Udaljenost od mora
- 700m
- Parkirno mjesto
- Da
- Ažuriran
- 29.03.2026
- ID
- 101710
Opis
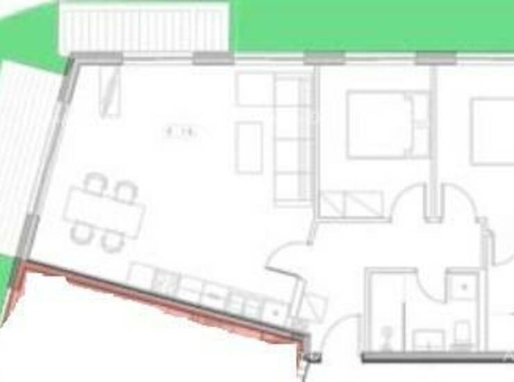
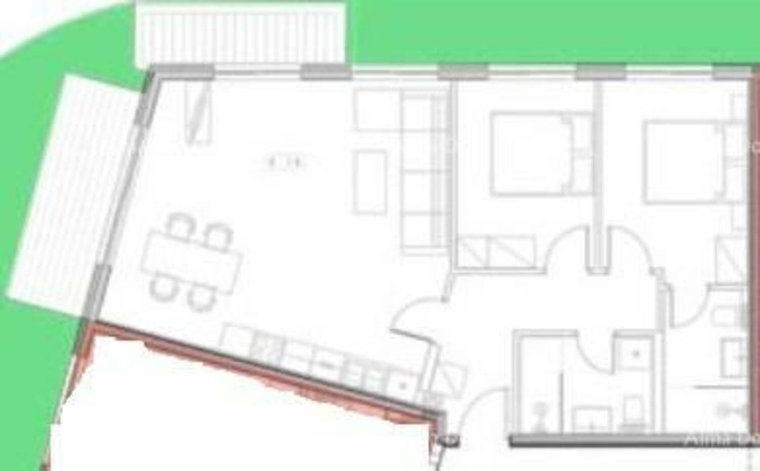
U samom gradu Umagu, u sklopu suvremenog stambenog projekta s ukupno 122 stana, prodaje se stan u prizemlju stambene zgrade ukupne površine 77,8 m². Stan je označen kao 0-16 te se odlikuje vlastitim vrtom i terasom, što ga čini idealnim za obiteljski život ili odmor.
Stan se sastoji od ulaznog prostora, dvije kupaonice, dvije spavaće sobe te otvorenog dnevnog boravka s kuhinjom i blagovaonicom, iz kojeg se izlazi na terasu površine 6,84 m² i vrt površine 25,59 m².
Uz stan dolazi spremište površine 3,78 m² te garažno parkirno mjesto površine 12,50 m².
Zgrada je građena armirano-betonskom konstrukcijom i ima termoizolacijsku fasadu (ETICS 10 cm). Ugrađena je visokokvalitetna PVC stolarija s podizno-kliznim stijenama, električne rolete u sobama, multisplit klimatizacija u svim prostorijama, kao i prvoklasna keramika i parket. Stan ima vlastito brojilo struje i vode, video parlafon te internet i TV priključke.
Zgrada raspolaže s 74 garažna mjesta, 82 vanjska i 25 natkrivenih parkirnih mjesta, ukupno 105 spremišta, liftom i stubištima iz četiri glavna ulaza. U podrumu se nalaze garaže i komunikacijski prostori, dok su stanovi smješteni od 1. do 3. kata.
Lokacija je izuzetno povoljna – u krugu od 100 do 500 metara nalaze se vrtić, škola, trgovine, sportski sadržaji i centar grada, dok su more, šetnica i gradska plaža udaljeni oko 700 metara.
Završetak radova planiran je krajem 2025. godine.
Za više informacija stojimo vam na ras
Kontakt info
- Agencija
-
Alma Dom
- Kontakt osoba
- Alma Dom
- Telefon 1
- + 385 52 213... Prikaži broj
- Telefon 2
- + 385 52 210... Prikaži broj
- Adresa
- Istarska 10
- Pula, Hrvatska