RIJEKA, ZAKUP - MANJI POSLOVNI PROSTOR NADOMAK CENTRA GRADA
Centar, Rijeka
420€ /mjesečno
23 €/m2
Tip
Poslovni prostor
Površina
18 m2
Struktura
1
Detalji
- Tip
- Poslovni prostor
- Struktura
- 1
- Cijena
- 420€ /mjesečno
- Površina
- 18 m2 (23 €/m2)
- Kat
- 5
- Grijanje
- Sustav grijanja, klimatizacije i ventilacije
- Ažuriran
- 25.01.2026
- ID
- 91391
Opis
RIJEKA, na odličnoj lokaciji, svega par minuta hoda od Korza, iznajmljuje se poslovni prostor površine 18 m², smješten na šestom katu uredne i novije poslovne zgrade s liftom. Zgrada je uredna i održavana, a zbog svoje centralne pozicije u blizini svih važnijih sadržaja (Korzo, javni prijevoz, banke, pošta, trgovine), prostor je idealan za razne djelatnosti poput ureda, knjigovodstava, odvjetničkih ureda ili konzultantskih firmi.
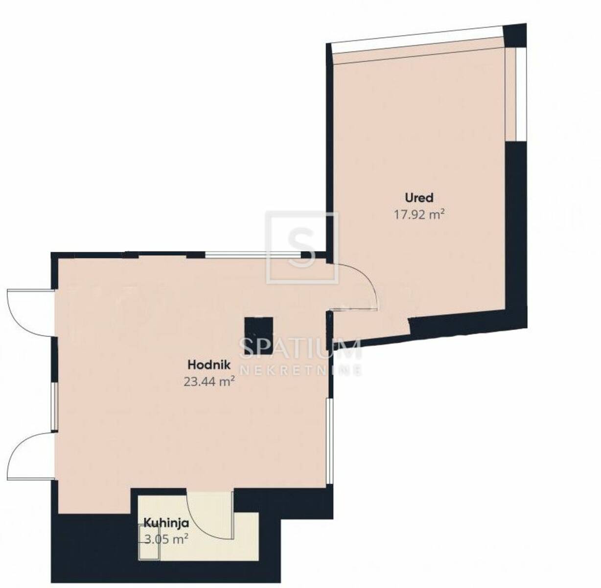
Prostor se sastoji od:
⦁ uredska prostorija kvadrature 17,92 m²
⦁ ulaznog hodnika 23,44 m²
⦁ čajne kuhinje (3,05 m²) smještene uz ulaz,
⦁ toaleta.
Ulazni hodnik, kuhinja, i toalet se dijele s još dva manja ureda. Dodatno, postoji još jedan sanitarni čvor na etaži koji je dostupan na korištenje. Posebna pogodnost je mogućnost najma i u manjim cjelinama.
Rijeka , najveća je hrvatska luka, treći po veličini grad u Republici Hrvatskoj te administrativno središte Primorsko-goranske županije. Rijeku je mađarska vlada još u 18. i 19. stoljeću zbog idealnog zemljopisnog položaja i dubine mora u Kvarnerskom zaljevu razvila u jednu od najvećih europskih luka i moćno industrijsko središte. Na Jadranu je poznata i riječka bura, hladan i suh vjetar sjeveroistočnog smjera koji povoljno djeluje na čistoću riječkog zraka.
Za sve ostale informacije obratite se agentu sa povjerenjem.
Rok Lulić
Agent s licencom
+ 385 91 220 ... Prikaži broj
rok@spatium.hr
Spatium nekretnine
+ 385 51 272... Prikaži broj
info@spatium.hr
ID KOD AGENC
Kontakt info
- Agencija
-
Spatium Nekretnine
- Kontakt osoba
- Vedran Prica
- Telefon 1
- + 385 51 272... Prikaži broj
- Telefon 2
- + 385 95 812 ... Prikaži broj
- Adresa
- Šetalište Andrije Kačića Miošića 5
- Rijeka Centar
- Rijeka, Hrvatska
Slične nekretnine
CENTAR, 1. KAT, PP, 43 M2, 430 €/MJ
- 430€/mjesečno 43 m2
CENTAR, POSLOVNI PROSTOR, 43M2
- 430€/mjesečno 43 m2
RIJEKA, ZAKUP - MANJI POSLOVNI PROSTOR NADOMAK CENTRA GRADA
- 400€/mjesečno 14 m2
Poslovni prostor - 11 m2
- 450€/mjesečno 40 m2
Poslovni prostor Centar
- 450€/mjesečno 59 m2
Centar poslovni prostor
- 450€/mjesečno 25 m2
RIJEKA, ZAKUP - MANJI POSLOVNI PROSTOR NADOMAK CENTRA GRADA
- 380€/mjesečno 14 m2
CENTAR, POSLOVNI PROSTOR 38M2
- 380€/mjesečno 38 m2
Najam, Rijeka, Centar, poslovni prostor na Korzu
- 366€/mjesečno 21 m2
Poslovni prostor Korzo
- 475€/mjesečno 40 m2
Rijeka, Pomerio - najam poslovnog prostora
- 350€/mjesečno 35 m2
CENTAR, ZAKUP POSLOVNOG PROSTORA
- 350€/mjesečno 25 m2