ISTRA, BARBAN - Stan s vrtom u novogradnji
Barban
188.000€
2 611 €/m2
Tip
Stan
Površina
72 m2
Struktura
3
Detalji
- Tip
- Stan
- Struktura
- 3
- Cijena
- 188.000€
- Površina
- 72 m2 (2 611 €/m2)
- Kat
- Prizemlje
- Terasa
- Da
- Udaljenost od mora
- 8500m
- Ažuriran
- 16.10.2025
- ID
- 52769
Opis
ISTRA, BARBAN - Stan s vrtom u novogradnji
Barban je malo slikovito srednjevjekovno naselje akropolskog tipa na južnom dijelu istočne Istre, smješteno iznad doline rijeke Raše. Dobro očuvana arhitektonska zdanja iz razdoblja baroka i gotike, freske i glagoljski zapisi, crkve, palače i gradske zidine, viteška igra Trka na prstenac, tradicionalna fešta od vina i festival smokava čine Barban izuzetno atraktivnim. Općina Barban, koja ima izlaz na more u Raškome zaljevu, zauzima površinu od 100 km². Osim Barbana, u prekrasnom zelenilu Barbanštine, smješteno je još 31 naselje.
U neposrednoj blizini centra tog šarmantnog gradića, u izgradnji je zgrada koja se proteže kroz prizemlje i jedan kat. U izgradnji se koriste trajni i pouzdani materijali koji jamče dugoročno zadovoljstvo i sigurnost stanovanja dok je planiranje prostora svake etaže detaljno provedeno što je rezultiralo kvalitetnim rasporedom prostorija.
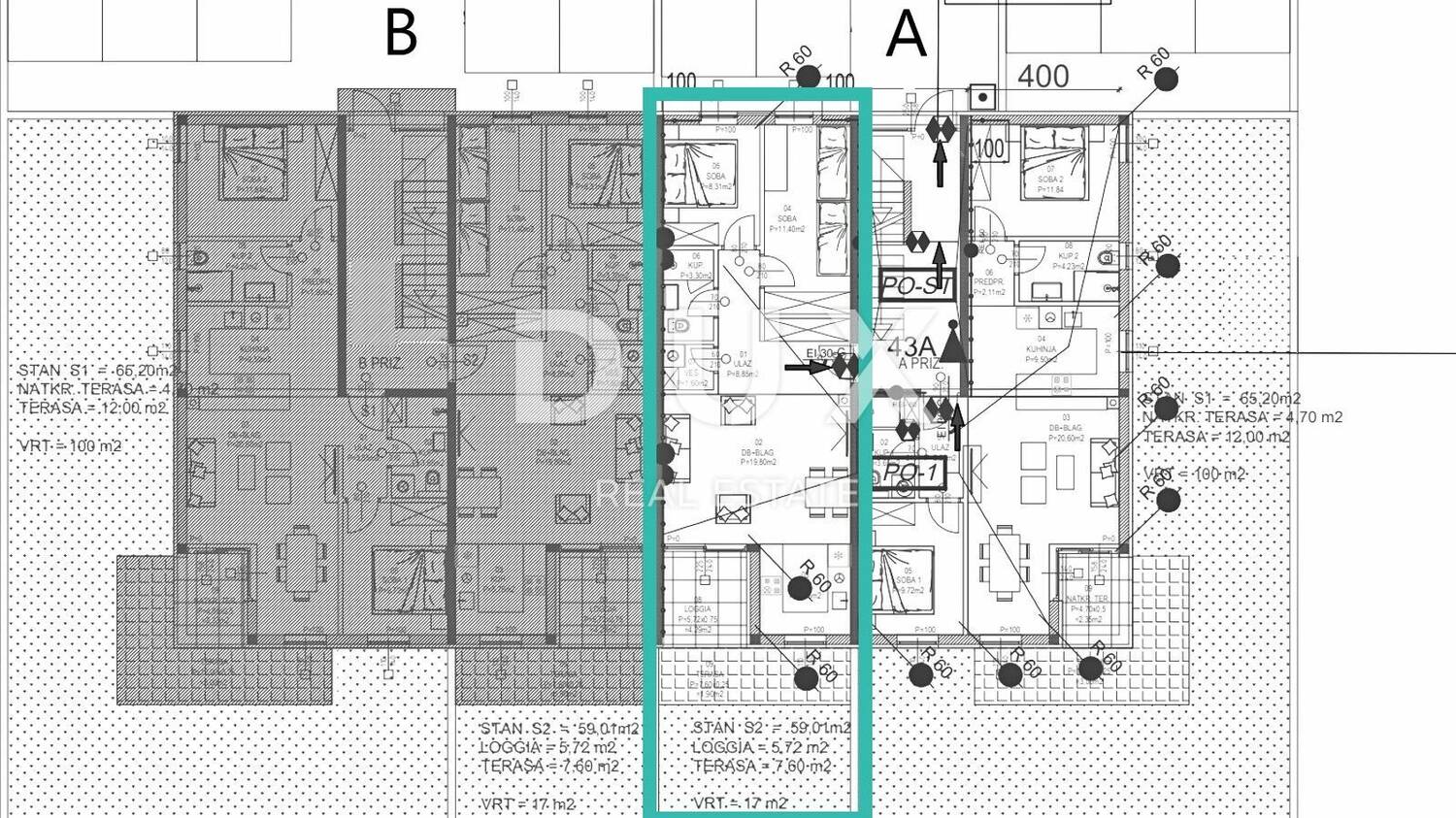
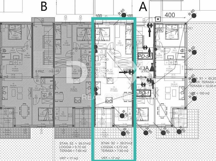
Predmet prodaje je stan koji se nalazi u prizemlju zgrade; stambene površine 59,01 m² s lođom površine 5,72 m², nenatkrivenom terasom površine 7,60 m² i vrtom površine 17 m².
Sastoji se od dvije spavaće sobe, kupaonice, praonice rublja i prostora otvorenog koncepta koji ujedinjuje dnevni boravak, blagovaonicu i kuhinju s izlazom na lođu i vrt u produžetku.
Parkirna mjesta i vrt kupuju se odvojeno prema pripadajućem obračunskom koeficijentu.
Ovaj stan u novogradnji na pješačkoj udaljenosti od centra mjesta idealna je prilik
Kontakt info
- Agencija
-
DUX NEKRETNINE
- Kontakt osoba
- Dux Nekretnine
- Telefon 1
- + 385 51 518... Prikaži broj
- Telefon 2
- + 385 91 480 ... Prikaži broj
- Adresa
- Tizianova 8
- Rijeka, Hrvatska
Slične nekretnine
ISTRA, BARBAN - Stan s vrtom u novogradnji
- 188.000€ 72 m2
BARBAN, DVOSOBAN STAN U PRIZEMLJU, NOVOGRADNJA
- 189.800€ 73 m2
Barban, novogradnja, komforan stan u prizemlju
- 190.944€ 73 m2
Istra, BARBAN - NOVOGRADNJA s vrtom, stan 66,63 m2, prodaja!
- 173.300€ 66 m2
Barban, novogradnja, dvosobni stan u prizemlju
- 173.238€ 66 m2
BARBAN, DVOSOBAN STAN U PRIZEMLJU, NOVOGRADNJA
- 173.000€ 66 m2
Istra, Barban, stan na prodaju u novogradnji - AS1
- 170.924€ 65 m2
Istra, Barban, stan na prodaju u novogradnji - BS1
- 169.910€ 65 m2
ISTRA, BARBAN - Komforan stan u novogradnji
- 166.500€ 64 m2
ISTRA, BARBAN - Stan s vrtom
- 213.000€ 81 m2