Prodajemo stanovi u zgradi čija izgradnja je započeta u 9-om mjesecu 2023...
Kanfanar
278.400€
2 756 €/m2
Tip
Stan
Površina
101 m2
Struktura
3
Detalji
- Tip
- Stan
- Struktura
- 3
- Cijena
- 278.400€
- Površina
- 101 m2 (2 756 €/m2)
- Površina zemljišta
- 0
- Kat
- 1
- Ukup. katova
- 3
- Udaljenost od mora
- 0m
- Parkirno mjesto
- Da
- Ažuriran
- 29.03.2026
- ID
- 100615
Opis
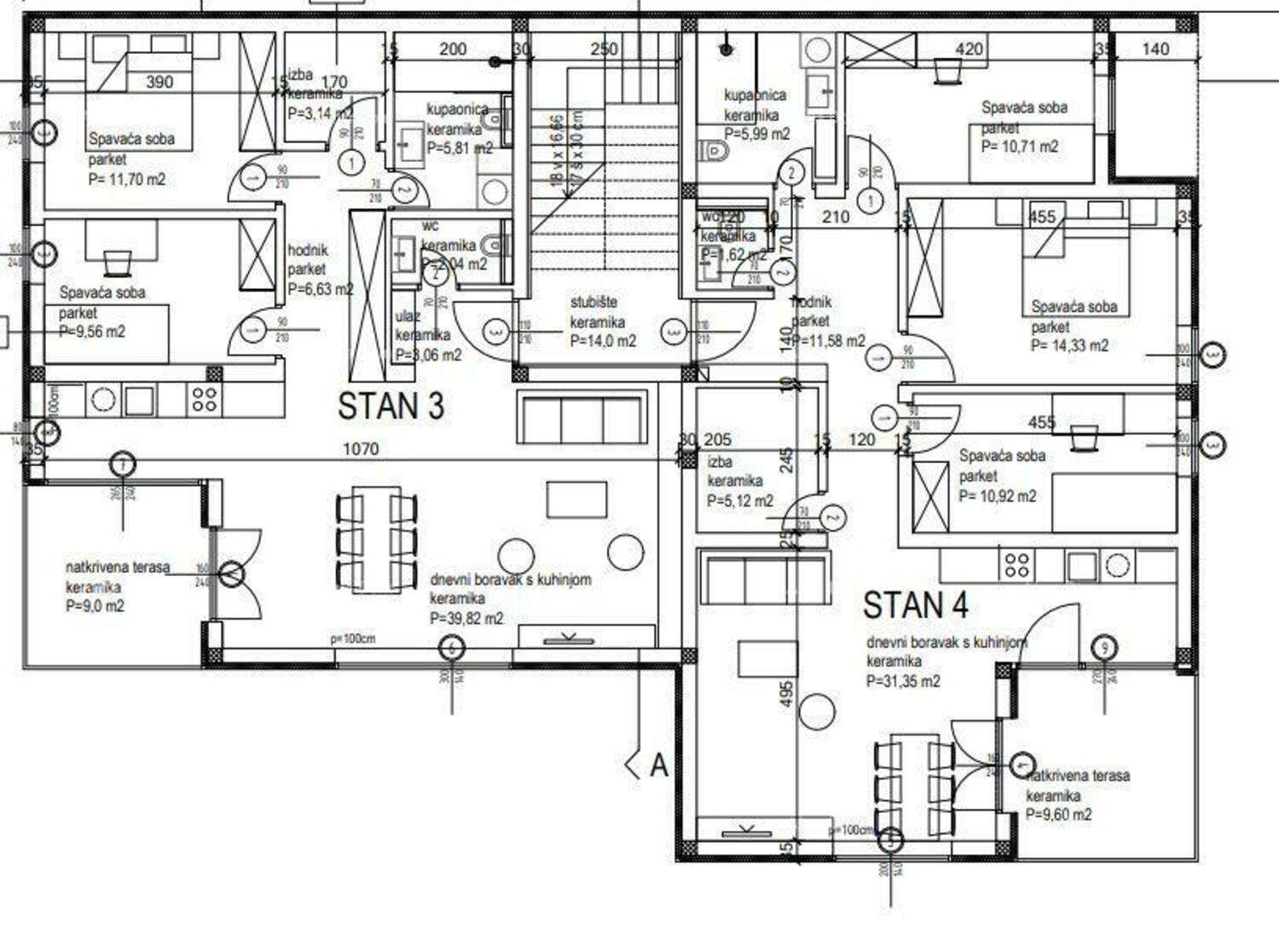
Prodajemo stanovi u zgradi čija izgradnja je započeta u 9-om mjesecu 2023g godine. Projekt se sastoji od dvije spojene zgrade sa ukupno 8 stanova, 5 stanova u jednoj i 3 u drugoj zgradi.
Zgrade su u mirnom dijelu Kanfanara okruženo luksuznim vilama dalje od prometnih cesta.
Trosoban stan S4 se nalazi na 1.katu zgrade od ukupno 5 stanova, stambenoj površine 101.22 m2 i sastoji od slijedećih prostorija:
hodnik - 11.58 m2
kupaonica - 5.99 m2
spavaća soba 1 - 10.71 m2
spavaća soba 2 - 10.92 m2
spavaća soba 3 - 14.33 m2
WC - 1.62 m2
izba/špajza - 5.12 m2
dnevni boravak+kuhinja+blagavaona - 31.35 m2
natkrivena terasa - 9.60 m2.
Svakom stanu će pripadati 1 parkirno mjesto.
Kvalitetna keramika je predviđena u svakoj prostoriji osim spavaćih soba i ulaznog hodnika gdje će biti postavljene vrhunske vinil podne obloge.
Izgradnja je zapoćeta početkom jeseni 2023 i završetak planira se na kraj 2024 god.
Primamo rezervacije!
+ 385 91 611 ... Prikaži broj
azra@almadominvest.com
+ 385 98 420... Prikaži broj
Kontakt info
- Agencija
-
Alma Dom
- Kontakt osoba
- Alma Dom
- Telefon 1
- + 385 52 213... Prikaži broj
- Telefon 2
- + 385 52 210... Prikaži broj
- Adresa
- Istarska 10
- Pula, Hrvatska