OTOK PAG, MANDRE - Moderna novogradnja s pogledom na more 80 metara od plaže!
Mandre, Kolan
393.040€
4 010 €/m2
Tip
Stan
Površina
98 m2
Struktura
4
Detalji
- Tip
- Stan
- Struktura
- 4
- Cijena
- 393.040€
- Površina
- 98 m2 (4 010 €/m2)
- Kat
- 2
- Grijanje
- Podno grijanje
- Terasa
- Da
- Udaljenost od mora
- 80m
- Ažuriran
- 27.10.2025
- ID
- 93911
Opis
OTOK PAG, MANDRE - Moderna novogradnja s pogledom na more 80 metara od plaže! S7
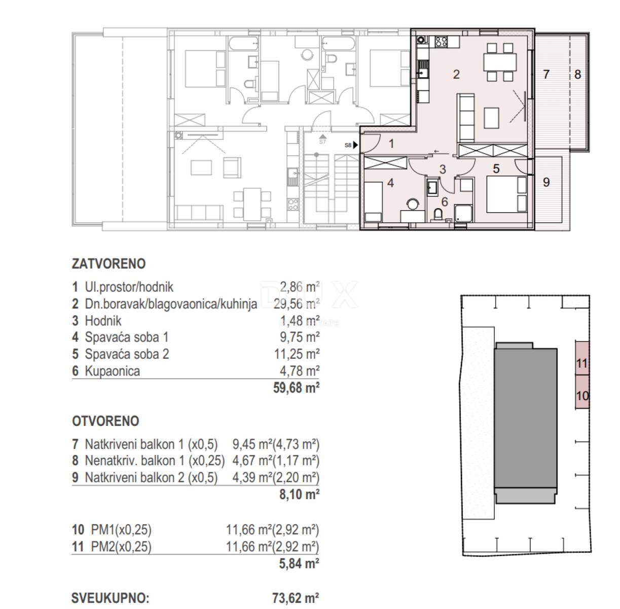
Prodaje se atraktivan stan S7 u novogradnji smještenoj u Mandrama, samo 80 metara od prekrasne plaže. Zgrada sadrži ukupno osam modernih stanova, građenih s naglaskom na kvalitetu, udobnost i suvremeni stil života.
Stan S7 nalazi se na drugom katu te se sastoji od tri spavaće sobe, dvije kupaonice s podnim grijanjem, prostranog dnevnog boravka s kuhinjom i blagovaonicom te natkrivene terase s pogledom na more idealne za opuštanje u toplim ljetnim večerima. Stanu pripadaju i dva parkirna mjesta.
Ova novogradnja predstavlja savršen spoj modernog dizajna i mediteranskog šarma – idealna za odmor, ali i kao investicija za najam tijekom turističke sezone.
Mandre su slikovito ribarsko mjesto na otoku Pagu, poznato po čistom moru, uređenim plažama i mirnoj atmosferi. Otok Pag oduševljava svojom jedinstvenom prirodom, bogatom gastronomskom ponudom, paškog sira i vina, te autentičnim dalmatinskim duhom.
Za više informacija i razgledavanje ove nekretnine, slobodno nas kontaktirajte – vaš novi dom uz more čeka vas u Mandrama!
Poštovani klijenti, agencijska provizija naplaćuje se u skladu s Općim uvjetima poslovanja:
www.dux-nekretnine.hr/opci-uvjeti-poslovanja
ID KOD AGENCIJE: 42866
Josip Šestan
Agent s licencom
Mob: + 385 91 799 ... Prikaži broj
Tel: + 385 91 480 ... Prikaži broj
E-mail: josip@dux-dalmacija.com
www.dux-dalmacija.com
Kontakt info
- Agencija
-
DUX NEKRETNINE
- Kontakt osoba
- Dux Nekretnine
- Telefon 1
- + 385 51 518... Prikaži broj
- Telefon 2
- + 385 91 480 ... Prikaži broj
- Adresa
- Tizianova 8
- Rijeka, Hrvatska
Slične nekretnine
OTOK PAG, MANDRE, luksuzni 2s+db stan s bazenom i okućnicom
- 387.500€ 94 m2
OTOK PAG, MANDRE, penthouse s pogledom na more u novogradnji
- 399.000€ 104 m2
OTOK PAG, MANDRE, dvoetažni apartman s bazenom u novogradnji
- 385.000€ 95 m2
OTOK PAG, MANDRE, dvoetažni apartman s bazenom u novogradnji
- 375.000€ 95 m2
OTOK PAG, MANDRE - 2s+db stan u kvalitetnoj novogradnji
- 369.000€ 90 m2
OTOK PAG, MANDRE- 3S+db penthouse u kvalitetnoj novogradnji
- 360.000€ 91 m2
OTOK PAG, MANDRE - 3s+db stan u kući od samo dva stana
- 360.000€ 116 m2
OTOK PAG, MANDRE - Kvalitetna novogradnja 40m od mora
- 355.000€ 91 m2
Otok Pag, Mandre, novogradnja, 1. red do mora!
- 432.375€ 64 m2