ISTRA, LABIN, GRAĐEVINSKO ZEMLJIŠTE SA DOZVOLOM ZA GRADNJU
Labin
92.000€
102 €/m2
Tip
Zemljiste
Površina
900 m2
Detalji
- Tip
- Zemljiste
- Cijena
- 92.000€
- Površina
- 900 m2 (102 €/m2)
- Ažuriran
- 04.12.2025
- ID
- 96411
Opis
ISTRA, LABIN – OKOLICA, ZEMLJIŠTE S PRAVOMOĆNOM GRAĐEVINSKOM DOZVOLOM
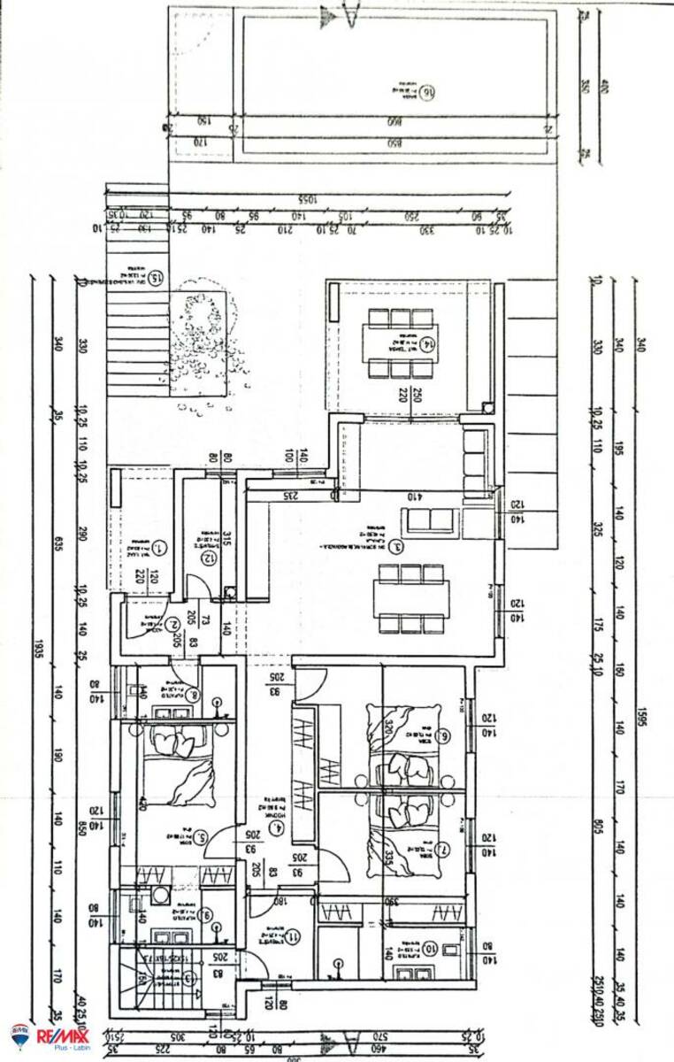
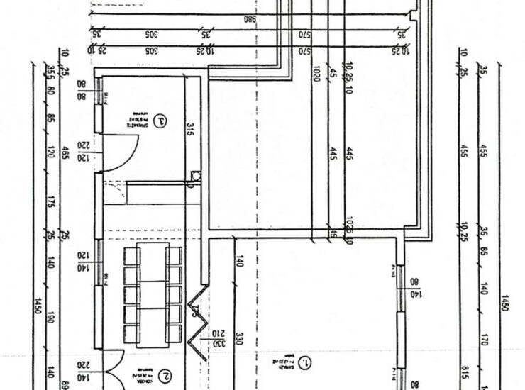
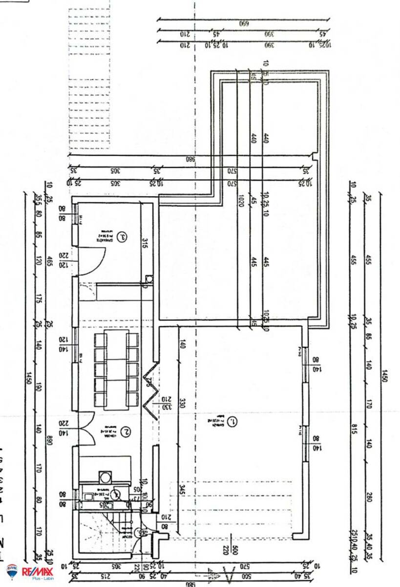
Na prodaju je građevinsko zemljište površine 901 m², smješteno na mirnoj lokaciji okruženoj prirodom, u blizini Labina.
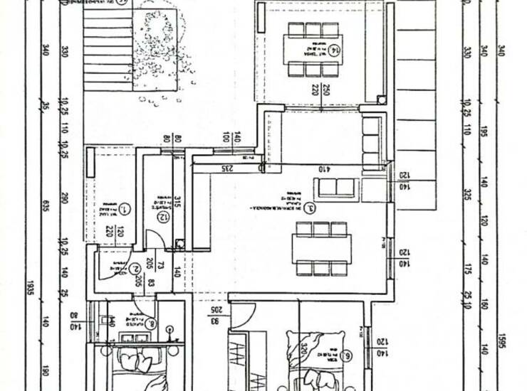
Za zemljište je izdana pravomoćna građevinska dozvola za izgradnju obiteljske prizemnice ukupne neto površine 227 m².
Projektom je predviđen i bazen površine 24 m².
Tlocrt predviđa:
- ulazni hodnik
- kuhinju s blagovaonicom i dnevnim boravakom
- tri spavaće sobe
- tri kupaonice
U suterenu se nalaze:
- garaža
- konoba
- spremište
- toalet
Plaćeni su:
- komunalni doprinos
- priključak za električnu energiju (7,36 kW)
- priključak za vodu
Lokacija je idealna za miran obiteljski život ili turizam – trgovina i škola nalaze se na cca 800 metara udaljenosti.
Vlasništvo uredno, 1/1.
HELENA HRVATIN
Agent
Mob: + 385 91 1872... Prikaži broj
Tel: + 385 52 496... Prikaži broj
E-mail: h.hrvatin@remax.hr
www.remax-istra.com
Kontakt info
- Agencija
-
Re/Max Plus Labin
- Kontakt osoba
- Erna Radićanin
- Telefon 1
- + 385 52 496... Prikaži broj
- Adresa
- Zelenice 7
- Labin, Hrvatska
Slične nekretnine
ISTRA, LABIN, ZEMLJIŠTE SA PROJEKTOM BLIZU MORA
- 92.000€ 500 m2
Labin, građevinsko zemljište u blizini mora
- 92.000€ 509 m2
Labin, okolica, građevinsko zemljište sa projektom
- 91.800€ 761 m2
Istra, Labin - okolica, poljoprivredno zemljište 7.600m2
- 90.000€ 7600 m2
ISTRA, LABIN ZEMLJIŠTE SA PROJEKTOM BLIZU MORA
- 90.000€ 550 m2
ISTRA, LABIN - Prostrano građevinsko zemljište
- 90.000€ 2722 m2
ISTRA, LABIN - Idilična livada
- 90.000€ 10053 m2
ISTRA, LABIN - Komforno građevinsko zemljište
- 90.000€ 1083 m2
Labin, prekrasno građevinsko zemljište nadomak grada
- 90.000€ 981 m2
Veliko poljoprivredno zemljište sa pogledom na more
- 90.000€ 7600 m2
Labin, atraktivno građevinsko zemljište
- 94.000€ 1445 m2