MALINSKA, DVOJNA KUĆA S BAZENOM
Bogovići, Malinska-Dubašnica
680.000€
3 777 €/m2
Tip
Kuća
Površina
180 m2
Struktura
5+
Detalji
- Tip
- Kuća
- Struktura
- 5+
- Cijena
- 680.000€
- Površina
- 180 m2 (3 777 €/m2)
- Površina zemljišta
- 100
- Grijanje
- Sustav grijanja, klimatizacije i ventilacije
- Terasa
- Da
- Udaljenost od mora
- 900m
- Parkirno mjesto
- Da
- Ažuriran
- 10.03.2026
- ID
- 50458
Opis
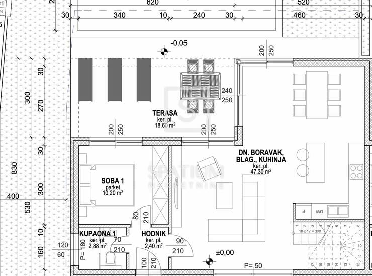
MALINSKA, u ponudu smo dobili dvojnu obiteljsku kuću u izgradnji s dva bazena. Stambena jedinica S2 ima površinu 180m2, a sastoji se od prizemlja i kata.
Prizemlje čine ulazni hodnik, kupaonica, spavaća soba, kuhinja s blagovaonicom i prostrani dnevni boravak s kojeg se izlazi na natkrivenu terasu.
Unutarnjim stepenicama dolazi se na prvi kat koji se sastoji od hodnika i tri spavaće sobe. Svaka soba ima vlastitu kupaonu te dvije sobe imaju pristup na prostranu terasu.
Grijanje i hlađenje osigurani su putem dizalice topline i klima uređaja, što omogućuje ugodan boravak tijekom cijele godine.
Dvije stambene jedinice iako povezane imaju svoju privatnost, svaka ima svoju odvojenu okućnicu sa zelenom površinom, terasom i bazenom.
Nekretnina se nalazi u mirnoj rezidencijalnoj ulici na rubu zelene zone udaljena 900m od mora. Svakom objektu pripadaju dva parkirna mjesta.
Trenutno je u fazi izgradnje i ulazak u gotovu nekretninu se očekuje se krajem 2024. godine.
Stambena jedinica označena u nacrtu sa S2 prodaje se po cijeni od 680 000 EUR.
„Malinska je biser Kvarnerskih otoka“ napisao je profesor sveučilišta u Beču., L. Waagen 1905. godine.
Turizam, koji je danas glavna gospodarska djelatnost, započeo je u Malinskoj na prijelazu 19. u 20. stoljeće, zahvaljujući razvoju željezničkog i parobrodarskog prometa. Prvi zabilježeni gosti bili su lovci, austrijski i mađarski aristokrati te riječki patriciji. U okolicu Malinske dolazili su u lov na šlju
Kontakt info
- Agencija
-
Spatium Nekretnine
- Kontakt osoba
- Vedran Prica
- Telefon 1
- + 385 51 272... Prikaži broj
- Telefon 2
- + 385 95 812 ... Prikaži broj
- Adresa
- Šetalište Andrije Kačića Miošića 5
- Rijeka Centar
- Rijeka, Hrvatska
Slične nekretnine
MALINSKA, DVOJNA KUĆA NA MIRNOJ LOKACIJI
- 680.000€ 180 m2
OTOK KRK, MALINSKA - prostrana kuća s tri stana 600m od mora
- 684.000€ 326 m2
MALINSKA, LUKSUZNA DVOJNA KUĆA
- 670.000€ 160 m2
Krk, Malinska, dvojna kuća sa bazenom pogled more
- 625.000€ 170 m2
Malinska - novoizgrađena kuća s bazenom
- 623.000€ 140 m2
Malinska - novoizgrađena kuća s bazenom
- 623.000€ 140 m2
MALINSKA, DVOJNA KUĆA
- 620.000€ 160 m2
MALINSKA - Novogradnja na odličnoj lokaciji s pogledom na more
- 550.000€ 148 m2
Bogovići - samostojeća kuća, 220m2
- 522.000€ 220 m2
Malinska, apartmanska kuća za turizam
- 522.000€ 230 m2
Malinska, otok Krk – apartmanska kuća s pogledom na more
- 520.000€ 220 m2