OTOK KRK, MALINSKA - dvojna kuća s bazenom u izgradnji
Malinska, Malinska-Dubašnica
750.000€
5 395 €/m2
Tip
Kuća
Površina
139 m2
Struktura
4
Detalji
- Tip
- Kuća
- Struktura
- 4
- Cijena
- 750.000€
- Površina
- 139 m2 (5 395 €/m2)
- Parkirno mjesto
- Da
- Ažuriran
- 26.01.2026
- ID
- 56694
Opis
OTOK KRK, MALINSKA - dvojna kuća s bazenom u izgradnji
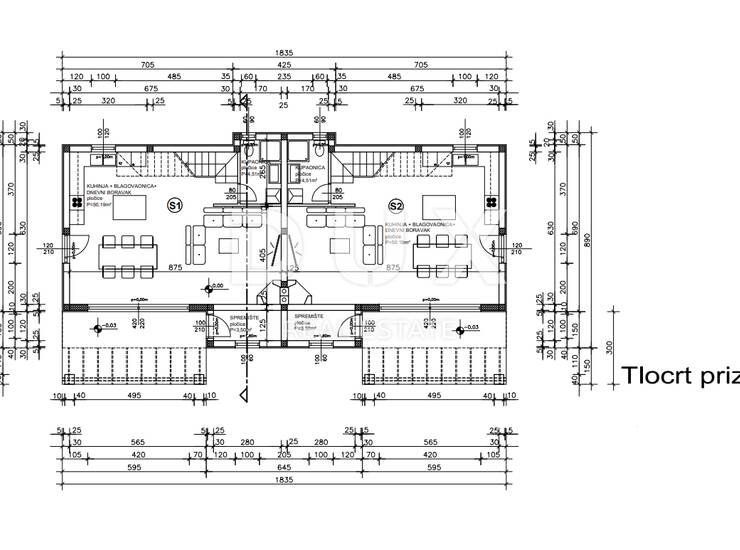
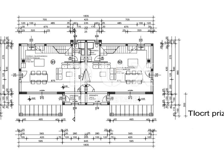
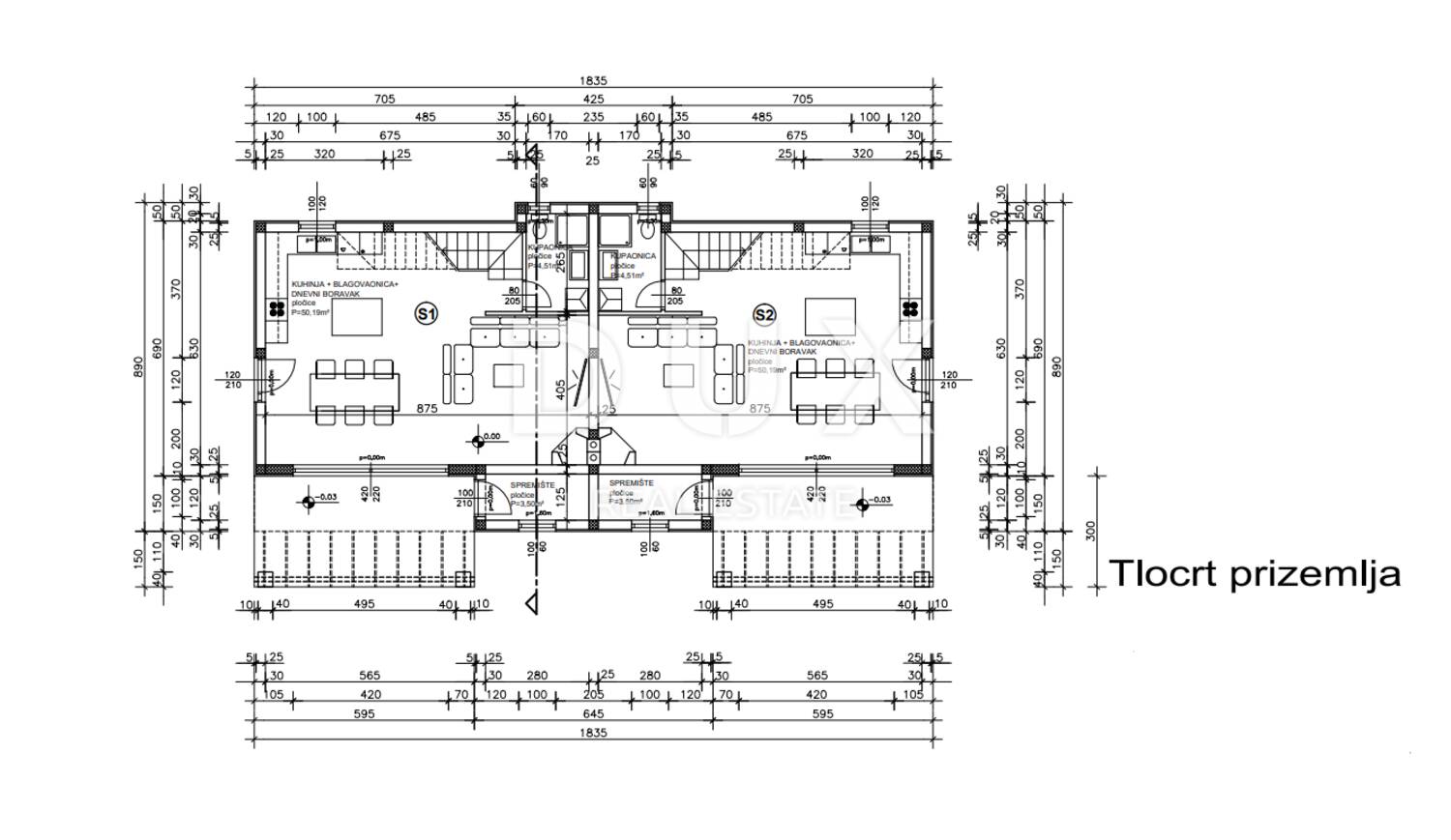
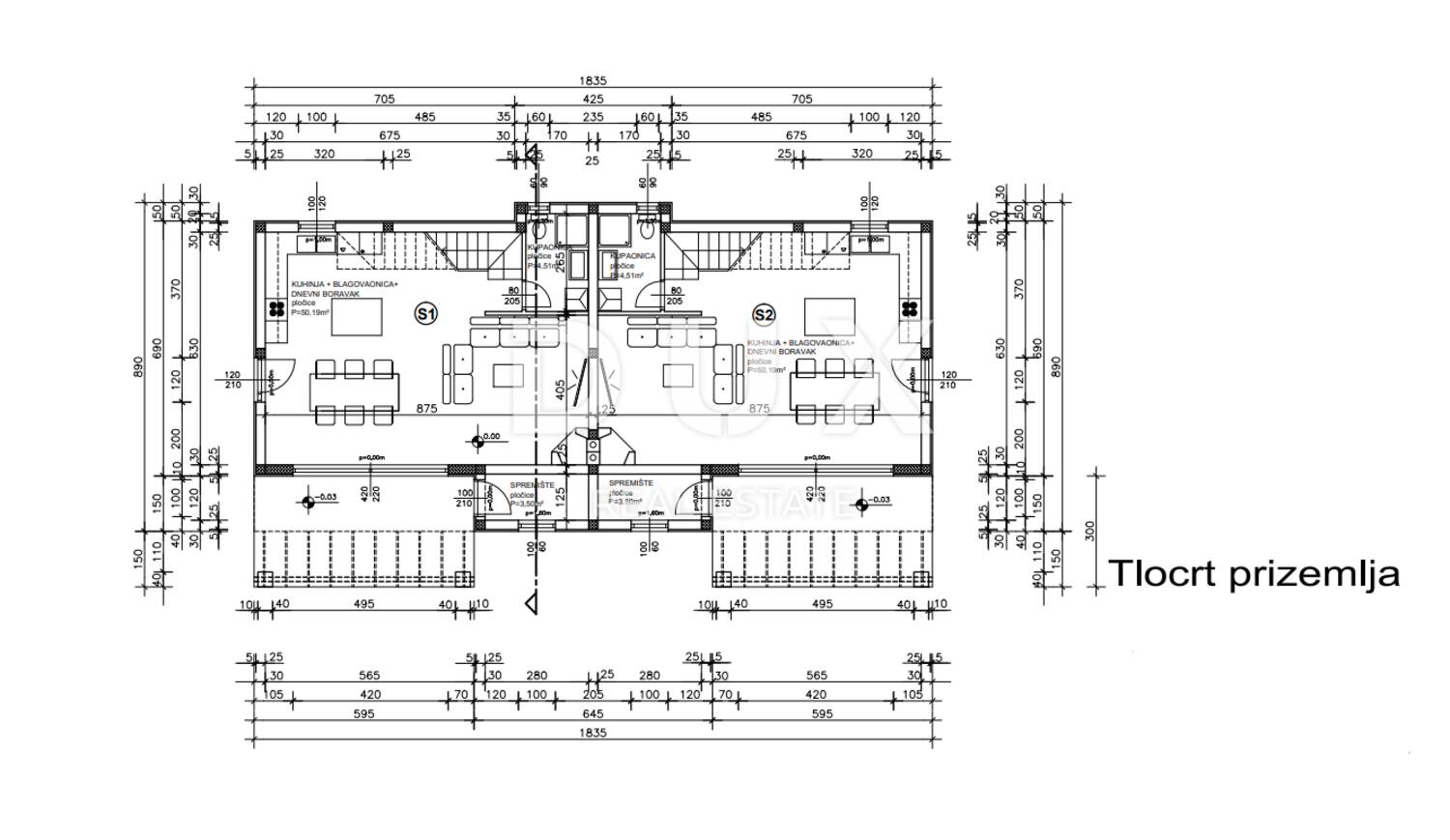
Svaka polovica kuće prostire se na 139,69 m² i osmišljena je kako bi pružila maksimalnu udobnost i luksuzan način života.
Prizemlje
U prizemlju se nalazi prostrana i moderno opremljena kuhinja spojena s elegantnim dnevnim boravkom, stvarajući otvoreni prostor idealan za obiteljska okupljanja i druženja s prijateljima. Također, u prizemlju se nalazi i kupaonica za goste, opremljena najkvalitetnijom sanitarnom opremom.
Kat
Na katu su smještene tri udobne spavaće sobe, svaka sa svojom vlastitom kupaonicom. Ova praktična i luksuzna rješenja osiguravaju privatnost i komfor za svakog člana obitelji ili gosta.
Vanjski Prostor
Svaka polovica kuće dolazi s vlastitim bazenom, pružajući savršen prostor za opuštanje i uživanje u toplim ljetnim danima. Uz bazen, svaka jedinica ima i dva parkirna mjesta.
Izgradnja i Materijali
Kuća je trenutno u izgradnji, a planirani završetak radova je krajem 2025. godine. Tijekom izgradnje koriste se prvoklasni materijali, osiguravajući visoku kvalitetu gradnje i dugotrajnost. Grijanje će biti osigurano putem dizalica topline, dok će se za hlađenje koristiti multi split klima sustavi, čime će se osigurati optimalna temperatura tijekom cijele godine.
Investitor
Ovaj projekt realizira provjereni investitor s dugogodišnjim iskustvom u gradnji na području otoka Krka. Njihova reputacija jamči pouzdanost i visoku kvalitetu izvedbe svakog detalja.
Ova dvojna
Kontakt info
- Agencija
-
DUX NEKRETNINE
- Kontakt osoba
- Dux Nekretnine
- Telefon 1
- + 385 51 518... Prikaži broj
- Telefon 2
- + 385 91 480 ... Prikaži broj
- Adresa
- Tizianova 8
- Rijeka, Hrvatska
Slične nekretnine
Predivna nova kuća - Malinska
- 750.000€ 139 m2
Malinska, kuća na mirnoj lokaciji s pogledom na more
- 750.000€ 151 m2
OTOK KRK, MALINSKA - dvojna kuća s bazenom u izgradnji
- 750.000€ 139 m2
OTOK KRK, MALINSKA - dvojna kuća s bazenom u izgradnji
- 750.000€ 139 m2
OTOK KRK, MALINSKA - dvojna kuća s bazenom u izgradnji
- 750.000€ 139 m2
Malinska, nova kuća, 152 m2, s bazenom i pogledom na more
- 750.000€ 152 m2
Malinska, prodaja, nova kuća s bazenom i pogledom na more!
- 750.000€ 152 m2
Prodaja, Malinska, dvojna kuća s bazenom!
- 750.000€ 124 m2
Malinska, novogradnja, pogled na more, bazen!
- 750.000€ 139 m2
KRK-MALINSKA, DVOJNA KUĆA S POGLEDOM NA MORE
- 750.000€ 150 m2
KRK-MALINSKA, DVOJNA KUĆA S POGLEDOM NA MORE
- 750.000€ 140 m2
KRK, MALINSKA, DVOJNA KUĆA S BAZENOM
- 750.000€ 140 m2