OTOK KRK, MALINSKA (okolica) - Građevinsko zemljište s projektom
Malinska, Malinska-Dubašnica
200.000€
344 €/m2
Tip
Zemljiste
Površina
581 m2
Detalji
- Tip
- Zemljiste
- Cijena
- 200.000€
- Površina
- 581 m2 (344 €/m2)
- Udaljenost od mora
- 1500m
- Ažuriran
- 17.10.2025
- ID
- 92756
Opis
OTOK KRK, MALINSKA (okolica) - Građevinsko zemljište s projektom
Na prodaju je građevinsko zemljište površine 581 m2, smješteno u mirnom naselju. Prilika za investitore ili privatne kupce koji traže zemljište spremno za gradnju moderne vile s bazenom.
Zemljište je konfiguracijski pretežito ravno, što omogućuje prirodnu integraciju objekta i pruža brzi početak građenja bez pripremnih radova. Pogled na more s kata buduće vile. Okruženo je novogradnjama i zelenim površinama, što jamči mir i privatnost, a ujedno blizinu svih potrebnih sadržaja.
Prodaje se s kompletnom projektnom dokumentacijom, građevinskom dozvolom i plaćenim komunalijama - sve je spremno za početak gradnje.
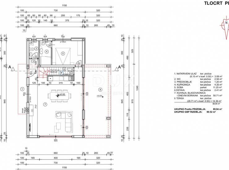
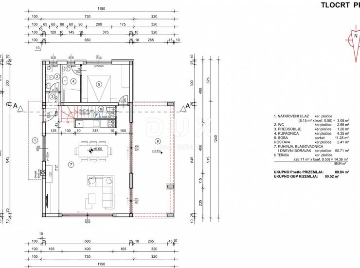
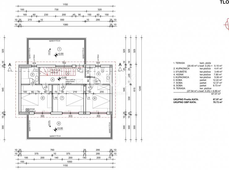
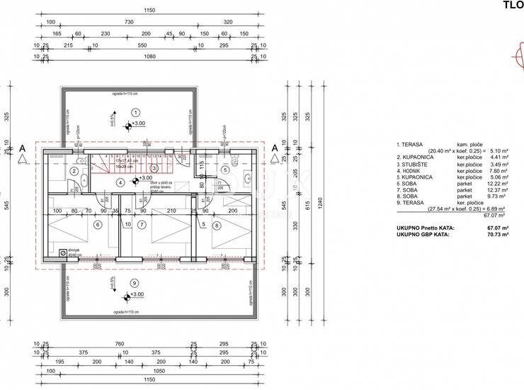
Projekt predviđa izgradnju luksuzne vile od 162 m2 s bazenom unutarnjih dimenzija 6,60 x 3,60 m i dubinom 1,5 m.
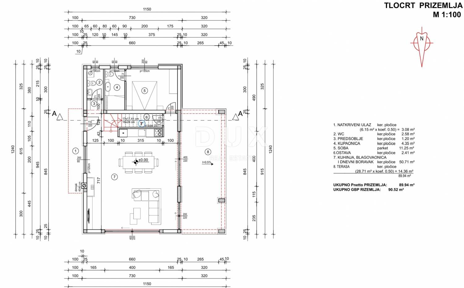
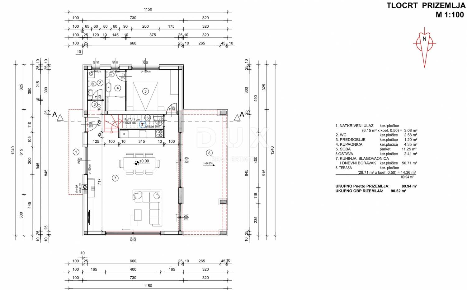
--> Prizemlje (GBP 90,50 m²) sastoji se od ulaza, wc-a, predsoblja, kupaonice, jedne sobe, ostave, prostranog open space dnevnog boravka s kuhinjom i blagovaonicom, terase te stubišta.
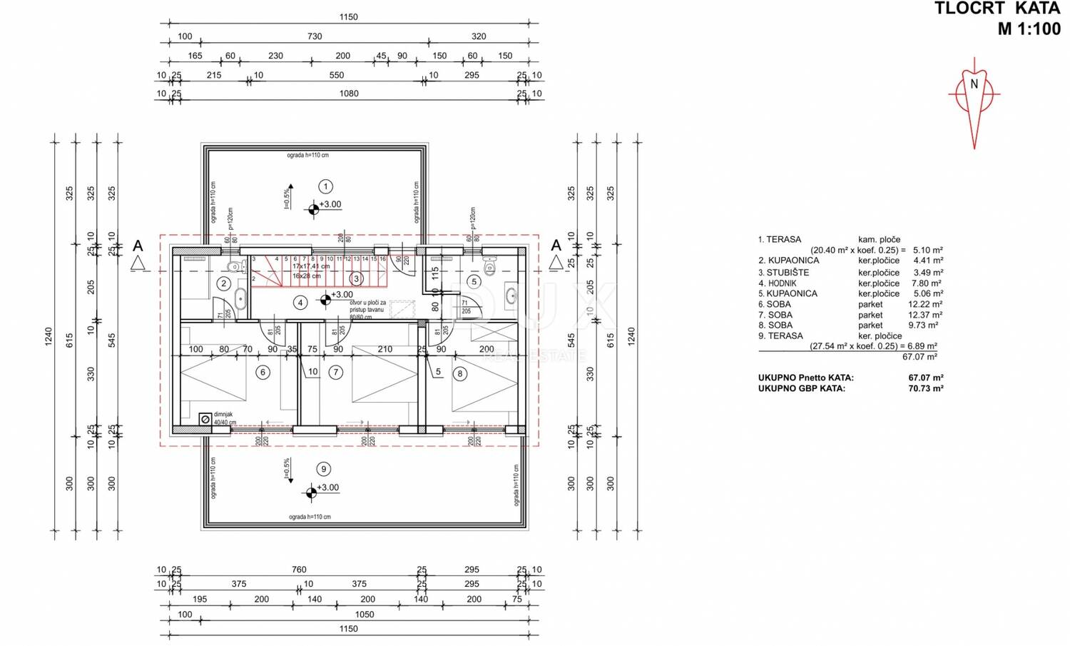
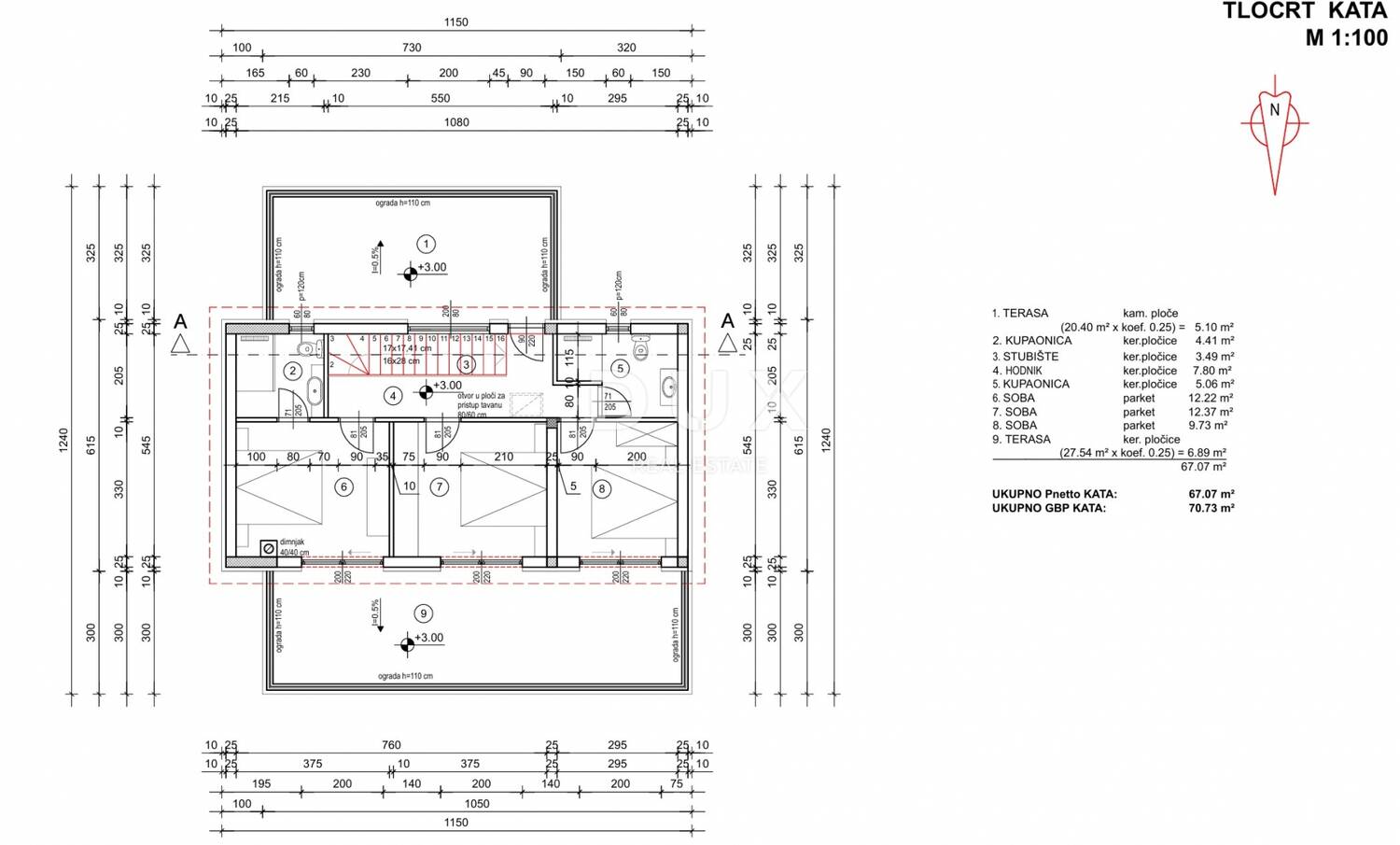
--> Kat (GBP 70,70 m²) obuhvaća tri spavaće sobe, dvije kupaonice, hodnik i dvije prostrane terase s pogledom na more.
Priključak vode i struje je u neposrednoj blizini, kanalizacije nema na tom području, stoga je potrebno napraviti bio septičku jamu.
Prednosti:
- spremno za gradnju!
- mirna i zelena lokacija
- okruženo novogradnjama
- pogled na more
- investicija ili izgradnja obiteljske vile
Jedinstvena prilika za one koji žele započeti gradnju odmah i u
Kontakt info

- Agencija
-
DUX NEKRETNINE
- Kontakt osoba
- Dux Nekretnine
- Telefon 1
- + 385 51 518... Prikaži broj
- Telefon 2
- + 385 91 480 ... Prikaži broj
- Adresa
- Tizianova 8
- Rijeka, Hrvatska
Slične nekretnine

OTOK KRK, MALINSKA (okolica) - Građevinsko zemljište s dozvolom
- 200.000€ 531 m2

Otok Krk, okolica Malinske, građevinsko zemljište
- 189.000€ 593 m2

Lijepo zemljište u Malinskoj
- 215.000€ 608 m2

Malinska, građevinsko zemljište na mirnoj lokaciji!
- 230.000€ 688 m2

Građevinsko zemljište s projektnom dokumentacijom
- 235.000€ 511 m2

Malinska, prodaja građevinskog zemljišta, 2500m od mora!
- 165.000€ 568 m2

Malinska, okolica, građevinski teren na mirnoj lokaciji!
- 162.000€ 807 m2

Malinska, prodaja građevinskog zemljišta s infrastrukturom!
- 240.000€ 864 m2

Malinska, građevinsko zemljište s projektom za dvojnu kuću
- 250.000€ 633 m2